Продам дом, Новая Дятловка
14 900 000 руб.
Дом 194.5 м2
Участок 6 соток
Дом 194.5 м2
Участок 6 соток
Пугачева Мария Игоревна
+7 (932)XXXXX Показать номер
Описание
Новый 2-х этажный коттедж 194,5 кв.м на участке 6 соток в КП «Новая Дятловка».
Ключи – февраль 2025г. Завершается внешняя отделка фасада.
Дом без внутренней отделки.
Семейная и IT ипотека - 6%.
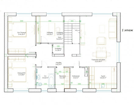
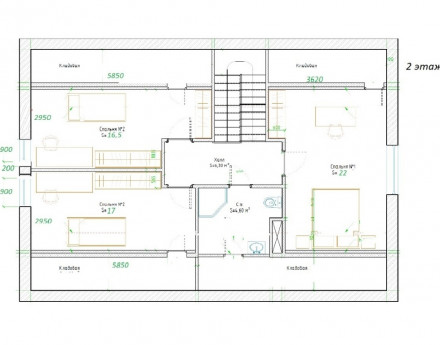
Планировка по проекту:
1 этаж: Просторная кухня-гостиная 33 кв.м с окнами на три стороны света и панорамной дверью на крытую террасу; три комнаты (10/12/14 кв.м), ванная комната, бойлерная, гардеробная, прихожая.
Высокие потолки- 3 метра.
2 этаж: Три спальни (17/16/22), с/у с душевой, много мест для хранения.
Потолки - 3 метра.
Коммуникации: Электричество и магистральный газ заведены на участок.
Земельный участок: 6 соток, правильной формы, перед домом предусмотрено место для парковки. Забор - металлический штакетник высотой 2м.
Назначение - индивидуальное жилищное строительство (ИЖС). Прописка – д. Дятловка, г.о. Балашиха. Без проблем прикрепиться к садику, школе, поликлинике.
Коттедж построен из высококачественных материалов с соблюдением всех технологий:
- Фундамент: Свайный с ростверком (монолитный с армированием) с заглублением 3м;
- Стены: Газобетонный блок Бонолит, толщина внешних стен 400мм;
- Фасад: Штукатурка, покраска, фасадный декор; Цоколь утеплен и облицован термопанелями; выполнена отмостка;
- Кровля: Двухскатная из метало-черепицы с установкой снегозадержателей и водосточной системы;
- Окна Melke: Металло-пластиковые двухкамерные стеклопакеты с поворотно-откидным механизмом и французским балконом с кованным ограждением на 2-м этаже;
- Крыльцо с навесом;
- Входная металлическая дверь.
О поселке: Асфальтированные дороги. Общее освещение. Закрытая территория. В поселке оборудована детско-спортивная площадка с воркаутом и зоной отдыха, отдельной площадкой для малышей.
Чистый и свежий воздух, удаленность от трасс и многоэтажек,тишина и уединение с природой и при этом оптимальное расстояние до города- всего 3 км от мкр. Железнодорожный и 17 км от МКАД. Ближайшие станции метро: Новокосино, Железнодорожная, Некрасовка.
Инфраструктура:
Все поблизости: Детский сад, школа, амбулатория, парк, банк, почта, спортивный комплекс с плавательным бассейном в Агрогородке - 10 мин на авто/автобусе. В д.Дятловка расположена остановка школьного автобуса, где утром забирает, а после уроков привозит ребят школьный автобус. В шаговой доступности Вкус Вилл, Пятерочка, пункты Яндекс/Озон/Валдбериз, аптека и тд.
ТЦ, рестораны, кафе, сетевые магазины и другая социально-бытовая инфраструктура расположена в городе Железнодорожном - 15 минут на авто.
Как добраться:
От поселка до остановки автобуса 10 минут пешком. Автобус №26 идет до ж/д станции "Черное"- 10 минут, до ж/д станции "Железнодорожная" - 20 минут.
Открыт участок автомобильной трассы М12 Москва-Ногинск, легкое метро МЦД-4 (от Апрелевки до Железнодорожного).
Продажа от застройщика. Вся стоимость в договор. Одобрение ипотеки и сопровождение сделки - бесплатно. Индивидуальная рассрочка до 12 месяцев.
Добро пожаловать в Новую Дятловку!
Этажность дома: 2
Материал стен: газобетонный блок
Количество комнат: 7
Год постройки: 2024
Электричество: есть
Категория земли: земли населенных пунктов
Газ: магистральный
Ключи – февраль 2025г. Завершается внешняя отделка фасада.
Дом без внутренней отделки.
Семейная и IT ипотека - 6%.
Планировка по проекту:
1 этаж: Просторная кухня-гостиная 33 кв.м с окнами на три стороны света и панорамной дверью на крытую террасу; три комнаты (10/12/14 кв.м), ванная комната, бойлерная, гардеробная, прихожая.
Высокие потолки- 3 метра.
2 этаж: Три спальни (17/16/22), с/у с душевой, много мест для хранения.
Потолки - 3 метра.
Коммуникации: Электричество и магистральный газ заведены на участок.
Земельный участок: 6 соток, правильной формы, перед домом предусмотрено место для парковки. Забор - металлический штакетник высотой 2м.
Назначение - индивидуальное жилищное строительство (ИЖС). Прописка – д. Дятловка, г.о. Балашиха. Без проблем прикрепиться к садику, школе, поликлинике.
Коттедж построен из высококачественных материалов с соблюдением всех технологий:
- Фундамент: Свайный с ростверком (монолитный с армированием) с заглублением 3м;
- Стены: Газобетонный блок Бонолит, толщина внешних стен 400мм;
- Фасад: Штукатурка, покраска, фасадный декор; Цоколь утеплен и облицован термопанелями; выполнена отмостка;
- Кровля: Двухскатная из метало-черепицы с установкой снегозадержателей и водосточной системы;
- Окна Melke: Металло-пластиковые двухкамерные стеклопакеты с поворотно-откидным механизмом и французским балконом с кованным ограждением на 2-м этаже;
- Крыльцо с навесом;
- Входная металлическая дверь.
О поселке: Асфальтированные дороги. Общее освещение. Закрытая территория. В поселке оборудована детско-спортивная площадка с воркаутом и зоной отдыха, отдельной площадкой для малышей.
Чистый и свежий воздух, удаленность от трасс и многоэтажек,тишина и уединение с природой и при этом оптимальное расстояние до города- всего 3 км от мкр. Железнодорожный и 17 км от МКАД. Ближайшие станции метро: Новокосино, Железнодорожная, Некрасовка.
Инфраструктура:
Все поблизости: Детский сад, школа, амбулатория, парк, банк, почта, спортивный комплекс с плавательным бассейном в Агрогородке - 10 мин на авто/автобусе. В д.Дятловка расположена остановка школьного автобуса, где утром забирает, а после уроков привозит ребят школьный автобус. В шаговой доступности Вкус Вилл, Пятерочка, пункты Яндекс/Озон/Валдбериз, аптека и тд.
ТЦ, рестораны, кафе, сетевые магазины и другая социально-бытовая инфраструктура расположена в городе Железнодорожном - 15 минут на авто.
Как добраться:
От поселка до остановки автобуса 10 минут пешком. Автобус №26 идет до ж/д станции "Черное"- 10 минут, до ж/д станции "Железнодорожная" - 20 минут.
Открыт участок автомобильной трассы М12 Москва-Ногинск, легкое метро МЦД-4 (от Апрелевки до Железнодорожного).
Продажа от застройщика. Вся стоимость в договор. Одобрение ипотеки и сопровождение сделки - бесплатно. Индивидуальная рассрочка до 12 месяцев.
Добро пожаловать в Новую Дятловку!
Этажность дома: 2
Материал стен: газобетонный блок
Количество комнат: 7
Год постройки: 2024
Электричество: есть
Категория земли: земли населенных пунктов
Газ: магистральный
Объявления в посёлке
( 14 )
14.90млн. руб.
Носовихинское шоссе
194.6 м2, 6 соток
194.6 м2, 6 соток
12.90млн. руб.
Носовихинское шоссе
118.6 м2, 6 соток
118.6 м2, 6 соток
14.60млн. руб.
Носовихинское шоссе
118.6 м2, 6 соток
118.6 м2, 6 соток
14.90млн. руб.
Носовихинское шоссе
194.6 м2, 6 соток
194.6 м2, 6 соток
12.90млн. руб.
Носовихинское шоссе
118.8 м2, 6 соток
118.8 м2, 6 соток
16.90млн. руб.
Носовихинское шоссе
117.6 м2, 6 соток
117.6 м2, 6 соток
17.90млн. руб.
Носовихинское шоссе
117.8 м2, 6 соток
117.8 м2, 6 соток
14.60млн. руб.
Носовихинское шоссе
118.6 м2, 6 соток
118.6 м2, 6 соток
14.90млн. руб.
Носовихинское шоссе
194.5 м2, 6 соток
194.5 м2, 6 соток
14.90млн. руб.
Носовихинское шоссе
194.6 м2, 6 соток
194.6 м2, 6 соток
14.40млн. руб.
Носовихинское шоссе
154.5 м2, 6 соток
154.5 м2, 6 соток
19.30млн. руб.
Носовихинское шоссе
156.6 м2, 6 соток
156.6 м2, 6 соток
14.90млн. руб.
Носовихинское шоссе
192.7 м2, 6 соток
192.7 м2, 6 соток
15.50млн. руб.
Носовихинское шоссе
192.7 м2, 6 соток
192.7 м2, 6 соток
Посёлки рядом
3.63млн. руб.73 км от МКАДHighwood Residence (Хайвуд Резиденс)
от 3.63 млн. руб.
участки от 11 соток
шоссе: Ленинградское
от МКАД: 73 км
готовность: Строительство
участки от 11 соток
шоссе: Ленинградское
от МКАД: 73 км
готовность: Строительство
20млн. руб.100 км от МКАДOzerna Residence (Озерна Резиденс)
от 20 млн. руб.
участки от 40 соток
шоссе: Минское, Новорижское
от МКАД: 100 км
готовность: Строительство
участки от 40 соток
шоссе: Минское, Новорижское
от МКАД: 100 км
готовность: Строительство
2млн. руб.110 км от МКАДРузские дачи
от 2 млн. руб.
участки от 9 до 30 соток
шоссе: Волоколамское, Новорижское
от МКАД: 110 км
готовность: Завершение строительства
участки от 9 до 30 соток
шоссе: Волоколамское, Новорижское
от МКАД: 110 км
готовность: Завершение строительства
18млн. руб.31 км от МКАДМарьина гора
18–23.5 млн. руб.
дома от 142 до 290 м2
участки от 10 до 23 сотки
шоссе: Дмитровское, Осташковское, Ярославское
от МКАД: 31 км
готовность: Строительство
дома от 142 до 290 м2
участки от 10 до 23 сотки
шоссе: Дмитровское, Осташковское, Ярославское
от МКАД: 31 км
готовность: Строительство
1млн. руб.20 км от МКАДЮсупово Village (Юсупово Вилладж)
от 1 млн. руб.
дома от 125 м2
участки от 5 соток
шоссе: Симферопольское
от МКАД: 20 км
готовность: Построен
дома от 125 м2
участки от 5 соток
шоссе: Симферопольское
от МКАД: 20 км
готовность: Построен
13.26млн. руб.50 км от МКАДВерба Парк
13.26–24.6 млн. руб.
дома от 132 до 306 м2
участки от 10 соток
шоссе: Ярославское
от МКАД: 50 км
готовность: Строительство
дома от 132 до 306 м2
участки от 10 соток
шоссе: Ярославское
от МКАД: 50 км
готовность: Строительство
Полезные статьи о загородной недвижимости
Мнения специалистов
649
















































