Продам дом, деревня Воря-Богородское
Описание
Продажа: Дом в поселке бизнес-класса с собственным озером 17,6 га. КП «Силва»
Хотите жить на берегу личного озера, но при этом быть в 41 км от МКАД?
В экологичном коттеджном поселке «Силва» (Фряновское шоссе, д. Воря-Богородское) продается дом, где природа становится продолжением интерьера. Участок граничит с вековым хвойным лесом - чистый воздух и тишина гарантированы 365 дней в году.
Архитектура и виды:
Единый современный стиль. Панорамное остекление стирает границы между домом и лесом. Доступны видовые лоты с прямым видом на ваше собственное озеро (акватория 17,6 Га!).
Комфорт бизнес-класса:
-Закрытая охраняемая территория (КПП, видеонаблюдение 24/7)
-Все коммуникации заведены: газ, своя котельная, свет
-На участке: собственная скважина (вода) + автономный септик (канализация)
-Климат-контроль: система кондиционирования и приточная вентиляция — свежий воздух круглый год
-Широкие асфальтированные дороги, прогулочные зоны вдоль озера
-Своя управляющая компания (двор без снега и мусора)
Инвестируйте в качество жизни.
Это не просто дом - это резиденция с закрытой экосистемой: лес, озеро, безопасность и архитектура премиум-уровня.
Запишитесь на просмотр и выберите лучший участок у воды прямо сейчас!
Этажность дома: 1
Материал стен: железобетон
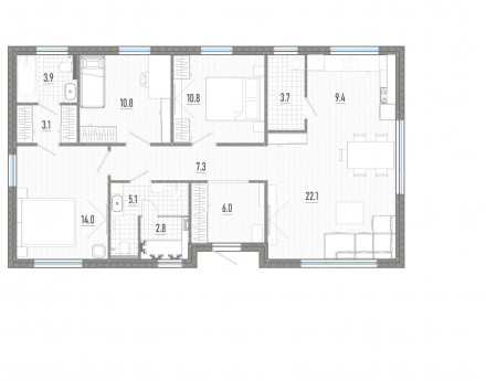
Количество комнат: 3
Год постройки: 2025
Отопление: газовый котел
Электричество: есть
Канализация: септик
Интернет: да
Категория земли: земли населенных пунктов
Водопровод: скважина
Газ: магистральный
Охрана: да
Хотите жить на берегу личного озера, но при этом быть в 41 км от МКАД?
В экологичном коттеджном поселке «Силва» (Фряновское шоссе, д. Воря-Богородское) продается дом, где природа становится продолжением интерьера. Участок граничит с вековым хвойным лесом - чистый воздух и тишина гарантированы 365 дней в году.
Архитектура и виды:
Единый современный стиль. Панорамное остекление стирает границы между домом и лесом. Доступны видовые лоты с прямым видом на ваше собственное озеро (акватория 17,6 Га!).
Комфорт бизнес-класса:
-Закрытая охраняемая территория (КПП, видеонаблюдение 24/7)
-Все коммуникации заведены: газ, своя котельная, свет
-На участке: собственная скважина (вода) + автономный септик (канализация)
-Климат-контроль: система кондиционирования и приточная вентиляция — свежий воздух круглый год
-Широкие асфальтированные дороги, прогулочные зоны вдоль озера
-Своя управляющая компания (двор без снега и мусора)
Инвестируйте в качество жизни.
Это не просто дом - это резиденция с закрытой экосистемой: лес, озеро, безопасность и архитектура премиум-уровня.
Запишитесь на просмотр и выберите лучший участок у воды прямо сейчас!
Этажность дома: 1
Материал стен: железобетон
Количество комнат: 3
Год постройки: 2025
Отопление: газовый котел
Электричество: есть
Канализация: септик
Интернет: да
Категория земли: земли населенных пунктов
Водопровод: скважина
Газ: магистральный
Охрана: да
Посёлки рядом
6.3млн. руб.73 км от МКАДHighwood Residence (Хайвуд Резиденс)
6.3–17.24 млн. руб.
участки от 11 соток
шоссе: Ленинградское
от МКАД: 73 км
готовность: Строительство
участки от 11 соток
шоссе: Ленинградское
от МКАД: 73 км
готовность: Строительство
19млн. руб.100 км от МКАДOzerna Residence (Озерна Резиденс)
от 19 млн. руб.
участки от 40 соток
шоссе: Минское, Новорижское
от МКАД: 100 км
готовность: Строительство
участки от 40 соток
шоссе: Минское, Новорижское
от МКАД: 100 км
готовность: Строительство
2млн. руб.110 км от МКАДРузские дачи
от 2 млн. руб.
участки от 9 до 30 соток
шоссе: Волоколамское, Новорижское
от МКАД: 110 км
готовность: Построен
участки от 9 до 30 соток
шоссе: Волоколамское, Новорижское
от МКАД: 110 км
готовность: Построен
13.26млн. руб.50 км от МКАДВерба Парк
13.26–24.6 млн. руб.
дома от 132 до 306 м2
участки от 10 соток
шоссе: Ярославское
от МКАД: 50 км
готовность: Построен
дома от 132 до 306 м2
участки от 10 соток
шоссе: Ярославское
от МКАД: 50 км
готовность: Построен
18млн. руб.31 км от МКАДМарьина гора
18–23.5 млн. руб.
дома от 142 до 290 м2
участки от 10 до 23 сотки
шоссе: Дмитровское, Осташковское, Ярославское
от МКАД: 31 км
готовность: Строительство
дома от 142 до 290 м2
участки от 10 до 23 сотки
шоссе: Дмитровское, Осташковское, Ярославское
от МКАД: 31 км
готовность: Строительство
9.27млн. руб.12 км от МКАДГранд Клязьма
от 9.27 млн. руб.
участки от 6 до 31 сотка
шоссе: Дмитровское
от МКАД: 12 км
готовность: Строительство
участки от 6 до 31 сотка
шоссе: Дмитровское
от МКАД: 12 км
готовность: Строительство
Полезные статьи о загородной недвижимости
Мнения специалистов
887




































