Продам дом, Калязин
Коммуникации
- Электричество: Центральное
- Газ: Магистральный
- Канализация: Септик
- Фундамент: Монолит
- Облицовка наружных стен: Дерево
- Кровля: Мягкая кровля
- Внутренняя отделка помещений: Без отделки
- Обустройство участка: Беседка, Баня
- Охрана: Шлагбаум, КПП
- Тип дома: Брус
- Инфраструктура: зона отдыха, пляж, яхт-клуб
Описание
#1171. КП Эра. Коттедж 240 м2 с участком 1,3 Га на 1-й линии Эры.
КП Эра, Калязинский муниципальный округ.
В коттеджном поселке бизнес класса со своим озером, внутренним лесом и выходом на реку продается новый загородный дом под чистовую отделку площадью 240 м2 с баней и беседкой на участке 120 соток (1,2 Га). До берега Эры (приток Волги) 100 метров. У реки в этом месте широкое судоходное устье протяженностью около 500 метров, впадающее в Волгу. С южной стороны поселок граничит с сосновым лесом, откуда начинается большая лесопарковая зона дома отдыха Фонвизино, протянувшись от Благуново до Ново-Окатово. Инфраструктура поселка: газ, электричество, внутрипоселковые гравийные дороги и проезды, зона отдыха, свой внутренний парк и озеро, все места общего пользования освещены. Вдоль собственной береговой линии протяженностью 500 метров расположены пляж, причалы для яхт и катеров. Чистая река, лес и прекрасный воздух. Территория охраняется, проезд через КПП.
ОБЪЕКТЫ ПРОДАЖИ:
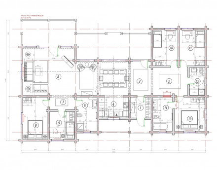
1) Новый одноэтажный дом общей площадью 240 м2. Год постройки 2022. Типовой проект Северная деревня. Без отделки. Рубка из лафета в норвежский замок. Исходный диаметр бревна 40 см. Монолитный ленточный фундамент. Планировка: прихожая 5,3 м2, коридор 13,7 м2, столовая 32 м2, кухня 7,6 м2, гостевой санузел 8,8 м2, гостиная 30,7 м2, коридор 4,5 м2, две спальни 13 и 9 м2, две детских по 11 м2, детский санузел 5,3 м2, мастер спальня 13 м2, мастер санузел 8,3 м2.
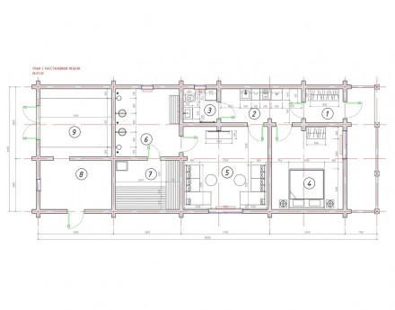
2) Банный дом общей площадью 118 м2. Планировка: прихожая 36 м2, кухня 7,7 м2, санузел 3,2 м2, гостевая спальня 16,6 м2, комната отдыха 19,7 м2, душевая 12м2, сауна 9 м2, котельная 10 м2, комната для хранения 13,7 м2.
3) Беседка площадью 50 м2.
4) Земельный участок 129 соток (1,3 Га / 12878 м2). Состоит из нескольких смежных участков равнозначной площади, образующих единый жилой массив. Межевание проведено. Сохранен природный ландшафт местности, растут сосны, ели и березы. 1-я линия Эры. До берега 100 метров. Уникальный обзорный вид с участка на реку.
КОММУНИКАЦИИ: Электричество 15 кВт (трехфазное) заведено в дом, газовая магистраль по границе участка, подключение оплачено. Есть септик из бетонных колец.
РАСПОЛОЖЕНИЕ:
Удобная транспортная доступность и круглогодичный подъезд из Москвы по федеральной трассе Сергиев Посад - Калязин. До Калязина всего 5 км. От МКАД 170 км.
Посёлки рядом
3.63млн. руб.73 км от МКАДHighwood Residence (Хайвуд Резиденс)
от 3.63 млн. руб.
участки от 11 соток
шоссе: Ленинградское
от МКАД: 73 км
готовность: Строительство
участки от 11 соток
шоссе: Ленинградское
от МКАД: 73 км
готовность: Строительство
20млн. руб.100 км от МКАДOzerna Residence (Озерна Резиденс)
от 20 млн. руб.
участки от 40 соток
шоссе: Минское, Новорижское
от МКАД: 100 км
готовность: Строительство
участки от 40 соток
шоссе: Минское, Новорижское
от МКАД: 100 км
готовность: Строительство
2млн. руб.110 км от МКАДРузские дачи
от 2 млн. руб.
участки от 9 до 30 соток
шоссе: Волоколамское, Новорижское
от МКАД: 110 км
готовность: Завершение строительства
участки от 9 до 30 соток
шоссе: Волоколамское, Новорижское
от МКАД: 110 км
готовность: Завершение строительства
13.26млн. руб.50 км от МКАДВерба Парк
13.26–24.6 млн. руб.
дома от 132 до 306 м2
участки от 10 соток
шоссе: Ярославское
от МКАД: 50 км
готовность: Строительство
дома от 132 до 306 м2
участки от 10 соток
шоссе: Ярославское
от МКАД: 50 км
готовность: Строительство
8.84млн. руб.60 км от МКАДWoodside Residence (Вудсайд Резиденс)
от 8.84 млн. руб.
дома от 144 м2
участки от 15 соток
шоссе: Дмитровское, Ленинградское, Рогачевское
от МКАД: 60 км
готовность: Построен
дома от 144 м2
участки от 15 соток
шоссе: Дмитровское, Ленинградское, Рогачевское
от МКАД: 60 км
готовность: Построен
18млн. руб.31 км от МКАДМарьина гора
18–23.5 млн. руб.
дома от 142 до 290 м2
участки от 10 до 23 сотки
шоссе: Дмитровское, Осташковское, Ярославское
от МКАД: 31 км
готовность: Строительство
дома от 142 до 290 м2
участки от 10 до 23 сотки
шоссе: Дмитровское, Осташковское, Ярославское
от МКАД: 31 км
готовность: Строительство
Полезные статьи о загородной недвижимости
Мнения специалистов
577











































