Коттеджный поселок «Перелески»
Щеглова Екатерина
Коттеджный поселок класса комфорт плюс «Перелески» находится на Новорижском шоссе, в 50 км от МКАД, в Истринском районе в районе сельского поселения Онуфриево.

Среди его отличительных особенностей — интересное природное окружение, разнообразие проектов и материалов домостроений, большой выбор построенных коттеджей, интересная спортивно-развлекательная инфраструктура в ближайших окрестностях.
II. Архитектура и планировочные решения
I. Локация
Расположение и транспортная доступность
Доехать сюда на автомобиле удобнее всего по Новорижскому шоссе. Миновав поворот на Истру и на бетонку надо проехать еще 22 км, после чего повернуть направо по указателю «Мансурово/Кострово», затем повернуть направо под эстакаду в сторону пансионата «Газпром» и далее двигаться 12 км до деревни Онуфриево. Въехав в нее, на Т-образном перекрестке поворачиваем на Андреевское / Загорье по указателю Перелески.
На общественном транспорте добраться можно только с пересадками. В 25 минутах ходьбы от поселка, в Онуфриево находится автобусная остановка, откуда можно доехать за час до железнодорожной станции «Новоиерусалимская» в Истре (время в пути до платформы «Тушино» — 1 ч., до Рижского вокзала —1 ч. 20 мин, до Курского вокзала 1 ч. 37 мин).
Экология
Поселок «Перелески» находится в очень тихом месте, и практически с трех сторон окружен большим зеленым массивом, находящимся в ведении Гослесфонда. Виды на лес есть в том или ином ракурсе практически со всех вторых этажей. С территории поселка организованы специальные выходы в лес, летом там много грибов.

План коттеджного поселка
Можно сказать, что в ближайших соседях у «Перелесок» — только леса и поля, в непосредственной близости нет даже домов частного сектора. Естественной границей поселка с восточной стороны является река Негуч, где было создано небольшое озеро, в котором жители любят купаться летом. Также здесь можно ловить рыбу.

Причал на озере
Как рассказывает руководитель отдела маркетинга и продаж поселка «Перелески» Денис Товстоногов, в свое время в озеро были запущены толстолобик и белый амур, а потом к этой рыбе присоединилась и «естественная», например, речные щуки.
Совсем недалеко находится Тростенское озеро – третий по величине водоем Московской области, относящийся к озерам ледникового происхождения. Пешком сюда, в силу особенностей ландшафта в виде заболоченных берегов, не дойдешь, но путь на машине займет не более 5 минут. На этом озере можно рыбачить, а также кататься на лодках.
Мнение редакции: У поселка удачное расположение в плане экологической составляющей и природного окружения. Несмотря на то, что поселок находится на достаточном удалении от МКАД, время в пути не критично, благодаря хорошей проходимости Новорижского шоссе, да и дальнейшее перемещение не сопряжено с особыми трудностями. А вот добираться сюда на общественном транспорте, конечно, не особенно удобно.
Оценка: ![]()
II. Архитектура и планировочные решения
Особенности планировки и зонирования
Поселок масштабный — на территории 39 Га запланировано 217 домовладений площадью от 144 до 320 кв. м на участках от 6,5 до 25 соток.

Улица в поселке Перелески
Строительство ведется в несколько очередей. Первая очередь готова полностью: заасфальтированы дороги, проведено освещение, благоустроены газоны. Сейчас строится вторая очередь: частично заасфальтированы дороги, сейчас идет работа над освещением.

Фонари уличного освещения
По предварительным расчетам, на завершение второй очереди потребуется еще 2 года. Сроки реализации третьей очереди пока неизвестны, под нее пока отводятся участки большой площади в прилесной зоне.

Участки рядом с лесом
Пространство зонируется исходя из материалов домовладений: в первой очереди, располагающейся ближе всего ко въездной группе, представлены жилые здания из газобетона, в «серединке» — комбинированные варианты в стиле шале, в конце, ближе к лесу — дома из оцилиндрованного бревна и клееного бруса.
Рельеф поселка идет под уклоном от леса к реке, что обеспечивает интересные видовые характеристики.
Доминанта поселка — центральный бульвар шириной 7 м. На нем проведено озеленение, установлены фонари и скамейки. Остальные 12 улиц тоже широкие — 5 м, что позволяет легко разъехаться встречным автомобилям и избавляет от необходимости делать карманы.

Бульвар
На территории обустроена детская игровая площадка, реконструированная минувшей весной под потребности подрастающих детей, теннисный корт и футбольное поле с профессиональным покрытием. В прибрежной зоне установлены уютные беседки и лавочки, и даже обустроен небольшой пляж, где в летнее время можно взять лодку и катамаран. Там же будет установлена большая беседка, с пристроенной к ней сценой для проведения различных мероприятий.

Беседка в прибрежной зоне
Территория огорожена, в красивой въездной группе с мельницей действует КПП, круглосуточно осуществляется видеонаблюдение и патрулирование территории на автомобиле. Видеокамеры установлены и в прибрежной зоне — там, где проходит естественная граница. В каждом доме предусмотрена тревожная кнопка, которую можно подключить к пульту поселковой охраны.
Домовладения
Все домовладения — двухэтажные, со вторым этажом либо полностью мансардного типа (образуется скатами крыши), либо полумансардного, когда имеются основные боковые окна на выступах. Высота потолка в коньке мансарды может достигать 5 м.

Дома в поселке Перелески
Все жилые здания по готовым проектам возводятся на монолитном фундаменте, на крышах — мягкая черепица Tegola коричневого цвета, на окнах — двойные стеклопакеты REHAU с пластиковым профилем и раскладкой, характерной для стиля прованс.
Стены же, как упоминалось выше, могут быть из разных материалов — газобетона, клееного бруса и оцилиндрованного бревна. В случае со строениями из газобетона, фасады в основном имеют белую цветовую гамму, но есть и варианты различных пастельных оттенков.

Строительство из газобетона
Все проекты оборудованы крытыми балконами на втором этаже, во многих имеются просторные террасы на первом.
Коттеджи из газобетона сдаются, как правило, с частично возведенными перегородками, из клееного бруса — без перегородок (часто, чтобы не жить в «сплошном» дереве, покупатели устанавливают перегородки из гипсокартона). В комбинированных вариантах могут использоваться различные модели планировочных решений, а здания из оцилиндрованного бревна, в силу специфики материала, сдаются с полностью готовой планировкой.
На момент покупки в жилье имеется металлическая входная дверь и временная деревянная лестница. Газовые котлы собственники устанавливают самостоятельно. В каждом коттедже предусмотрено как минимум 2 санузла.
В поселке представлено несколько проектов деревянного домостроения. Некоторые дома построены сразу в двух вариантах: из оцилиндрованного бревна и клееного бруса.

Строительство из дерева
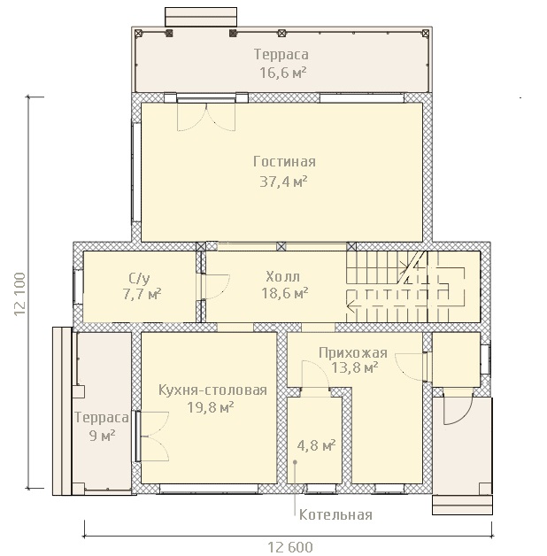
Например, коттедж «Русь» площадью 210 кв. м. В варианте из оцилиндрованного бревна планировка уже готовая, все стены возведены. На первом этаже размещаются не только просторная кухню-столовая и гостиная, но и спальня, вместо которой можно оборудовать кабинет или гостевую комнату.

А также санузел, который, как и во многих других проектах оборудован окном. На втором этаже располагаются 3 спальни и еще один санузел с окном. Интересная особенность этого проекта — второй свет: холл с лестницей высотой в два этажа.

1 этаж

2 этаж
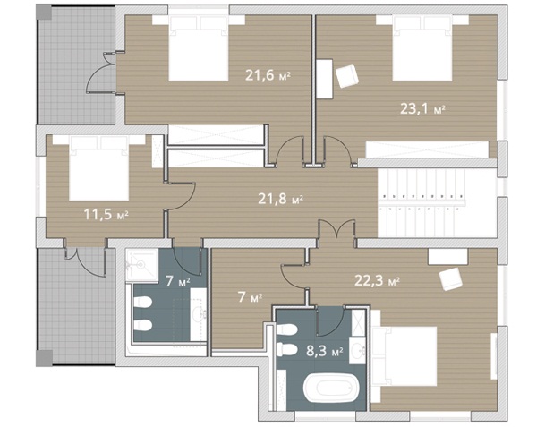
Еще один проект из клееного бруса — это коттедж «Причал» площадью 230 кв. м (сейчас находится в стадии строительства). Здание имеет очень интересную конфигурацию — на первом этаже располагаются эркер с панорамным остеклением, частично выходящий на 38-метровую террасу, огибающую здание со стороны сада и выходом в лес.На первом этаже помимо кухни-столовой и гостиной можно расположить еще кабинет или гостевую спальню, а на втором — 3 спальни и санузел. В этом проекте тоже есть второй свет – гостиная в два этажа смотрится особенно эффектно. Если отказаться от второго света, можно слегка расширить жизненное пространство на втором уровне и сделать еще одну спальню.

1 этаж

2 этаж
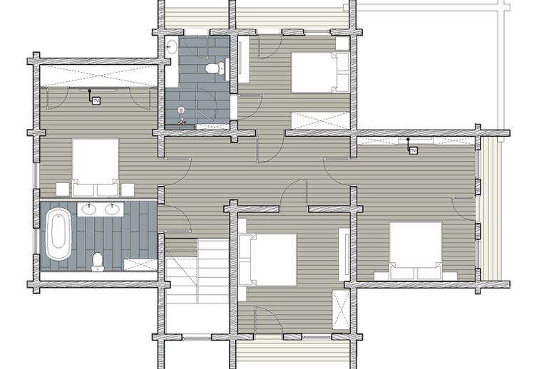
Среди примеров газобетонных домов — коттедж «Кедр» солидной площади 270 кв. м. Его изюминка в наличии 2 террас, выходящих в сад, и панорамное остекление.
На первом этаже размещаются кухня-столовая и просторная гостиная. На втором этаже размещаются 4 равные по площади спальни с гардеробными. И на первом, и на втором этажах предусмотрен просторный холл, симметрично разделяющий пространство на отдельные зоны.

1 этаж

2 этаж
200-метровый проект «Кипарис» тоже имеет интересную конфигурацию.

Столовая и большая спальня выполнены с эркером, что позволяет более интересно организовать внутреннее пространство. Второй этаж настолько высокий, что в детских спальнях можно сделать антресоли с игровыми зонами.

1 этаж

2 этаж
Площадь газобетонного коттеджа «Вереск» составляет 300 кв. м. Здесь 2 балкона и 2 террасы.

На втором уровне, помимо 4 спален, предусмотрено 2 просторных санузла и гардеробная.

1 этаж

2 этаж
Самый маленький коттедж в поселке — это 165-метровый «Нептун» с двумя балконами с противоположных сторон.

Размер объединенной зоны кухни-столовой и гостиной здесь будет вполне солиден, можно и разграничить эти пространства. На втором этаже 3 спальни и просторная ванная комната.

1 этаж

2 этаж
Из газобетона выполняется и проект дуплекса «Яблоня». Площадь половины для одного хозяина 144 кв. м на участке 7,5 соток.
В доме можно воплотить планировку с объединением кухни-столовой и гостиной на первом этаже, на втором 3 спальни.
Очень интересно выглядят комбинированные варианты. Например, у шале «Эльбрус» площадью 257 кв. м первый этаж из газобетона, а второй – из оцилиндрованного бревна.

Условно крестообразная планировка здания помогает интересно зонировать пространство, придав каждому жилому помещению большую степень «автономности». На втором этаже предусмотрены 2 мастер-спальни, а один из санузлов оригинален тем, что из него имеется выход на балкон.

1 этаж

2 этаж
Проект «Лагуна» площадью 211 кв. м тоже комбинированный, только на втором уровне используется не оцилиндрованное бревно, а клееный брус.

Изюминка коттеджа – просторная крытая веранда с угловым обзором. На первом этаже можно расположить просторную гостиную и кухню-столовую, на втором — 3-4 спальни.

1 этаж

2 этаж
Вокруг всех типов домовладений устанавливаются ограждения из невысокого белого штакетника. Гаражи в проектах не предусмотрены, но собственники могут обустроить себе гараж или навес в едином стиле с жилыми зданиями.

Огражения выдержаны в едином стиле
Все коммуникации в поселке действующие. На каждый участок выделяется по 7 кВт электричества (при желании эту мощность можно увеличить), при этом электроэнергия подступает от двух подстанций. На территории поселка имеются 2 собственные артезианские скважины глубиной 135 м. Канализация централизованная с очистными сооружениями, вынесенными за пределы поселка. Имеется свой водозаборный узел, выдержанный в единой эстетике со зданиями. К домам подведен магистральный газ.

Водозаборный узел
Мнение редакции. Благодаря тематическому зонированию, и объединяющим моментам, например заборам и крышам в едином стиле, в поселке отсутствует архитектурный разнобой. К плюсам можно отнести большой выбор проектов и материалов домовладений, выделение достаточного пространства под рекреационные зоны. Готовая планировка в ряде типов коттеджей тоже может представлять интерес для ряда покупателей.
Оценка: ![]()
III. Инфраструктура
Ближайшие муниципальные детский сад и школа находятся в паре км от «Перелесок», в Онуфриево. Там же в местном ДК для детей работают студия танца «Василек», вокальная студия и кружок декоративно-прикладного искусства. Действует амбулатория, имеются продуктовый, хозяйственный и строительный магазины.
Если родители желают, чтобы их дети учились в продвинутых учебных заведениях, придется ездить за 30 км в Истру, где имеется лицей, а также две частных школы. Ближайшая сельская участковая больница расположена в 25 км, в селе Новопетровском, остальные муниципальные медицинские учреждения, включая районную клиническую больницу со взрослым и детским отделениями, в Истре. Ближайший торговый центр находится в Новопетровском.

Спортивная площадка
Большинство жителей не живут в поселке на постоянной основе, и крупные покупки в основном делают в многочисленных гипермаркетах на выезде из Москвы: «Твой дом, «Карусель», «Рига Молл», «Глобус».
Спортивная и развлекательная инфраструктура в ближайших окрестностях представлена в основном конными и рыболовными клубами, а также развлечениями, близкими к экстриму. В Онуфриево работает конный клуб, где даются индивидуальные уроки верховой езды и откуда лошадей в «Перелески» иногда заказывают на праздники, а в паре километров от поселка располагается поле, на котором с весны до поздней осени занимаются парапланеристы.

Детский игровой городок
В 10 минутах езды располагаются рыболовный клуб «Фишка Петряиха», клуб охотников и рыболовов на Тростенском озере, конно-спортивный клуб «Лабрис» и RusKvadroClub, где предоставляются в аренду багги, квадроциклы и снегоходы. Этот клуб располагается на территории пансионата «СОЮЗ» Газпром, где действуют тренажерный зал, крытый теннисный корт, бассейн с искусственным потоком, универсальный спортивный зал, боулинг и бильярд. А также все для красоты: SPA, аквацентр, соляная пещера, 2 сауны с купелями.
Среди изюминок спортивно-развлекательной инфраструктуры, расположенной в 15-25 минут езды на автомобиле: пони-клуб «Галеон» в районе деревни Дедешино и пейнтбольный клуб «Партизан» в районе деревни Кострово, Мотопарк Вельяминово в одноименной деревне и шахматный клуб «Белая Ладья» в Новопетровском.
Мнение редакции. Набор внутренней и внешней инфраструктуры минимален, а вот спортивно-развлекательная составляющая более, чем разнообразна и интересна.
Оценка: ![]()
IV. Условия инвестирования
Цена вопроса
Фактор ценообразования зависит от множества составляющих — не только площади земли и домовладения, но и от локации — самые дорогие участки с домами располагаются у реки и в прилесной зоне. Материал тоже по-своему влияет на стоимость, например, дома из клееного бруса даже по себестоимости дороже, чем коттеджи из газобетона. А вот здания из оцилиндрованного бревна по себестоимости примерно одинаковы с газобетоном.
Цены за дуплексы — 6,5 млн. руб., за коттеджи от 9 до 21 млн. руб. За подключение к газу необходимо доплатить еще 450-500 тыс. руб.
Сумма ежемесячных коммунальных платежей — 7 тыс. руб., вне зависимости от площади дома и участка. В указанную сумму входят охрана, освещение, уборка территории, вывоз мусора, чистка снега, а также водопользование. К этому плюсуется оплата коммуналки по газу и электричеству по тарифам Истринского района.
Условия приобретения
Жилье можно приобрести в ипотеку от трех банков с минимальной ставкой от 9,5% . Действует и система беспроцентной рассрочки на 3 года с минимальным первоначальным взносом 50%. Земля находится в собственности у застройщика и имеет статус сельхозназначения для дачного строительства.
Покупатели получают документы на землю и на дом. Коттеджи и дуплексы имеют статус индивидуальных жилых домов, возможна прописка.
Информация о застройщике
Первым застройщиком поселка была компании «Родекс групп», строившая многие поселки на Новорижском шоссе. Но в 2012 году компания разорилась, и поселок достался Инвестторгбанку. Нынешний застройщик «Перелески» был создан под банк.
Мнение редакции. Цены на коттеджи с участками не назовешь демократичными, но надо принимать во внимание большую площадь домовладений, а главное — участков. Небольшим минусом для заявленной цены является расстояние.

Виды коттеджного поселка Перелески
К конкурентам «Перелесок» на данном направлении можно считать поселок «Ла Манш», расположенный в 7 км от поселка, чуть ближе к Новорижскому шоссе.
Ценник на готовые дома с участками варьируется здесь от 8,7 до 16,5 млн руб., но в целом площадь строений и участков — от 155 до 205 кв. м и от 10 до 12,7 соток соответственно. Кроме того, в продаже в «Ла Манше» сейчас находится немалое количество участков без подряда, что может привести к архитектурному разнобою.
Беспроцентная рассрочка на 3 года — интересное предложение. Одинаковая для всех плата за обслуживание — не слишком распространенная тенденция в других поселках — чаще всего, приходится доплачивать за лишние метры и сотки.
Оценка: ![]()
Образ покупателя
В подавляющем случае это москвичи с доходом сильно выше среднего, приобретающие коттедж в поселке в качестве второго дома. Костяк составляют представители топ–менеджмента и собственники бизнеса в возрасте 40-50 лет, которые намереваются переехать сюда жить на пенсии, оставив квартиры детям.
В поселке много семей с детьми, регулярно приезжающие в «Перелески» на выходные. Из 100 семей, уже заселившихся в свои дома, 14 проживают на постоянной основе. В основном, жилье приобретается со стопроцентной оплатой или через ипотеку.
В поселке создается свое сообщество, совместно и креативно отмечают праздники. Например, под Новый год был сделан проект «Сказочная зима»: пригласили профессиональных визажистов и костюмеров, жителей загримировали под героев русских сказок, после чего была проведена постановочная фото и видеосъемка, а позже выпущен календарь.
V. Подведение итогов
Покупка жилья в коттеджном поселке «Перелески» интересна, в силу политики цен, покупателям, чей статус выходит за рамки среднего класса, и у кого все хорошо с городской недвижимостью. В этом случае «Перелески» — идеальный вариант комфортного загородного жилья с возможностями активного отдыха — как на территории самого поселка, так и в ближайших окрестностях.
Впрочем, для тех, кто уходит на заслуженный отдых — это тоже интересное приобретение. В более широком смысле поселок подходит и для семей с детьми дошкольного возраста, и даже школьного — в том случае, если родители готовы к посещению школы в Онуфриево или в Истре и не связаны необходимостью ездить на работу «по звонку».
Общая оценка поселка: 16.7 из 25
| Местоположение | ||
| Визуальные характеристики | 5 | 4 |
| Экология | 5 | |
| Транспортная доступность на автомобиле | 4 | |
| Транспортная доступность на общественном транспорт | 3 | |
| Перспективы развития транспортной доступности | 3 | |
| Архитектура и планировочные решения | ||
| Зонирование территории | 5 | 5 |
| Организация парковки | 5 | |
| Архитектура | 5 | |
| Планировки домов | 5 | |
| Инженерные системы | 5 | |
| Инфраструктура | ||
| Заявленная | 3 | 3.3 |
| Ближайшая | 3 | |
| Кластера | 4 | |
| Условия инвестирования | ||
| Цена | 4 | 4.7 |
| Условия сделки | 5 | |
| Надежность застройщика | 5 | |
| Риски и недостатки проекта | ||
| Риск заморозки проекта после первой или второй стадии | 0 | -0.3 |
| Риск недоразвития собственной инфраструктуры | -1 | |
| Риск проблем с парковкой | 0 | |
| Риск повышенной платы за обслуживание | 0 | |







