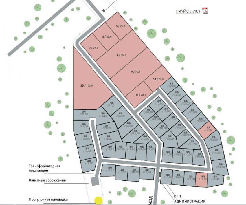
коттеджный поселок Середниково
Участки от 10 до 25 соток.
Лес: Лес по границе участка
Водоём: Водоем рядом с участком
Населённые пункты: Лугинино — 3.60 км, Брехово — 2.53 км, Подолино — 2.72 км
Шоссе: Пятницкое, Солнечногорский район, 15 км
Домов/участков: 62
Назначение земли: ИЖС
КП «Середниково» - современный благоустроенный поселок закрытого типа с лесными участками без подряда на 14-м километре Пятницкого шоссе со всеми центральными коммуникациями. Статус - ИЖС.
Рядом с поселком расположено природное озеро и культурно-историческая усадьба Середниково, что гарантирует низкую плотность застройки вокруг поселка и сохранение великолепного природного ландшафта.
Участки от 10 соток. Площадь проекта 10,5 Га.
Гибкая ценовая политика и комфортное окружение делают поселок “Середниково” поистине уникальными предложением на рынке подмосковной недвижимости как для покупателей-инвесторов, так и для тех, кто готов подарить себе и своим близким уединенную и спокойную жизнь в непосредственной близости от большого города.
- Инфраструктура: гостевая парковка, детская игровая площадка, зона отдыха, спортивная площадка
- Охрана: Видеонаблюдение, КПП, Шлагбаум
- Коммуникации: Интернет
- Канализация: Центральная
- Водоснабжение: Центральное
- Газ: Магистральный
- Электричество: Центральное
Дата съемки: 07.11.2014

Это поселок закрытого типа, прелесть его в том, что все участки лесные и сам поселок примыкает к лесу, рядом озеро и усадьба Середниково, а ведь престижно иметь дом рядом со старинной усадьбой.
Пока ничего нельзя отметить, т.к. поселок в стадии строительства.












