загородный комплекс Олимпийская деревня Новогорск
Коммунальные платежи: от 10000 р/мес
Дома от 150 до 300 м2. Участки от 2 сотки.
Лес: Лес по границе участка
Водоём: Водоем рядом с участком
Населённые пункты: Мещерское — 1.47 км, Гаврилково — 2.96 км, Новоселки — 3.22 км
Ближайшая ж/д станция: Планерная, 2.48 км
Шоссе: Куркинское, Ленинградское, Машкинское, Красногорский район, 1 км
Домов/участков: 120
Назначение земли: ИЖС
Уникальный жилой комплекс «Олимпийская деревня Новогорск» — авторский проект Ирины Александровны Винер-Усмановой, заслуженного тренера РФ, президента Всероссийской федерации художественной гимнастики, доктора педагогических наук.
На 12 гектарах земли на берегу реки расположились 120 частных домов с собственными участками земли и просторными верандами. Все частные дома построены, в них активно ведутся ремонты.
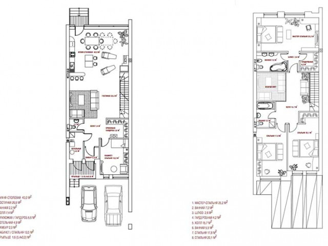
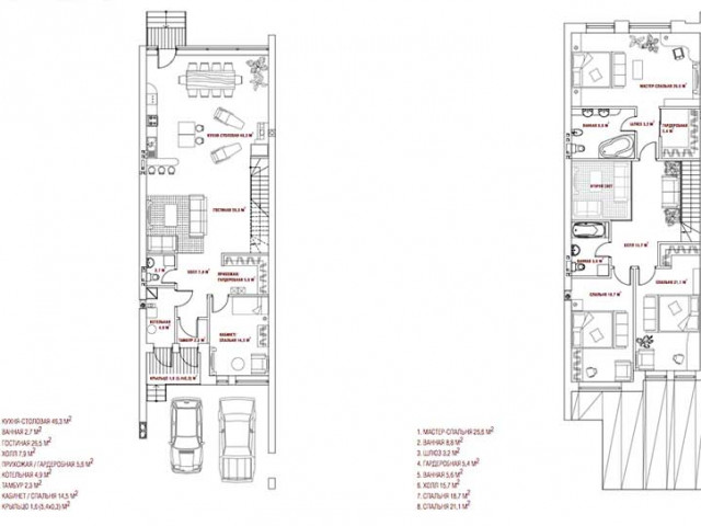
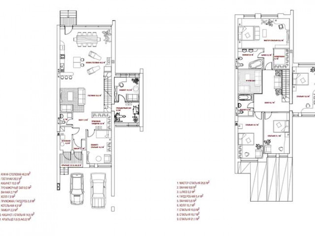
Дома имеют современные, наполненные светом и воздухом планировки, их площади — от 209.5 кв.м до 265.5 кв.м. Высота потолков составляет 3,0 метра (в чистовой отделке), что создает дополнительный объем и ощущение простора. Архитекторы и девелопер учли все пожелания покупателей: в каждом доме есть второй свет, гаражные помещения полностью выведены из жилого периметра, что позволило убрать неприятные запахи и технический мусор от автомобиля. Для машин теперь предусмотрен навес. Открытые террасы стали частью дома, что позволило увеличить жилую площадь и дополнить интерьер панорамными окнами, выходящими на частную территорию. Окна выполнены из дерева благородного натурального темного оттенка. Фасады облицованы клинкерной плиткой, торцы домов имеют вставки из травертина и дерева. Цоколь обрамлен керамогранитной плиткой, а крыши и навесы домов выполнены из фальца.
Уникальная инфраструктура «Олимпийской деревни Новогорск» предоставляет безграничные возможности для интеллектуального и эстетического развития детей и их родителей. Ирина Александровна Винер-Усманова применила весь свой многолетний педагогический опыт и разработала программу максимум, воплощать которую пригласила лучших педагогов и тренеров. На территории семейного спортивно-образовательного кластера располагаются: Академическая гимназия и детский сад, Центр гимнастики Ирины Винер-Усмановой, Школа бокса Александра Лебзяка, Школа единоборств, Школа Трех Искусств Алексея Кортнева, Академия фехтования Ильгара Мамедова, Школа волейбола Любови Соколовой, гольф-клуб, теннисный клуб и другие.
Близость к городу и прекрасная транспортная доступность делают жилой комплекс «Олимпийская деревня Новогорск» одним из самых привлекательных объектов для постоянного проживания.
- Инфраструктура: волейбольная площадка, гольф-поле, гостевая парковка, детская игровая площадка, детский сад, зона отдыха, спортивная площадка, теннисный корт, тренажерный зал, фитнес-клуб, школа
- Тип дома: Кирпич, Монолит
- Охрана: Видеонаблюдение, КПП, ЧОП, Шлагбаум
- Коммуникации: Интернет, Кабельное ТВ, Спутниковое ТВ, Телефон
- Канализация: Ливневая канализация, Центральная
- Водоснабжение: Скважина
- Газ: Магистральный
- Электричество: Центральное
Дата съемки: 05.11.2014

Площадь первого этажа составляет 104 кв.м.
Площадь второго этажа составляет 98,1 кв.м.

Я так благодарна Ирине Виннер-Усмановой за проект, что хочется оставить самый добрый отзыв. Она смогла угадать мои желания и дать шанс детям на счастливое спортивное детство. Дело в том, что поселок разрабатывался ей лично. Она учла все пожелания современного жителя и предложила коттеджи с натуральной отделкой. деревянными стеклопакетами, отделкой из натурального дерева. камня и черепицы. Дома просторные, с высокими потолками и огромными панорамными окнами. Особое условие - машины не занимают место рядом с жилым помещением, таким образом получилось их поставить отдельно и избавить жильцов от выхлопных газов.
откуда?
Мы приобретением дома в этом ЖК довольны. От города недалеко- на работу без проблем и я и муж добираемся. Зато после работы попадаешь просто в рай на земле. Здесь такая чудесная атмосфера. Просто заряжаешься положительной энергией.
Покупка дома прошла гладко, сотрудники очень вежливые , нацелены на быстрое проведение сделки. Место замечательное, дом светлый и теплый, вид кругом замечательный. До Москвы близко, за 20 минут доезжаю.
Практически нет
Их просто нет. Все проблемы Ваши и решайте их сами, просто платите сколько Вам говорят.
Попробуйте купить, узнаете, что такое счастье. После получения первого взноса менеджер перестает отвечать на телефонные звонки (в моем случае Василий), с руководством связаться невозможно, документы на собственность получить практически невозможно. После полной оплаты стоимости квартиры менеджер пропадает совсем. Короче серьезно подумайте прежде чем принять решение о покупке. Вы там просто не нужны.
| фото | знаменитость | местоположение |
|---|---|---|
![]() | Ан Виктор
Российский шорт-трекист, до декабря 2011 года представлявший Республику Корея. Заслуженный мастер спорта России (2013). | Олимпийская деревня Новогорск загородный комплекс |






















