коттеджный поселок Лесная сказка
| Местоположение | 4.2 |
| Архитектура и планировочные решения | 4.4 |
| Инфраструктура | 3.3 |
| Условия инвестирования | 3.7 |
| Риски и недостатки проекта | -0.8 |
Коммунальные платежи: от 7000 р/мес
Дома от 200 до 250 м2. Участки от 10 до 15 соток.
Лес: Лес по границе участка
Водоём: Водоем рядом с участком
Населённые пункты: Данилово — 1.21 км, Мураново — 1.23 км, Подвязново — 1.39 км
Ближайшая ж/д станция: Ашукинская, 2.89 км
Шоссе: Ярославское, Пушкинский район, 35 км
Домов/участков: 78
Назначение земли: ИЖС
На севере Подмосковья, рядом с исторической усадьбой Мураново, строится коттеджный поселок «Лесная сказка». До него всего 35 километров по Ярославскому шоссе.
Место действительно сказочное — в достаточном отдалении от шумных магистралей, в окружении нетронутого леса, живописных холмов, чистых речек и родников.
Поселок небольшой, всего 10 гектар территории. Рассчитан он на 78 землевладений. Размер их оптимальный для загородного строительства - от 10 до 15 соток. Приобрести участки можно в двух вариантах — с подрядом на строительство дома или же без него.
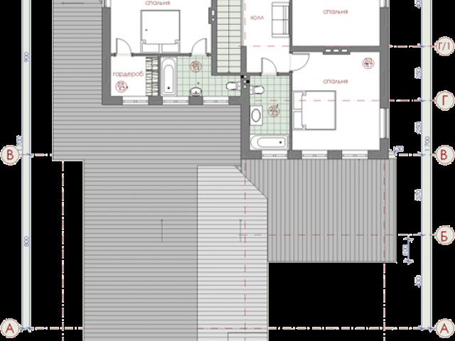
Предлагаемые проекты 2-этажных домов (их три, площадью 200, 236 и 250 кв. метров) отличаются стильным внешним обликом и продуманными планировками — просторные веранды, большие гостиные, уютные спальни. В каждом предусмотрен гараж на 2 автомобиля.
Каждый проект имеет свои особенности. Так, «Уют» площадью 200 кв. м. отличается обилием открытых пространств — наряду с просторной верандой на первом этаже, здесь есть 3 балкона на втором. А вот в проекте «Комфорт» площадью 236 кв. м., балкона нет, только верандой. Зато предусмотрено 5 спален (одна из них на первом этаже). Кладовая и котельная «вынесены» за пределы помещения и примыкают к пристроенному гаражу. На втором этаже здесь есть гардеробная и просторный холл. Некоторые проекты не имеют названия — это дом площадью 350 кв. м. с 5 спальнями и балконами, и два дома площадью 200 кв. м., с 4 спальнями. Есть на территории дуплекс — площадь каждой его секции 140 кв. м. «Комфорт», «Гармония» и 350-метровый дом несут в себе идею «сложной» геометрии — со множеством изломов крыш, в то время как у «Уюта» — более строгая и простая внешняя конструкция, а у дуплекса и 200-метровых «безымянных» домов экстерьер отчасти минималистический. Читать далее... |
Ко всем участкам «Лесная сказка» уже подведены необходимые для строительства и жизни центральные коммуникации, проложены внутренние дороги, территория огорожена и установлено уличное освещение.
В поселке предполагается развитие собственной инфраструктуры:
- Административное здание, в котором расположатся магазин, аптека, ресторан и бильярдная
- Детский клуб
- Искусственный пруд с зоной отдыха
Открылось несколько спортзалов с различными секциями: бокс, Альфа Гравити, настольный теннис, баскетбол, рисование, катание на снегоходах и квадроциклах.
- Массажный кабинет.
- Кафе.
- Сауна и Хамам
Помимо этого, любители экстрима легко могут добраться до горнолыжных курортов, которыми славится Ярославское направление — дорога не займет более получаса.
- Инфраструктура: аптека, баскетбольная площадка, гостевая парковка, детская игровая площадка, зона отдыха, кафе, магазин, ресторан, сауна, спортивная площадка, тренажерный зал
- Охрана: КПП, ЧОП
- Коммуникации: Интернет, Спутниковое ТВ
- Канализация: Центральная
- Водоснабжение: Центральное
- Газ: Магистральный
- Электричество: Центральное



Достойный вариант для тех, кто привык к комфорту. Застройщик молодец, предлагает соискателям несколько архитектурных проектов на любой вкус. Отдельное спасибо за развитие собственной инфраструктуры в поселке. В 20 минутах езды есть горнолыжные трассы. Дороги в поселке нормальной ширины, есть места для парковки, работает уличное освещение. В непосредственной близости есть водоемы, родники и источники. Экологическая обстановка на высшем уровне.





















