Продам дом, Ступино
8 900 000 руб.
Дом 378.2 м2
Участок 6.57 сотки
Дом 378.2 м2
Участок 6.57 сотки
Владимир
+7 (958)XXXXX Показать номер
Описание
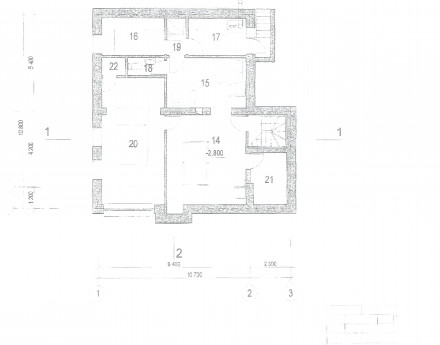
Продается дом общей площадью 378.2 кв. м. без внутренней отделки – стоит на кадастровом учете. В доме 4 этажа: цокольный, 1й, 2й, мансардный. Дом полностью остеклен стеклопакетами. В цокольном этаже организована подземная парковка на 2 машино места. На первом этаже кухня-столовая, кабинет, гардеробная, с/у. На втором этаже 4спальни, ванная, с/у. Дом построен в 2017г. Мягкая кровля, фундамент монолитная плита, материал стен газосиликатный блок, облицован высококачественным клинкерным кирпичом. Между блоком и кирпичом утеплитель минеральная вата, предусмотрены вентиляционные отверстия по всей наружной кирпичной облицовке стен дома. Перекрытия монолитные. По периметру дома сделан дренаж. Дом предназначен для круглогодичного проживания. Высокое качество строительства. Современный проект. Земельный участок 6,57 соток, ровный, правильной формы. Коммуникации: газ по границе, электричество подведено к дому – 15 кВт, центральный водопровод заведен на участок Канализация: установлен автономный септик ТОПАС 8 (на 8 проживающих человек) – современная станция высокой биологической очистки. Дом расположен по адресу: Московская область, г. Ступино, ул. Железнодорожная, дом 30. Очень хорошее расположение! Остановка общественного транспорта 5 минут пешком (15 мин. автобусом до центра г. Ступино). ЖД станция Акри в 10 минутах пешком(1час 30 мин до Павелецкого вокзала г. Москвы). Рядом школа, Детский сад, Магазины (Магнит, Пятерочка), Баня. Прекрасная природа, 2 км до озерa с пляжем, рядом лесной массив. Все документы готовы к сделке. Торг возможен после осмотра.
В цокольном этаже помещения для: подземной парковки (на 2 машино меcта), кладовки для запчастей, комнаты отдыха, кладовки для продуктов, сауны, душевой, туалета. Также помещение с отдельным входом для котла отопления и водонагревательного котла.
-На первом этаже: прихожая, кухня-столовая, каминный зал, кабинет, с/у, веранда с выходами из каминного зала и кабинета. Высота потолков 3м. В каминном зале установлен дымоход для камина совмещённый с вентиляционными каналами (от цокольного этажа до мансардного этажа – для каждого этажа свой канал – всего 4 изолированных вентиляционных канала) выведены через крышу( каналы и дымоход), облицованы кирпичом.
На втором этаже 4 спальни, ванная комната + с/у. Высота потолков 2, 9м. Веранда с выходами из двух спален. Из 3й спальни выход на балкон. В 4й спальне 2 мансардных окна.
Мансардный этаж светлое утепленное помещение 80 кв. м, 4 окна 2 из них мансардные в крыше). Крыша - мягкая кровля, утеплена утеплитель 200мм.
- Фундамент монолитная железобетонная плита, цокольный этаж единая с фундаментом монолитная железобетонная конструкция , толщина стен 50мм, высота потолка цокольного этажа 3м.
Этажность дома: 4
Материал стен: кирпич
Количество комнат: 10
Год постройки: 2017
Отопление: газовый котел
Электричество: есть
Канализация: септик
Телефон: да
Интернет: да
Категория земли: земли населенных пунктов
Водопровод: центральное
Газ: по границе
Баня: да
Гараж: да
В цокольном этаже помещения для: подземной парковки (на 2 машино меcта), кладовки для запчастей, комнаты отдыха, кладовки для продуктов, сауны, душевой, туалета. Также помещение с отдельным входом для котла отопления и водонагревательного котла.
-На первом этаже: прихожая, кухня-столовая, каминный зал, кабинет, с/у, веранда с выходами из каминного зала и кабинета. Высота потолков 3м. В каминном зале установлен дымоход для камина совмещённый с вентиляционными каналами (от цокольного этажа до мансардного этажа – для каждого этажа свой канал – всего 4 изолированных вентиляционных канала) выведены через крышу( каналы и дымоход), облицованы кирпичом.
На втором этаже 4 спальни, ванная комната + с/у. Высота потолков 2, 9м. Веранда с выходами из двух спален. Из 3й спальни выход на балкон. В 4й спальне 2 мансардных окна.
Мансардный этаж светлое утепленное помещение 80 кв. м, 4 окна 2 из них мансардные в крыше). Крыша - мягкая кровля, утеплена утеплитель 200мм.
- Фундамент монолитная железобетонная плита, цокольный этаж единая с фундаментом монолитная железобетонная конструкция , толщина стен 50мм, высота потолка цокольного этажа 3м.
Этажность дома: 4
Материал стен: кирпич
Количество комнат: 10
Год постройки: 2017
Отопление: газовый котел
Электричество: есть
Канализация: септик
Телефон: да
Интернет: да
Категория земли: земли населенных пунктов
Водопровод: центральное
Газ: по границе
Баня: да
Гараж: да
Посёлки рядом
3.63млн. руб.73 км от МКАДHighwood Residence (Хайвуд Резиденс)
от 3.63 млн. руб.
участки от 11 соток
шоссе: Ленинградское
от МКАД: 73 км
готовность: Строительство
участки от 11 соток
шоссе: Ленинградское
от МКАД: 73 км
готовность: Строительство
20млн. руб.100 км от МКАДOzerna Residence (Озерна Резиденс)
от 20 млн. руб.
участки от 40 соток
шоссе: Минское, Новорижское
от МКАД: 100 км
готовность: Строительство
участки от 40 соток
шоссе: Минское, Новорижское
от МКАД: 100 км
готовность: Строительство
2млн. руб.110 км от МКАДРузские дачи
от 2 млн. руб.
участки от 9 до 30 соток
шоссе: Волоколамское, Новорижское
от МКАД: 110 км
готовность: Завершение строительства
участки от 9 до 30 соток
шоссе: Волоколамское, Новорижское
от МКАД: 110 км
готовность: Завершение строительства
1.62млн. руб.115 км от МКАДLakeside Residence (Лэйксайд Резиденс)
от 1.62 млн. руб.
дома от 60 до 330 м2
участки от 7 соток
шоссе: Каширское, Симферопольское, Трасса М4 Дон
от МКАД: 115 км
готовность: Строительство
дома от 60 до 330 м2
участки от 7 соток
шоссе: Каширское, Симферопольское, Трасса М4 Дон
от МКАД: 115 км
готовность: Строительство
1млн. руб.20 км от МКАДЮсупово Village (Юсупово Вилладж)
от 1 млн. руб.
дома от 125 м2
участки от 5 соток
шоссе: Симферопольское
от МКАД: 20 км
готовность: Построен
дома от 125 м2
участки от 5 соток
шоссе: Симферопольское
от МКАД: 20 км
готовность: Построен
9.27млн. руб.12 км от МКАДГранд Клязьма
от 9.27 млн. руб.
участки от 6 до 31 сотка
шоссе: Дмитровское
от МКАД: 12 км
готовность: Строительство
участки от 6 до 31 сотка
шоссе: Дмитровское
от МКАД: 12 км
готовность: Строительство
Полезные статьи о загородной недвижимости
Мнения специалистов
577




















































