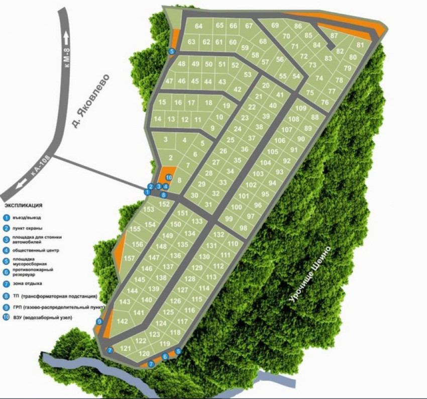
Дачный поселок Зеленая горка
Участки от 6 до 16 соток.
Лес: Лес по границе участка
Водоём: Водоем рядом с участком
Шоссе: Ярославское, Сергиево-Посадский район, 70 км
Домов/участков: 157
Назначение земли: Дачное строительство
Объявления в посёлке Зеленая горка
0.50млн. руб.6 соток
На северо-востоке Подмосковья, на границе большого лесного массива, строится дачный поселок «Зеленая горка». До МКАД 70 километров, на Ярославское шоссе ведет удобная подъездная дорога, вполне комфортно добираться на общественном транспорте.
Хорошо представлена и внешняя инфраструктура — до города Сергиева Посада не более 15 минут пути, еще ближе расположено несколько населенных пунктов, в которых можно найти все необходимое.
Поселок довольно большой, землевладения предлагаются без обязательного подряда. Коммуникации к началу строительства подготовлены. Участки «Зеленая горка» отличаются прекрасными видовыми характеристиками, благодаря особенностям природного рельефа.
Концепцией проекта предусмотрено дальнейшее развитие поселка, обустройство общественных территорий.
- Охрана: КПП, Шлагбаум
- Коммуникации: Интернет
- Электричество: Центральное











