коттеджный поселок Завидово HONKA
| Местоположение | 4.2 |
| Архитектура и планировочные решения | 5 |
| Инфраструктура | 5 |
| Условия инвестирования | 5 |
| Риски и недостатки проекта | -0.3 |
Коммунальные платежи: от 6000 р/мес
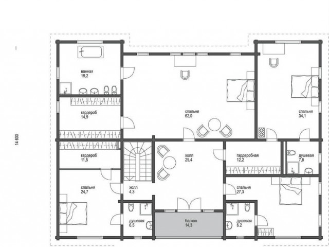
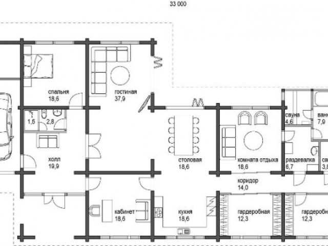
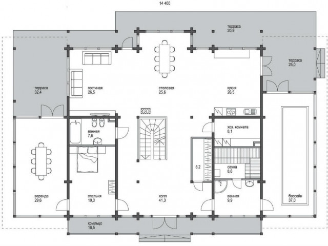
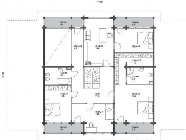
Дома от 208.6 до 326.5 м2. Участки от 20 до 35 соток.
Лес: Лес по границе участка
Водоём: Водоем рядом с участком
Населённые пункты: Завидово — 4.22 км, Вахонино — 6.61 км, Новозавидовский — 6.67 км
Шоссе: Ленинградское, 97 км
Домов/участков: 86
Назначение земли: ИЖС
Коттеджный поселок «Завидово HONKA» - часть масштабного проекта Большое Завидово, реализуемого на берегу Московского моря в Тверской области. От Москвы до него 97 километров по Ленинградскому шоссе — не более полутора часов пути.
Поселок небольшой — всего 86 просторных, размером от 20 до 35 соток, участков. Добротные современные деревянные дома прекрасно вписываются в окружающую природу и обеспечивают привычный горожанам комфорт.
Выбор проектов способен удовлетворить любые запросы, а высокое качество строительства и используемых материалов гарантирует долговечность. Коттеджи «Завидово Хонка» подключаются ко всем центральным коммуникациям.
Пока формат нашего поселка можно рассматривать как „дальняя дача“. Но грандиозные планы по комплексному развитию Большого Завидово, включаюшему районы деревень Мокшино, Безбородово, Вараксино, Кабаново смогут сделать поселок местом для постоянного проживания. К тому времени цены здесь резко взлетят. Большое Завидово станет спутником Твери, находящейся отсюда в 20 км. Появятся новые малоэтажные комплексы, которые повлекут за собой дальнейшее развитие инфраструктуры, будет налажено транспортное сообщение. Это место станет серьезной точкой притяжения для Москвы, Санкт-Петербурга и Тверской области, а также курортом для отдыха на воде, игры в гольф и т. п. Мы долго присматривались к этому месту, затем родилась идея создать поселок для людей, желающих жить здесь в высококачественных деревянных домах и в полной мере пользоваться всей существующей инфраструктурой. Читать далее... |
Территория поселка охраняется, на въезде установлен КПП. Внутреннее благоустройство включает большую зону отдыха, открытый теннисный корт, спортивную и детскую площадки и гостевую парковку.
Кроме этого, жителям доступна вся инфраструктура этого уникального курорта — гольф-клуб и яхт-клуб с причалами и эллингами, пляж, рестораны и магазины, медицинский центр, развлекательный комплекс и многое другое.
- Инфраструктура: гостевая парковка, детская игровая площадка, зона отдыха, спортивная площадка, теннисный корт
- Тип дома: Брус, Клееный брус
- Охрана: КПП, ЧОП
- Коммуникации: Интернет, Спутниковое ТВ
- Канализация: Центральная
- Водоснабжение: Центральное
- Газ: Магистральный
- Электричество: Центральное











































