коттеджный поселок Юсупово Life park (Юсупово Лайф парк)
| Местоположение | 4.6 |
| Архитектура и планировочные решения | 4.8 |
| Инфраструктура | 4.7 |
| Условия инвестирования | 4.7 |
| Риски и недостатки проекта | -0.8 |
Коммунальные платежи: от 4000 р/мес
Дома от 100 до 280 м2. Участки от 2 до 20 соток.
Лес: Лес по границе участка
Водоём: Водоем рядом с участком
Населённые пункты: Меньшово — 8.35 км, Томарово — 14.99 км, Зыкеево — 16.44 км
Шоссе: Симферопольское, Домодедовский район, 24 км
Домов/участков: 257
Назначение земли: ИЖС
Коттеджный поселок «Юсупово Life park» предназначен как для постоянной жизни в собственном доме, так и для полноценного отдыха на свежем воздухе. Располагается он на 25 километре Каширского шоссе неподалеку от города Домодедово.
«Мы имеем дело с «конечными пользователями», у нас отсутствует сегмент покупателей, приобретающий жилье с инвестиционными целями, — рассказывает Сергей Антонов. — Поэтому у нас отсутствуют ситуации, когда жилье бесконечно стоит без ремонта. В основном наши покупатели – это работающие люди в возрасте от 30 лет, представители малого и среднего бизнеса, госслужащие, чиновники, сотрудники правоохранительных органов. Читать далее... |
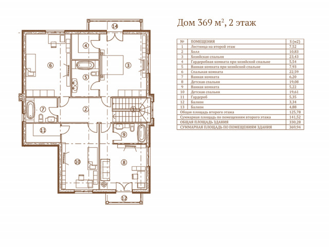
Территория поселка разделена на участки площадью от 8 соток. На выбор покупателя предлагаются несколько вариантов домов разной площади (184, 216, 274, 329, 269 и 430 квадратных метров). В коттеджах предусмотрены две жилые зоны:
- На первом этаже – активная зона. Здесь расположена кухня, гостевая комната, гостинная с камином и несколько помещений бытового назначения.
- На втором этаже – спокойная зона. Здесь находятся ванные, гардеробные комнаты и изолированные спальни с балконами
Кроме того, на первом этаже имеется санузел для гостей, а на втором этаже – от 1 до 4 ванных комнат, в зависимости от проекта дома. Все коттеджи дополнены летними террасами, где можно отдыхать всей семьей.
Внешние стены зданий выполнены из керамического кирпича, для их отделки использована плитка, имитирующая природный камень, декоративная полимерная штукатурка и облицовочный кирпич. Внутренние перегородки в коттеджах изготовлены из пазогребневых блоков, для обустройства кровли использована мягкая черепица.
В целом, архитектурный облик нового поселка характерен для северо-западной Европы. Отличительными особенностями таких зданий можно назвать четкие формы, точные пропорции и использование в строительстве только натуральных материалов.
Инфраструктура
Основной акцент в новом поселке сделан на активный отдых всех жителей, независимо от возраста. На территории построены детские развивающе-игровые городки, спортивные площадки, оборудованы места для отдыха со скамейками, фонтаном, цветочными клумбами, тропинки для пеших прогулок, площадки для барбекю с беседками и уютный парк.
В «Юсупово Лайф Парк» созданы все условия для занятия спортом. Отличительной особенностью поселка является наличие собственного фитнес- центра с открытым круглогодичным плавательным бассейном. Кроме того, предусмотрены площадки для игры в волейбол, теннисные корты, футбольное поле, площадки для размещения столов для пинг-понга. В зимнее время в поселке будет функционировать каток и освещенная лыжная трасса.
В поселке запроектированы игровые площадки для детей разных возрастных групп, детский центр, скейт парк и роллердром.
- Инфраструктура: гостевая парковка, детская игровая площадка, зона отдыха, магазин, спортивная площадка, теннисный корт, фитнес-клуб, футбольное поле
- Охрана: Видеонаблюдение, КПП, Сигнализация
- Коммуникации: Интернет, Спутниковое ТВ
- Канализация: Центральная
- Водоснабжение: Центральное
- Газ: Магистральный
- Электричество: Центральное



В прошлом году купил здесь дуплекс, хотя многие отговаривали. Не пожалел. Дом построен с душой. Чувствуется свой уникальный стиль. Отделка внутри дарит только позитивные эмоции. Соседи – молодая пара, очень приятные и вежливые люди. На территории чисто, убрано, есть цветники, ухоженные газоны, мини-парк для отдыха. С наступлением вечера всегда работает освещение. В поселке есть свой маркет, в радиусе 5 км много социальных объектов. Обслуживание жилья недорогое. Одним словом, грех жаловаться.
Вот, загородное жилье должно быть таким. От Москвы всего 25 км. Как по мне это не критично. Экология на высоком уровне, дышать легко, гулять по лесам и возле водоемов можно сколько хочешь. Инфраструктура тоже отличная. Школа, садик, магазин, аптека есть вообще рядом, кому нужно что-то большее, можно отправиться в ближайший город, а это всего несколько минут в пути. На территории же очень много зон для спорта: волейбол, баскетбол, теннис, мини-футбол и что-то там еще есть. Меня же заворожил огромный бассейн, вот где радость для детей и взрослых. Если говорить о домах, то они великолепные, по дизайну, интерьеру и коммуникациям.
нет
прекрасное расположение, внутренняя инфраструктура (фитнес, бассейн, садик, школа, трансфер), отличные сервисные решения для домовладельцев, хорошая транспортная доступность, собственные очистные сооружения, в окружении леса, тишина.
дороговизна земельных участков по причине перепродажи собственниками
нет
Обещанная инфраструктура - фейк! понастроили многоквартирных домов с малогаборитными квартирами. На поселок бизнес класса не тянет, не стоит своих денег.
Большой выбор представленных в поселке домов разной площади в зависимости от возможностей покупателя. Поселок позиционируется для активного отдыха всех жителей. На территории построены детская и спортивная площадки, оборудованы места отдыха, тропинки для пеших прогулок. Есть свой фитнес-центр, бассейн, площадки для футбола и волейбола, теннисные корты. Активный отдых доступен для любого жителя поселка.
Большая часть поселка - просто земельные участки, значит долгое строительство и все, что с ним связано.


















































