коттеджный поселок Westwood (Вествуд)
Коммунальные платежи: от 5000 р/мес
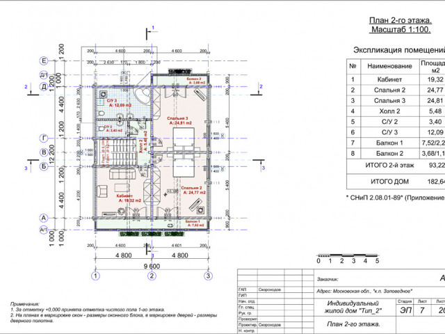
Дома от 160 до 270 м2. Участки от 8 до 15 соток.
Лес: Лесной участок
Населённые пункты: Мачихино — 3.63 км, Могутово — 4.18 км, Собакино — 6.98 км
Ближайшая ж/д станция: Мачихино, 1.04 км
Шоссе: Калужское, 40 км
Домов/участков: 30
Назначение земли: ИЖС
Все чаще жители современных городов выбирают жизнь в небольших поселках коттеджного типа, которые должны находиться в окружении сохранившейся живой природы и иметь вокруг не очень много частных домовладений. Все горожане грезят о доме, с террасы которого виден лес и слышно пение птиц и нет шума характерного для мегаполисов.
В то же время наши современники не мыслят свою жизнь без удобств окружающих нас в городских квартирах. Свои мечты можно претворить в жизнь, если переехать на постоянное место жительства в коттеджный поселок «Westwood», купив в личную собственность частное домовладение.
В этом коттеджном поселке жители обеспечены централизованными коммуникациями и готовой инфраструктурой, кроме этого хозяева участков могут выбрать его планировку по своему вкусу и согласно собственным пристрастиям. Дом в поселке «Westwood» предполагает и достаточно обширный земельный участок, поэтому там есть, где проявить свои фантазии и творческие идеи.
К этим положительным сторонам жизни в отдельных благоустроенных коттеджах можно прибавить и удовольствие от клубного совместного отдыха жителей поселка. Заплатив за дома и участок, будущие собственники уже не будут в дальнейшем дополнительно вносить деньги за обеспечение своего коттеджа электроэнергией, водой или газом, за асфальтированные дороги и другое благоустройство.
Особенности жизни в коттеджном поселке «Westwood»
Коттеджный поселок «Westwood» считается клубным именно поэтому собственники домовладений, члены их семей или гости имеют право пользоваться уникальным комплексным сооружением, в котором размещены спортивный зал и центр досуга для детей, кафе с интернетом и бар с фито коктейлями, медицинский кабинет, где проводятся консультации необходимых узких специалистов. Кроме этого на открытом воздухе располагается неплохая спортивная площадка.
К услугам любителей покататься на велосипедах проложена трасса в лесу протяженностью 17 километров. Жители поселка будут пользоваться современным продовольственным магазином.
Проживание в доме в поселке Westwood отличается высокой степенью безопасности, так как обеспечивается современной электронной охранной системой и высококвалифицированными специалистами.
Для автомобилей, на которых приезжают гости к жителям коттеджного поселка «Westwood» на въезде располагается специальная парковочная площадка под охраной.
- Инфраструктура: гостевая парковка, детская игровая площадка, зона отдыха, минимаркет, пляж, спортивная площадка
- Тип дома: Кирпич
- Охрана: КПП
- Архитектурный стиль: Альпийский, Шале
- Коммуникации: Интернет, Спутниковое ТВ
- Канализация: Центральная
- Водоснабжение: Центральное
- Газ: Магистральный
- Электричество: Центральное



Маленький поселок в лесу, добротные дома с хорошей планировкой, выдержанные в едином стиле. Коммуникации центральные, входят в стоимость участка. Понравился центр, в котором есть и спортзал, и досуг для детей, кафе с интернетом, и мед. центр, и др. И пользоваться им могут и гости собственников. Поселок охраняется.
Обычные при ведущемся строительстве.




















