коттеджный поселок Вельга Парк
Коммунальные платежи: от 2800 р/мес
Дома от 170 до 240 м2. Участки от 7 до 35 соток.
Лес: Лес по границе участка
Водоём: Водоем рядом с участком
Населённые пункты: Кузнецово — 1.55 км, Поджигородово — 1.03 км, Никольское — 2.18 км
Шоссе: Волоколамское, Ленинградское, Новорижское, Пятницкое, Клинский район, 87 км
Домов/участков: 200
Назначение земли: ИЖС
Коттеджный поселок «Вельга Парк» является небольшим клубным поселком, расположенным около реки Вельга. Поселок окружен со всех сторон лесом, что придает ему особый уют и камерность.
От центра Москвы до поселка дорога на личном транспорте составит полтора часа по Пятницкому или Новорижскому шоссе. Когда находишься в самом поселке, в это с трудом верится, настолько нетронутая человеком природа окружает его жителей.
Несмотря на то, что коттеджный поселок «Вельга Парк» находится буквально в чаще леса, его жители обеспечены всеми благами современной цивилизации – электричеством, газом, ровными дорогами и парковками. А досуг можно проводить, гуляя по лесным тропинкам или на собственном пляже.
Каждый житель коттеджного поселка «Вельга Парк» должен соблюдать определенный кодекс, как это предполагается клубной системой. Поселок относится к экологически чистым, т.к. окружающий его лес является отличным фильтром; для смога и грязи.
К поселку ведет асфальтированная дорога, что обеспечивает проезд в любое время года. На берегу реки Вельга запланировано обустройство собственного пляжа, где сможет отдыхать каждый житель коттеджей «Вельга Парк». Кроме того, запланировано обустройство на территории поселка детской и спортивной площадки, гостевой парковки. На сегодняшний день расчищена лесополоса, прилегающая к поселку.
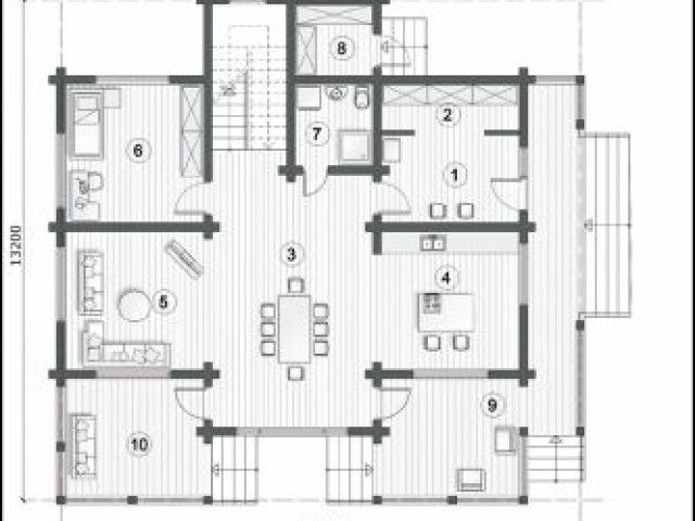
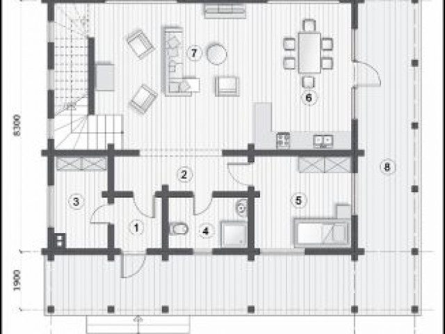
В строительстве коттеждей Вельга Парк используется только экологически чистые материалы, натуральное дерево. На участках возводятся коттеджи из оцилиндрованного бревна и клееного бруса.
Будущие жители могут остановить свой выбор на одном из предлагаемых архитектурных решений. Любая семья, от небольшой до самой многочисленной найдет вариант себе по душе.
К каждому участку подведено электричество до 7 кВт, дополнительные мощности можно приобрести. Газ магистральный, проведен к домам, его давление среднее. Кроме этого, запланировано проведение в каждый доме сети Интернет. Коттеджный поселок «Вельга Парк» находится под круглосуточной охраной.
- Инфраструктура: гостевая парковка, детская игровая площадка, зона отдыха, пляж, спортивная площадка
- Охрана: Видеонаблюдение, КПП, ЧОП
- Коммуникации: Интернет, Спутниковое ТВ
- Канализация: Септик
- Водоснабжение: Центральное
- Газ: Магистральный
- Электричество: Центральное



Поселок расположился на поляне в окружении векового леса. Прямо по поселку протекает река. В поселке можно купить просто участок, а можно участок с домом. Дома предлагаются нескольких проектов, но все деревянные, очень подходят к окружающей природе. Все коммуникации готовы. Доехать до поселка можно в любое время года.
Все необходимое для жизни и хозяйства вне поселка.
























