коттеджный поселок Тургеневские дачи
Коммунальные платежи: от 3000 р/мес
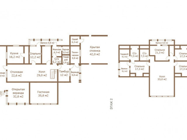
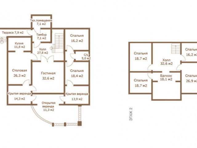
Дома от 60 до 459 м2. Участки от 20 до 50 соток.
Лес: Лес по границе участка
Водоём: Водоем рядом с участком
Населённые пункты: Голоперово — 20.79 км, Муханово — 4.94 км, Хребтово — 10.89 км
Шоссе: Ярославское, 80 км
Домов/участков: 98
Назначение земли: ИЖС
«Тургеневские Дачи» - полностью готовый коттеджный поселок, находится около 80 км от МКАД, в окружении леса первой категории. Богатая природа, прекрасная панорама, чистый воздух. Вокруг зеленые холмы, переносящие нас в пейзажи Новой Зеландии.
Все коммуникации готовы: центральный водопровод (подведен к каждому участку), электрические мощности 7-10 кВт на участок, магистральный газ, дороги шириной 8 метров, низкие тарифы по оплате потребления газа, воды и электричества.
Управляющая компания каждый день обеспечивает обслуживание домов, участков, уход за парками, садами и прудом, видеонаблюдение, интернет. Круглосуточно работает диспетчерская служба, дежурный сантехник, электрик. Охрана обеспечивает безопасность, создавая закрытую «клубную» обстановку.
На сегодняшний день готова детская площадка, спортивная площадка, часовня. В Административном здании разместился детский клуб. Планируется строительство теннисного корта, аптеки.
- Инфраструктура: аптека, гостевая парковка, детская игровая площадка, зона отдыха, магазин, спортивная площадка, теннисный корт, храм
- Охрана: КПП, ЧОП
- Коммуникации: Интернет
- Канализация: Ливневая канализация, Центральная
- Водоснабжение: Центральное
- Газ: Магистральный
- Электричество: Центральное


Мне показалась удобной рассрочка платежа при строительстве дома. И сдача дома со всеми коммуникациями.
Далековато, конечно, но зато и не так дорого.





















