коттеджный поселок Шишкин
Коммунальные платежи: от 3500 р/мес
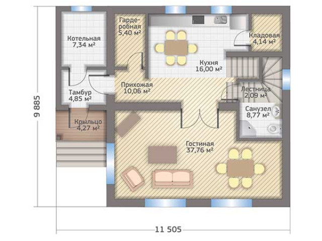
Дома от 193 м2. Участки от 10 до 33 сотки.
Лес: Лес по границе участка
Водоём: Водоем рядом с участком
Шоссе: Новорижское, Истринский район, 50 км
Домов/участков: 361
Назначение земли: ИЖС
Коттеджный поселок «Шишкин» строится в уютном и обжитом Истринском районе, в 50 км от Москвы. На Новорижское шоссе ведет асфальтированная дорога и время в пути лишь немного превысит полчаса.
Поселок расположился в окружении воды и зелени - с трех сторон к нему подступает заповедный лес, рядом протекает речка Молодильня, а дорога до огромного Тростенского озера займет не более 10 минут.
Территория составляет 31 гектар, как минимум четверть ее отведено на общественные зоны. Участки реализуются со строительным подрядом или уже готовым домом.
Можно подобрать коттедж из бруса, кирпича или комбинированный, классический или на двух хозяев. При этом, в поселке соблюдается единая архитектурная концепция. Коттеджи «Шишкин» подключаются ко всем центральным коммуникациям.
Благоустройство тщательно продумано, так что и взрослым, и детям обеспечен интересный и разнообразный досуг. В тоже время, нет перегруженности инфраструктурой — все необходимое можно найти в непосредственной близости к поселку.
- Инфраструктура: гостевая парковка, детская игровая площадка, кафе, минимаркет
- Тип дома: Брус, Кирпич
- Охрана: КПП
- Коммуникации: Интернет
- Канализация: Септик
- Водоснабжение: Колодец
- Газ: Баллон
- Электричество: Центральное



Очень красивый ландшафт, шикарная дорога (авиационные плиты, вечные). На 2 очереди по 15 кВт. Хороший застройщик (Проект квартал красивых домов), мне поселок очень нравится
Пока куплено процентов 80 участков, еще надо ждать пару лет
Цены очень разумные, учитывая район. Удобно, что участки с подрядом и про застройщика ничего плохого не слышно. Природа там отличная, хорошее место.
Пока не увидели














