коттеджный поселок Шато Лужки
| Местоположение | 4.4 |
| Архитектура и планировочные решения | 5 |
| Инфраструктура | 4.3 |
| Условия инвестирования | 4.7 |
| Риски и недостатки проекта | -0.5 |
Коммунальные платежи: от 5500 р/мес
Дома от 260 до 668 м2. Участки от 10 до 20 соток.
Лес: Лес по границе участка
Водоём: Водоем рядом с участком
Населённые пункты: Власово — 1.08 км, Аксеново — 4.35 км
Ближайшая ж/д станция: Хрипань, 3.20 км
Шоссе: Егорьевское, Раменский район, 24 км
Домов/участков: 50
Назначение земли: ИЖС
В 24 километрах к востоку от Москвы, в сосновых лесах Раменского района, расположился коттеджный поселок "Шато-Лужки". Дорога проходит по Егорьевскому шоссе и занимает около получаса.
Поселок клубный - 10 гектар территории и всего 50 участков. Реализуются они со строительным подрядом или уже готовым домом.
На выбор застройщиком предлагается восемь проектов кирпичных коттеджей, все они трехуровневые, с мансардой и цокольным этажом. Классический французкий стиль - богатый декор фасадов, оригинальная конфигурация крыш, теплые пастельные тона в наружной отделке, как нельзя лучше подходит к окружающим ландшафтам.
Сдаются коттеджи "Шато-Лужки" без внутренней отделки, с подключенными центральными коммуникациями. В поселке есть две артезианские скважины с чистейшей водой.
Что же касается внешней инфраструктуры, то она вполне достаточна для комфортного проживания. В соседних населенных пунктах работают школа и детский сад, поликлиника, всевозможные магазины. Ближайший город, Электроугли, находится в 10 минутах езды.
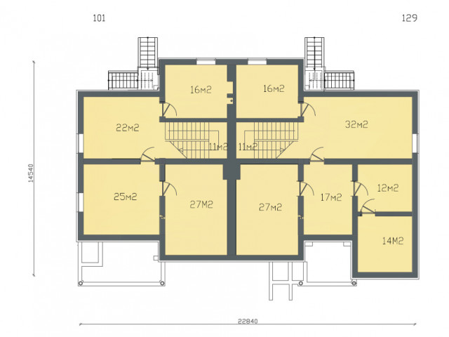
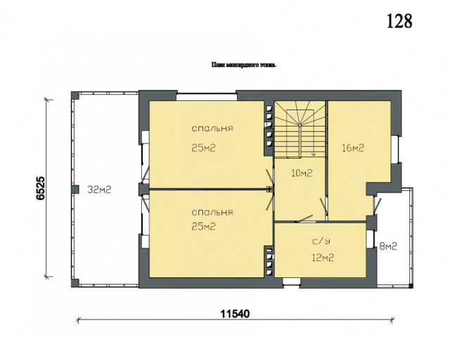
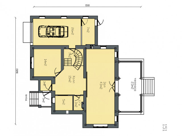
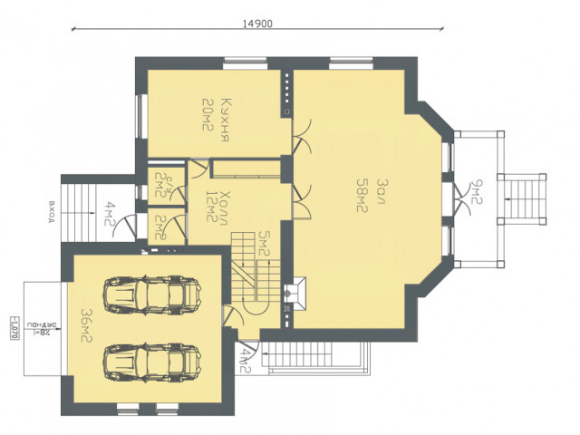
Каждый проект имеет свои особенности. Например, «Руан» — это дуплекс, (секции от 490 до 530 кв. м., в зависимости от наличия гаража). Его «изюминка» — второй свет. «Динар» — самый большой по размеру дом, его площадь 668 кв. м. «Экспромт» площадью 420 кв. м. обладает наиболее интересными формами и сложной конфигурацией крыши. Его гараж рассчитан на 2 автомобиля. «Шале» площадью 360 кв. м. интересен своей вытянутой формой. Поселок «Шато Лужки» радует своими визуальными характеристиками, природным окружением, и качеством домов. Но ему все-таки не хватает минимальной собственной инфраструктуры. Читать далее... |
- Инфраструктура: гостевая парковка, детская игровая площадка, детский сад, минимаркет, спортивная площадка
- Охрана: Видеонаблюдение, КПП, ЧОП
- Архитектурный стиль: Шале
- Коммуникации: Интернет, Спутниковое ТВ
- Канализация: Очистные сооружения
- Водоснабжение: Скважина
- Газ: Магистральный
- Электричество: Центральное




Абсолютно доволен покупкой. Те, кто будет говорить, что здесь дорого – не завидуйте, просто больше зарабатывайте. Расположение поселка очень выгодное. Москва относительно недалеко, социальную инфраструктуру найдете любую. Стиль жилья устраивает как внешне, так и внутри. Материалы качественные, все красиво и дорого. Коммуникации работают отлично и без перебоев. Участок большой. Все дороги асфальтированы, вечером работает освещение, охрана поселка на высшем уровне. По соседству прекрасный лес.
Лес, природа, дороги, участки от 6 до 30 соток на выбор и 11 вариантов домов с отделкой и без, от 100 до 600м2. Все коммуникации, включая магистральный газ, вода, электричество, канализация, дренаж и ливневка, капитальный забор, интернет оптика. Мне нравится.
Цена конечно высокая для данного района, хотя поселков такого уровня мало. Да и видно, что капитально все, стоит денег.
Мне понравился. Есть как большие участки по 20 соток так и маленькие по 6 соток. В основном большие дома, но есть и маленькие двухэтажные по 105 и 135 м2. Дома капитальные из кирпича, забор тоже. Газ магистральный, водопровод поселковый, электричество, канализация локальное очистное сооружение, дренаж и ливневка. Охрана. Вокруг лес. Детская площадка и широкие асфальтированные дороги. Мы были на выходных дороги все от снега чистят и подходы к дому не завалены.
Нет готовых домов, только один остался в 135м2. Остальное под заказ. Кризис. Хотя может и лучше строить когда видишь из чего и как. Пока думаем.
Архитектурно красивый поселок, для ценителей. В окружении лес, природа. Все коммуникации. Чтобы оценить, нужно приехать в поселок самой и посмотреть. Цены высоки и оправданы.
Понравился вариант дома "Эжен" - он и вполне просторный 260 кв.м, и в то же время, компактный. Вообще, красивые дома в поселке, и место красивое. Привлекает и то, что поселок будет небольшой.
Явных пока не вижу






























