коттеджный поселок Сергейково
Коммунальные платежи: от 3500 р/мес
Дома от 130 до 300 м2. Участки от 7 до 19 соток.
Лес: Лес по границе участка
Водоём: Водоем рядом с участком
Населённые пункты: Сергейково — 0.58 км, Трощейково — 0.61 км, Лавровки — 0.72 км
Шоссе: Дмитровское, Ярославское, Дмитровский район, 55 км
Домов/участков: 127
Назначение земли: Дачное строительство
Коттеджный поселок «Сергейково» удален от столицы всего на 55 километров и при этом расположен в условиях уникальной природы. Он окружен лесами и прилегает к берегу реки Яхрома.
Дорога до поселка может лежать через город Дмитров, по Дмитровскому шоссе, по Ярославскому шоссе или же по железной дороге от Савеловского вокзала.
Общая площадь территории поселка составляет 26,7 гектар, она поделена на 127 участков, размером от 7 до 19 соток. Все они оформлены отдельным свидетельством о регистрации права собственности.
Участок можно приобрести с подрядом и без него, что позволяет будущим жильцам выбирать проект своего дома.
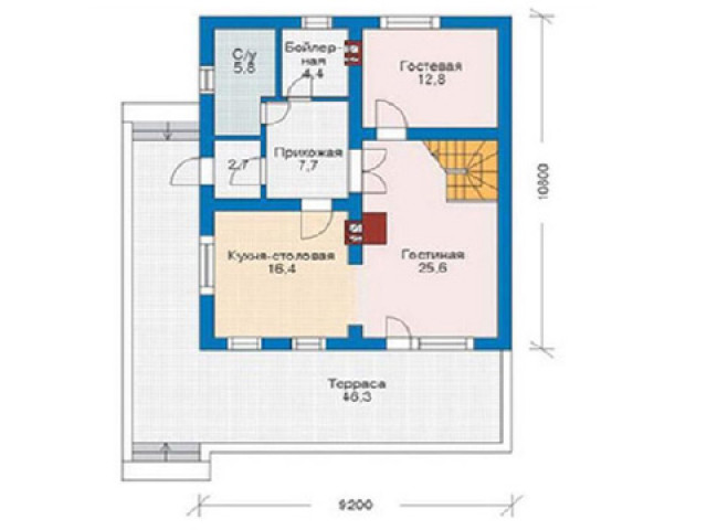
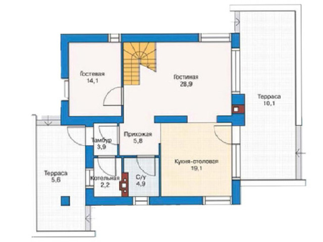
Тем, кто выбирает участок с подрядом, на выбор предлагается 9 проектов коттеджей размером от 130 до 300 кв.м. Строятся они из газобенных блоков или профильного бруса — современных долговечных и экологичных материалов, к тому же прекрасно держащих тепло.
Во всех домах по два этажа, балконы и террасы для отдыха. При желании, можно внести изменения в проект; также на выбор предоставляется множество вариантов внутренней отделки.
Инфраструктура
К коттеджам проведены все необходимые коммуникации - электроснабжение, магистральный газопровод, центральное водоснабжение и канализация.
На территории поселка проложены дороги, что обеспечит удобный подъезд ко всем участкам. Кроме того, хорошее освещение улиц позволит жителям чувствовать себя спокойней. За безопасностью будет постоянно следить пост охраны. Периметр огорожен забором, на въезде установлен контрольно-пропускной пункт. Для гостей на автотранспорте предусмотрена стоянка. А исправность работы всех сетей будет обеспечиваться службой эксплуатации.
Поселок со всех сторон окружен лесом, граничит с берегом Яхромы, а на самой его территории расположился каскад из трех прудов. Берега водоемов будут благоустроены для отдыха и купания. Планируется строительство ресторанов с террасами для ловли рыбы, комплекса бань, спортивных и игровых площадок.
- Инфраструктура: гостевая парковка, детская игровая площадка, зона отдыха, магазин, пляж, ресторан, спортивная площадка
- Охрана: Видеонаблюдение, КПП, ЧОП
- Коммуникации: Интернет
- Канализация: Центральная
- Водоснабжение: Центральное
- Газ: Магистральный
- Электричество: Центральное
Дата съемки: 03.07.2014



Поселок на берегу реки, вокруг лес, чистейший воздух и тишина - ну что еще нужно? Но поселок почти не продается, полно свободных участков, которые зарастают бурьяном, территория поселка не убирается, плохие дороги. Все - только в планах и обещаниях, которые не выполняются.
См. выше.






















