коттеджный поселок Резиденс клаб
Коммунальные платежи: от 25000 р/мес
Дома от 350 до 900 м2. Участки от 20 до 70 соток.
Лес: Лес по границе участка
Водоём: Водоем рядом с участком
Населённые пункты: Юрлово — 0.56 км, Аристово — 1.71 км, Федоровка — 1.97 км
Шоссе: Новосходненское, Солнечногорский район, 8 км
Домов/участков: 43
Назначение земли: ИЖС
Коттеджный поселок «Резиденс Клаб» расположился в самом ближайшем Подмосковье — в 7,5 километрах к северо-западу от столицы. Пятницкое шоссе, на котором практически не бывает заторов, обеспечит удобные выезд на Новорижское, Ленинградское, Волоколамское шоссе — можно быстро попасть в любую точку столицы.
В непосредственной близости район Митино — обширная современная инфраструктура и возможность пользоваться общественным транспортом, в том числе, метро.
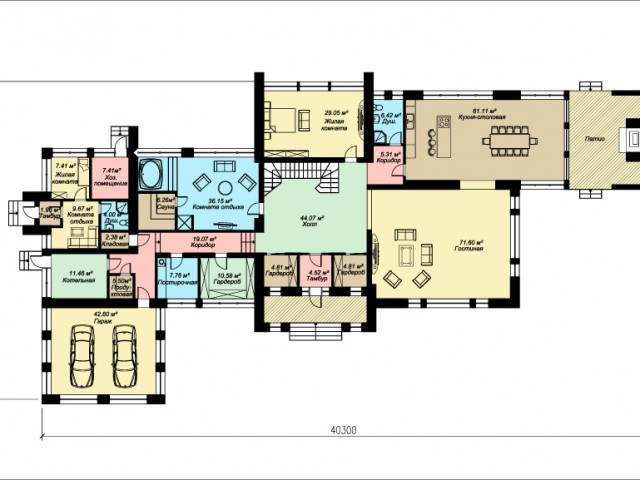
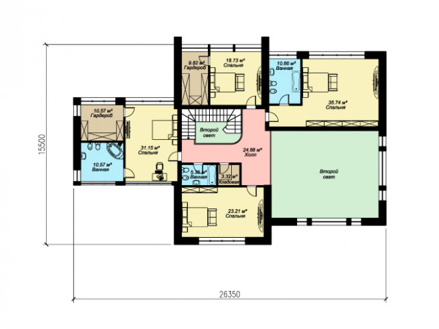
Новый поселок небольшой- территория чуть более 10 гектар разделена на 43 землевладения. Участки «Резиденс» от 20 до 70 соток, можно построить не просто хороший дом, а обустроить настоящую современную усадьбу. Просторные 2-3 уровневые коттеджи строятся по оригинальным проектам, площадь их составляет от 350 до 900 кв. метров.
Закрытая охраняемая территория благоустраивается, круглосуточно работает профессиональная охрана. «Изюминкой» нового поселка станет собственный бассейн и SPA-салон.
Расположение в экологически благополучном районе, на границе с огромным лесным массивом, в окружении чистых рек и озер, дает прекрасные возможности для активного отдыха.
Поблизости, в лесу, обустраиваются велосипедные и пешеходные дорожки, прокладываются трассы для снегоходов и квадроциклов и устанавливаются спортивные площадки.
- Инфраструктура: spa, бассейн, гостевая парковка, детская игровая площадка, зона отдыха, спортивная площадка, теннисный корт
- Охрана: Видеонаблюдение, КПП, Сигнализация
- Коммуникации: Интернет
- Канализация: Центральная
- Водоснабжение: Центральное
- Газ: Магистральный
- Электричество: Центральное



Близко к Москве, построено со вкусом и очень качественно. Архитектура очень современная, на короткое время можно даже забыть, что ты в России. Доступ в поселок ограничен, охрана добросовестная и справляется со своими обязанностями на отлично. Природа радует. Прогулки по лесу в любое время года приносят море удовольствие. Также в непосредственной близости несколько водоемов. Территория поселка освещается, все в зелени газонов, игровая площадка для детей есть.
Цены даже с учетом выгодного расположения, несколько высоковаты.
Отличное место, закрытый уютный поселок. Дом можно купить без отделки, можно полностью готовый.
Цены высоки





















