коттеджный поселок Озернинские просторы
Коммунальные платежи: от 2000 р/мес
Участки от 6 до 15 соток.
Лес: Лес по границе участка
Водоём: Озернинское водохранилище, Водоем рядом с участком
Населённые пункты: Волынщино — 0.81 км, Леньково — 2.04 км, Хотебцово — 2.68 км
Шоссе: Новорижское, 90 км
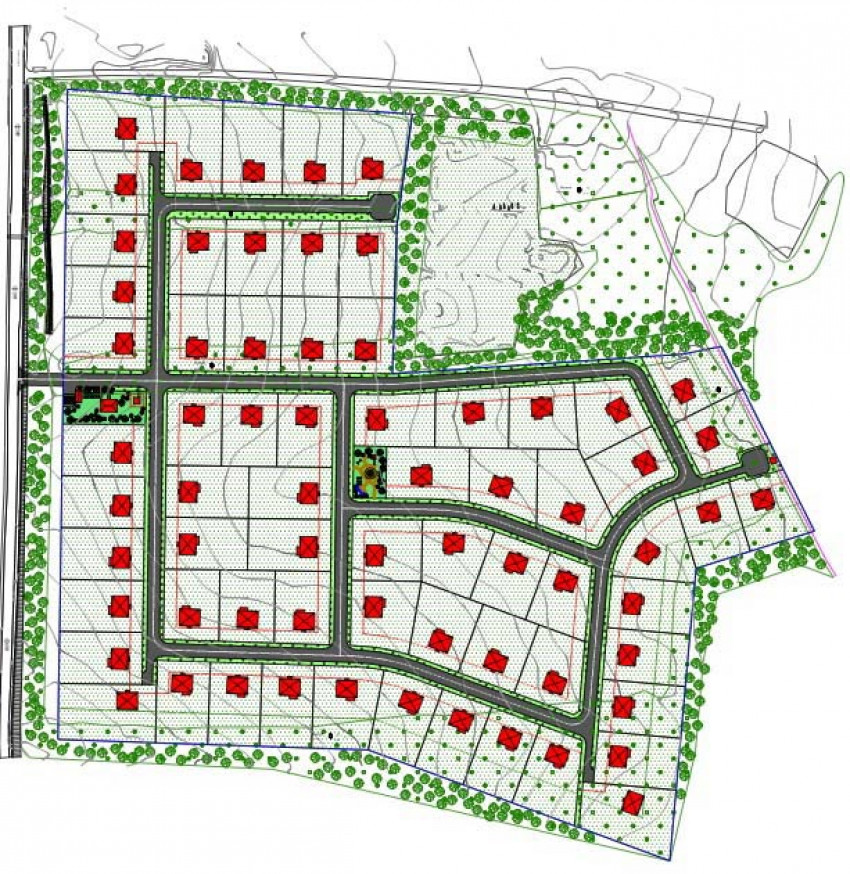
Домов/участков: 67
Назначение земли: ИЖС
Коттеджный поселок «Озернинские просторы» располагается практически на берегу Озернинского водохранилища в окружении лесного массива.
Наличие асфальтированного подъезда к поселку и дорог непосредственно в нем- прекрасное дополнение к уже имеющимся транспортным магистралям.
До поселка всего девяносто километров, если рассчитывать протяженность пути от Московской Кольцевой автодороги.
Ориентиром для покупателей может быть деревня Волынщино, рядом с которой и находится коттеджный поселок «Озернинские просторы». Добраться до места назначения также можно на общественном транспорте.
Участки в «Озернинских просторах»
Важным преимуществом для тех, кто стремится к приобретению земли в том, что участки «Озернинские просторы» находятся на популярном для столичных жителей направлении.
В коттеджный поселок можно добраться по двум скоростным трассам. Это Минское и Новорижское шоссе.
Близко водохранилище, необходимо пройти всего семьдесят метров. Рядом лес, граничащий с участками. Для любителей быть поближе к природе на продажу выставляются участки, имеющие прямой выход к лесному массиву.
Строители предлагают квалифицированные услуги по прокладке необходимых коммуникаций непосредственно к домам.
Площадь участков в коттеджном поселке «Озернинские просторы» составляет от девяти до двенадцати соток.
Коттеджный поселок «Озернинские просторы» для жизни и отдыха
Наличие леса и водохранилища сделает проживание в поселке «Озернинские просторы» комфортным, а отдых- незабываемым.
Одним из прекрасных способов отдохнуть в непосредственной близости от дома – провести время во дворце водных видов спорта «Руза». Любителям водных мотоциклов не придется долго искать место для развлечений.
Для любителей байдарки – есть возможность не только заниматься, но и общаться с представителями сборной России по гребле на байдарках и каноэ.
- Инфраструктура: гостевая парковка, детская игровая площадка, зона отдыха, спортивная площадка
- Охрана: КПП
- Коммуникации: Интернет
- Канализация: Септик
- Водоснабжение: Скважина
- Газ: Магистральный
- Электричество: Центральное

Если покупать здесь участок, то только для отдыха. Какая может быть работа, если поселок на берегу водохранилища с рыбалкой и водными видами спорта, и в окружении леса с его красотами, ягодами и грибами. Добраться до поселка можно по двум скоростным шоссе - Минскому и Новорижскому.
Поселка как такового нет, какие могут быть недостатки.






