коттеджный поселок Orange Club (Оранж Клаб)
Коммунальные платежи: от 5000 р/мес
Дома от 126 до 260 м2. Участки от 5 до 15 соток.
Лес: Лесной участок
Водоём: Водоем рядом с участком
Шоссе: Волоколамское, Новорижское, Истринский район, 52 км
Домов/участков: 152
Назначение земли: ИЖС
В тихом, стародачном месте Истринского района строится коттеджный поселок «Orange Club».
До столицы 52 километра, дорога одинаково удобна по Новорижскому и Волоколамскому шоссе и время в пути составит чуть более получаса. Также удобно добираться электропоездом — ж/д станция расположена совсем недалеко.
Поселок расположился в лесу неподалеку от берега чистой речки Молодильни, а чуть дальше раскинулись знаменитые своей роскошной рыбалкой Раковские пруды.
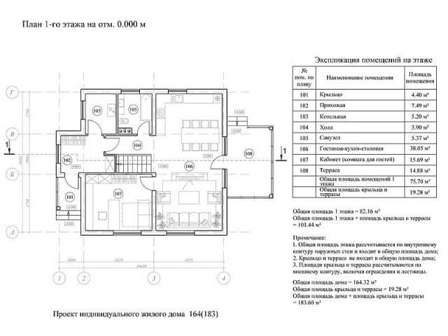
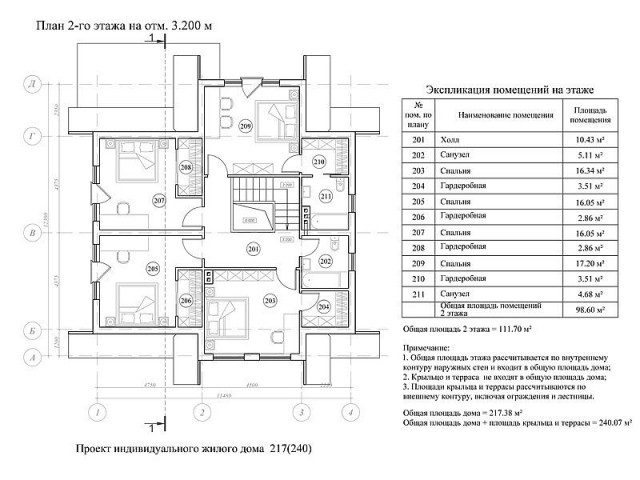
Территория разделена на 152 участка размером от 5 до 15 соток. Предлагаются они со строительным подрядом или уже готовыми домами площадью от 126 до 260 кв. метров. Помимо классических коттеджей, здесь можно приобрести дуплексы — сблокированные дома на двух хозяев.
Свободная планировка позволяет обустроить жилое пространство по своему усмотрению. Коттеджи «Оранж Клаб» подключаются ко всем центральным коммуникациям. Строительство ведется очень бережно, так что на большинстве участков сохранены большие лесные деревья.
Территория поселка огорожена, въезд возможен только через КПП. Планами благоустройства предусмотрены спортивные и детские площадки, теннисный корт и прогулочные зоны.
В большем необходимости не возникнет — рядом есть несколько населенных пунктов и уже заселенных коттеджных поселков со сложившейся и разнообразной инфраструктурой, а до районного центра Истры можно доехать за 15 минут.
- Инфраструктура: волейбольная площадка, детская игровая площадка, зона отдыха, теннисный корт, футбольное поле
- Охрана: КПП, ЧОП
- Коммуникации: Интернет, Спутниковое ТВ
- Канализация: Центральная
- Водоснабжение: Центральное
- Газ: Магистральный
- Электричество: Центральное



Уютные домики для всей семьи находятся в “Оранж клубе”. Они относятся к эконом классу, хотя я к самим постройкам претензий не имела. Да и земля предлагается. Возле дуплекса целых пять земли для любых своих нужд. Можно разбить палисадник, огородник, цветник или оставить ухоженный газон. Меня особо восхищает непосредственная близость с лесом. Этот чистый воздух готов кружить голову постоянно. Даже для рыбаков занятие найдется если они немного пройдутся. Весь поселок охраняется, охранные компании внимательно следят за перемещением посторонних лиц.
До МКАД 52 км, но можно добраться хоть на авто, хоть на маршрутке, да и поезд ходит.























