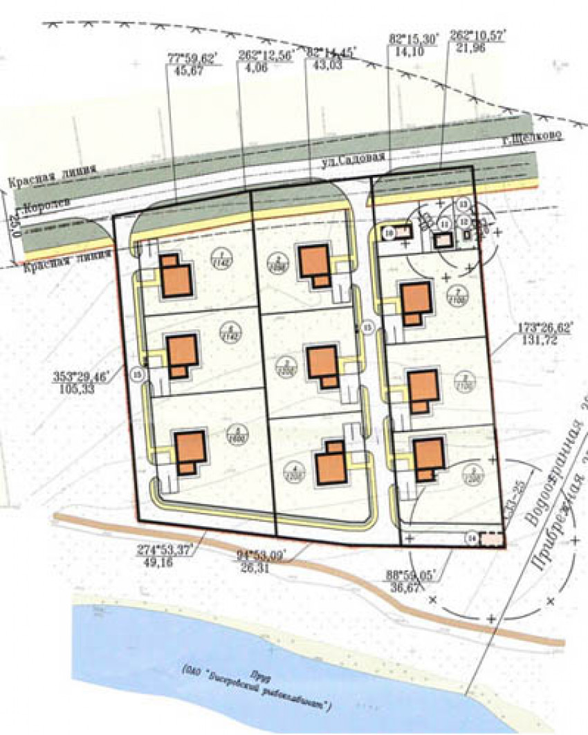
коттеджный поселок Образцово
Коммунальные платежи: от 1300 р/мес
Дома от 200 до 450 м2. Участки от 6 до 20 соток.
Лес: Лес по границе участка
Водоём: Водоем рядом с участком
Населённые пункты: Байбаки — 2.10 км, Загорянский — 2.00 км, Зеленый — 3.56 км
Ближайшая ж/д станция: Ивантеевка, 2.68 км
Шоссе: Ярославское, Щелковский район, 13 км
Домов/участков: 18
Назначение земли: ИЖС
Продаются земельные участки в новом коттеджном поселке «Образцово». Поселок располагается в 13 км от Москвы по Ярославскому шоссе, возле одноименной деревни на берегу озера.
В стоимость входит прокладка внутрипоселковых дорог до каждого участка, общее ограждение поселка, охрана поселка, КПП, создание внутрипоселковой инфраструктуры (футбольное поле, теннисный корт, зона барбекю, фонтаны, прогулочные аллеи, озеленение поселка), оформление документов. Участки в поселке «Образцово» от 6 до 23 соток без подряда.
Подъезд круглогодичный, осуществляется по хорошей асфальтированной дороге. В 2,5 км находится ж/д станция «Ивантеевка».
Земля под дачное строительство с правом возведения жилого дома с правом проживания и регистрации в нем. Подключаются все необходимые коммуникации.
Продажи в поселке в данный момент не ведутся. В случае появления предложений на вторичном рынке, они будут доступны в разделе «Объявления».
- Инфраструктура: гостевая парковка, детская игровая площадка, зона отдыха, спортивная площадка
- Охрана: КПП
- Коммуникации: Интернет
- Газ: Магистральный
- Электричество: Центральное











