коттеджный поселок Никитское Парк
Дома от 230 м2. Участки от 6 до 8 соток.
Лес: Лес по границе участка
Водоём: Первая линия у воды
Шоссе: Каширское, Симферопольское, Трасса М4 Дон, Домодедовский район, 20 км
Домов/участков: 68
Назначение земли: ИЖС
Коттеджный поселок «Никитское Парк» - новое предложение качественно загородной недвижимости в ближайшем Подмосковье.
Строится он в городском округе Домодедово в 20 километрах от МКАД — проезд удобен по Каширскому и Симферопольскому шоссе, а также скоростной трассе М4 «Дон». От метро курсируют автобусы и маршрутные такси, так что в любом случае дорога займет совсем немного времени.
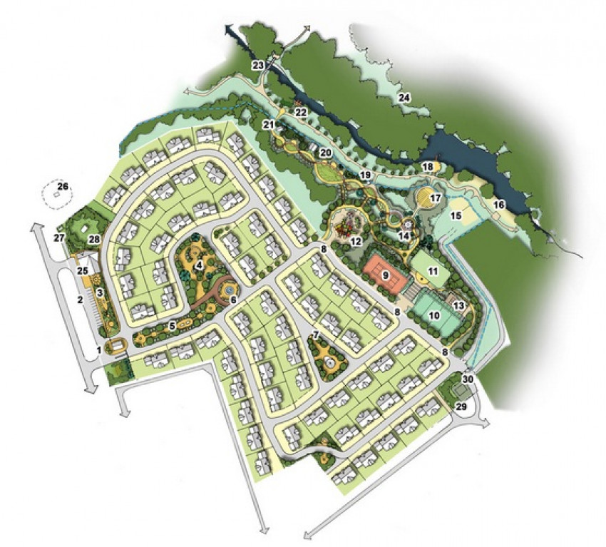
Выбранное для нового поселка место отличается как доступностью инфраструктуры — располагается оно в границах населенного пункта Никитское, а до центра города всего три километра, так и прекрасным природным окружением. По границе протекает чистая речка Рожайка, а за ней начинаются лесные массивы.
Поселок небольшой — на территории в 8.5 гектара запланировано 68 домовладений. Коттеджи «Никитское Парк» выдержаны в стиле современного европейского пригорода, при возведении их использованы качественные и экологичные материалы, обеспечивающие долговечность и повышенную энергоэффективность. Сдаются дома подготовленными к чистовой отделке, все коммуникации — центральные.
Благоустройство поселка продумано до мелочей, полностью оправдывает выбранное название и направлено на обеспечение разнообразного и активного досуга жителей. Более трех гектар отведено на парковую зону, скверы и центральную площадь с фонтанами. Помимо этого, к услугам новоселов будет и свой пляж с лодочным причалом, и теннисный корт, и велосипедные трассы, несколько спортивных площадок, игровой городок для детей... А также административное здание с магазином и офисами сервисных служб, летний театр, кафе и многое другое.
- Инфраструктура: баня, баскетбольная площадка, беговая дорожка, волейбольная площадка, гостевая парковка, детская игровая площадка, зона отдыха, кафе, магазин, пляж, спортивная площадка, теннисный корт, футбольное поле
- Охрана: Видеонаблюдение, КПП
- Коммуникации: Интернет, Спутниковое ТВ
- Канализация: Ливневая канализация, Центральная
- Водоснабжение: Центральное
- Газ: Магистральный
- Электричество: Центральное

Красивый, хорошая планировка, дом очень понравился
Задран ценник, все поле напротив будет застроено складским комплексом, часть его видна вдалеке пнк Домодедово 1, те склады будут стоять прямо до Никитского и заезд тоже будет тут
Качество строительства, внимание к мелочам, ландшафтный дизайн на территории.
их нет
На территории посёлка водятся неадекваты
















