коттеджный поселок Лесной остров
Коммунальные платежи: от 1500 р/мес
Участки от 7 до 30 соток.
Лес: Лес по границе участка
Водоём: Водоем рядом с участком
Населённые пункты: Ананьино — 0.29 км, Чирково — 0.95 км, Чирково — 1.28 км
Шоссе: Каширское, Ступинский район, 59 км
Домов/участков: 119
Назначение земли: ИЖС
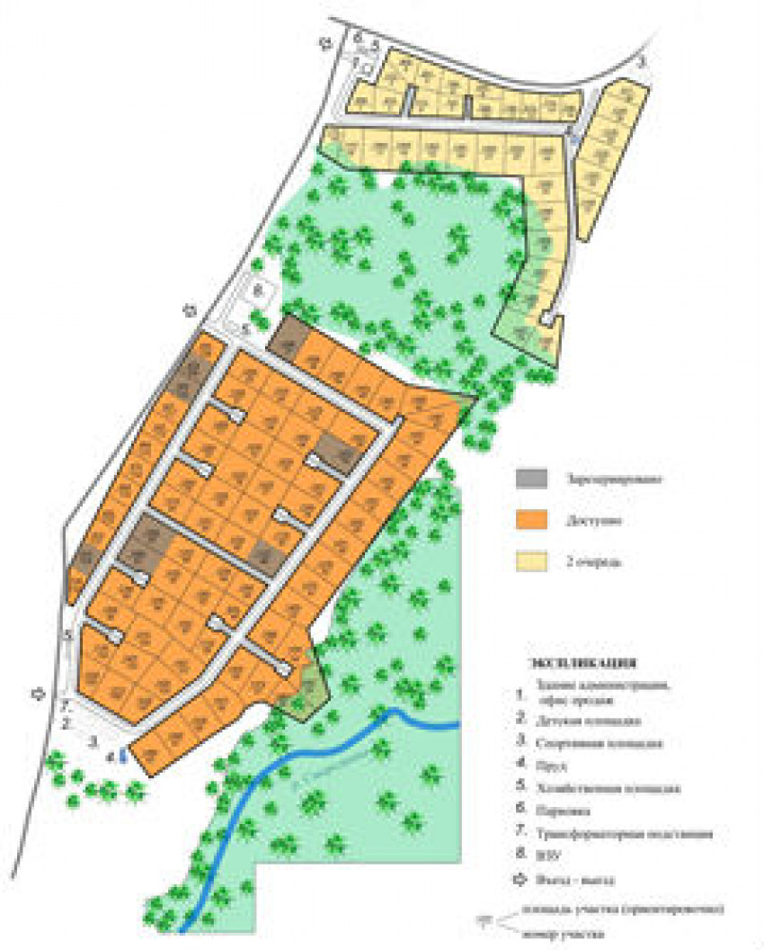
Коттеджный поселок «Лесной остров» - новое предложение на юге Подмосковья, в Ступинском районе. Хорошую транспортную доступность ему обеспечивают сразу две магистрали — Симферопольское и Каширское шоссе, так что 59 километров до столицы можно преодолеть менее, чем за час.
Место для строительства выбрано на опушке хвойного леса, а неподалеку имеется большой чистый пруд — раздолье для рыбаков и любителей пляжного отдыха.
Поселок состоит из двух участков:
Первая очередь занимает 14,47 гектара, в ней 88 землевладений;
Вторая очередь занимает 6,36 гектара территории и разделена на 31 землевладение.
Размер участков «Лесной остров» варьируется от 7до 30 соток, к ним подводится электричество, газ проходит по границе. Водоснабжение: индивидуальное. Обязательный подряд не предусмотрен.
Коттеджный поселок огорожен, работает охрана, оборудованы два въезда с КПП. Благоустройство включает детскую площадку и гостевой паркинг. Работает управляющая компания, в ведении которой поддержание работы коммуникаций и обеспечение порядка.
Всю необходимую инфраструктуру жители смогут найти в соседних селах и городе Чехове, расположенном в 15-20 минутах езды.
- Инфраструктура: гостевая парковка, детская игровая площадка, зона отдыха, спортивная площадка
- Охрана: КПП, ЧОП, Шлагбаум
- Коммуникации: Интернет
- Водоснабжение: Скважина
- Электричество: Центральное













