оставить отзыв
коттеджный поселок Лесная усадьба
Готовность: Построен. Продажи на вторичном рынке.
Коммунальные платежи: от 500 р/сотку
Дома от 210 до 270 м2. Участки от 12 до 52 сотки.
Лес: Лес по границе участка
Водоём: Водоем рядом с участком
Населённые пункты: Зараменье — 1.18 км, Спас-Каменка — 2.76 км
Ближайшая ж/д станция: 116 км, 2.96 км
Шоссе: Дмитровское, Дмитровский район, 28 км
Домов/участков: 45
Назначение земли: ИЖС
Коммунальные платежи: от 500 р/сотку
Дома от 210 до 270 м2. Участки от 12 до 52 сотки.
Лес: Лес по границе участка
Водоём: Водоем рядом с участком
Населённые пункты: Зараменье — 1.18 км, Спас-Каменка — 2.76 км
Ближайшая ж/д станция: 116 км, 2.96 км
Шоссе: Дмитровское, Дмитровский район, 28 км
Домов/участков: 45
Назначение земли: ИЖС
Описание
Коттеджный поселок «Лесная усадьба» расположен в зоне Клинско-Дмитровской гряды - это один из наиболее чистых экологических районов Подмосковья. Рядом находятся крупные спортивные курорты Подмосковья - горнолыжный комплекс"Сорочаны", парк активного отдыха "Экстрим", клубы Яхрома, Волен, охотничий клуб "Лисья нора» . Близость большого количества водохранилищ делает привлекательным этот поселок для любителей отдыха на воде.
Коммуникации
- Охрана: Видеонаблюдение, КПП, ЧОП
- Коммуникации: Интернет, Спутниковое ТВ
- Канализация: Центральная
- Водоснабжение: Скважина
- Газ: Магистральный
- Электричество: Центральное
Схема проезда в Лесная усадьба
Панорама 360°
Дата съемки: 24.06.2014
Генплан поселка Лесная усадьба

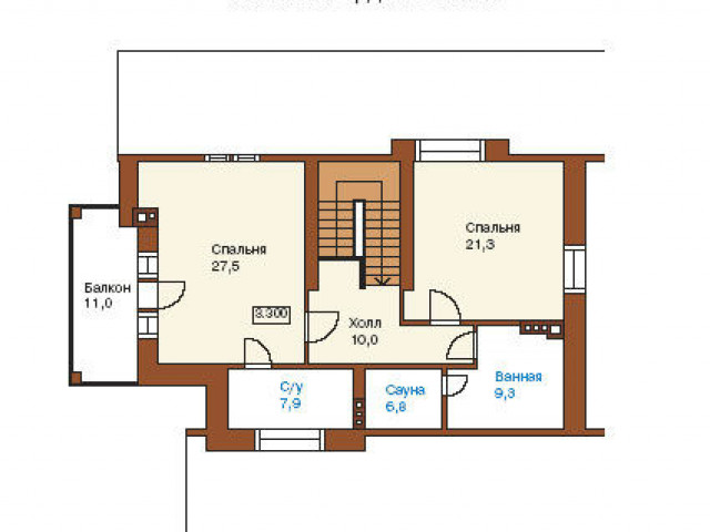
Проекты и планировки домов
Проект Воздух в лесу
Планировки
1 этаж

2 этаж

Отзывы о поселке Лесная усадьба
Поселки рядом


















