коттеджный поселок Лесная симфония
Коммунальные платежи: от 12000 р/мес
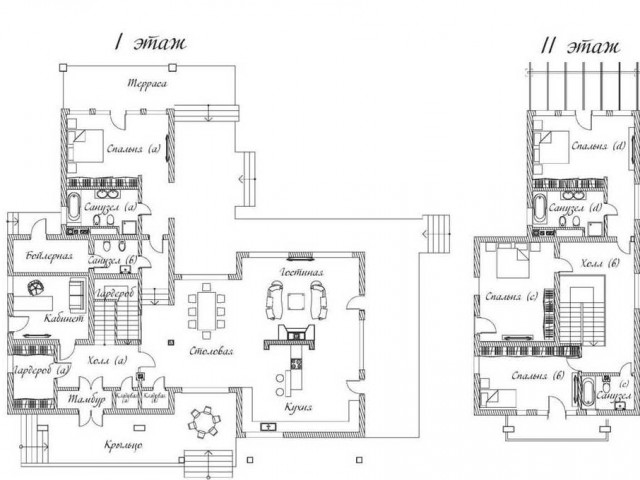
Дома от 250 до 559 м2. Участки от 14 до 32 сотки.
Лес: Лес по границе участка
Водоём: Водоем рядом с участком
Населённые пункты: Макарово — 1.82 км, Прокшино — 1.76 км, Зименки — 2.16 км
Шоссе: Калужское, Ленинский район, 7 км
Домов/участков: 156
Назначение земли: ИЖС
Коттеджный поселок "Лесная симфония" - поселок бизнес-класса для постоянного проживания, располагается на Калужском шоссе в 7 км от Москвы.
Инфраструктура поселка «Лесная симфония»
- Детский сад и частная школа под патронажем одного из ведущих ВУЗов страны
- физкультурно-оздоровительный комплекс, поле для гольфа и велотрек,
- торгово-развлекательный комплекс.
- А также круглосуточная диспетчерская, служба эксплуатации и room-service.
Внешняя инфраструктура
В поселке «Московский» находится самая большая в Московской области школа, построенная по современному проекту
В 10 минутах езды от «Лесной симфонии» в поселке «Коммунарка» располагается крупный спортивный комплекс «Прометей» с ледовой ареной, теннисными кортами и фитнес-центром, а в соседних поселках «Московский» и «Газопровод» находятся большие плавательные бассейны.
Ближе к Москве, в районе пересечения МКАД и Калужского шоссе, открыты сразу четыре крупных торговых центра — гипермаркет «Ашан», IKEA, торгово-развлекательный центр МЕГА и магазин для дома и сада OBI.
Безопасность - круглосуточная охрана.
- Инфраструктура: spa, гольф-поле, гостевая парковка, детская игровая площадка, детский сад, зона отдыха, магазин, спортивная площадка, школа
- Тип дома: Кирпич
- Охрана: Видеонаблюдение, КПП, ЧОП
- Облицовка наружных стен: Кирпич
- Архитектурный стиль: Арт-деко
- Коммуникации: Интернет, Кабельное ТВ, Спутниковое ТВ
- Канализация: Центральная
- Водоснабжение: Центральное
- Газ: Магистральный
- Электричество: Центральное


Поселок располагается на равнине, рядом с ним будет парк. Дома оборудованы котельной и гаражами, возможна установка системы умный дом. Понравилось то что поселок уже подключен ко всем системам коммуникаций. На въезде КПП с охраной, территория патрулируется охраной. Улицы поселка освещены. Рядом нет промпредприятий и свалок. В поселке обещают собственную инфраструктуру, но вот когда это будет.
Если без машины до детских садов и школы далеко, 7 км.
Моя мечта сбылась, купила дом загородом. Недалеко от МКАДа, всего в 5 км. Поселок окружен лесопарковой зоной, рядом каскад прудов и чистый воздух. Дом, как настоящие дворянские усадьбы. Инфраструктура поселка замечательная и фитнес-клуб, поле для гольфа, велотрек, SPA-салон, маленькие ресторанчики, торгово-развлекательный центр. Есть и частная английская школа, и детсады и разного рода секции. Для выгула домашних животных специально отведенные места. Поблизости к поселку нет промышленных предприятий.
Минусов нет, тут все прекрасно.

























