коттеджный поселок Лесная бухта
Коммунальные платежи: от 7000 р/мес
Дома от 180 до 350 м2. Участки от 8 до 24 сотки.
Лес: Лес по границе участка
Водоём: Истринское водохранилище, Водоем рядом с участком
Населённые пункты: Лечищево — 0.37 км, Алехново — 2.47 км
Шоссе: Волоколамское, Новорижское, Пятницкое, Истринский район, 55 км
Домов/участков: 57
Назначение земли: ИЖС
На берегу Истринского водохранилища расположился коттеджный поселок «Лесная бухта». Он небольшой, практически, клубный, расчитан всего на 57 домовладений и занимает площадь около 10 гектар.
Доехать к поселку можно по Новорижскому или Волоколамскому шоссе (55 километров от МКАД) или же по Пятницкому, но в этом случае путь будет несколько длиннее- 65 километров.
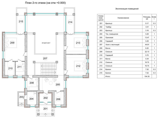
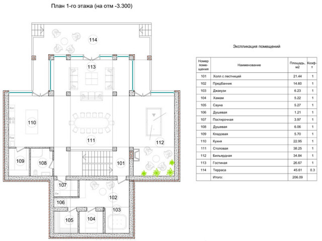
Участки в поселке занимают площадь от 8 до 24 соток и предлагаются будущим владельцам с подрядом на строительство дома. Коттеджи «Лесная бухта» строятся по 8 типовым проектам из кирпича, размер их варьируется от 180 до 350 кв. метров.
Дома подключаются ко всем необходимым центральным коммуникациям. Территория огорожена и круглосуточно охраняется силами частного охранного предприятия.
Новый коттеджный поселок располагает собственной инфраструктурой- построено административное здание с минимаркетом, отделением банка и кафе, оборудована гостевая парковка.
На берегу Истринского водохранилища расположена парковая зона с площадками для барбекю, беседками и оборудованным пляжем.
Кроме того, поблизости расположен загородный отель «АвантельКлаб Истра», где имеются бассейн и SPA-салон. Они также доступны жителям нового коттеджного поселка.
- Инфраструктура: вертолетная площадка, гостевая парковка, детская игровая площадка, зона отдыха, магазин, ресторан, спортивная площадка, яхт-клуб
- Тип дома: Кирпич
- Охрана: Видеонаблюдение, КПП, ЧОП
- Коммуникации: Интернет, Кабельное ТВ
- Канализация: Центральная
- Водоснабжение: Центральное
- Газ: Магистральный
- Электричество: Центральное
Дата съемки: 14.08.2014



Поселок для тех, кто любит природу и воду - кругом лес и берег водохранилища. Поселок охраняется, дома подключены ко всем коммуникациям. Очень удобно, что соседи по поселку близки по уровню благосостояния и, наверное, по развитию.
Думаю, что недостатки в таком поселке очень быстро устранятся.






















