коттеджный поселок Кудрино (Кудринские узоры)
Участки от 8 до 20 соток.
Лес: Лес по границе участка
Водоём: Водоем рядом с участком
Населённые пункты: Кудрино — 0.39 км, Механизаторов — 2.75 км, Жучки — 3.39 км
Ближайшая ж/д станция: Жёлтиково, 3.16 км
Шоссе: Ярославское, Сергиево-Посадский район, 54 км
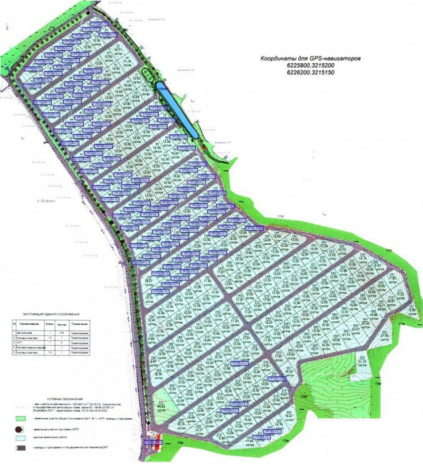
Домов/участков: 319
Назначение земли: Дачное строительство
Коттеджный поселок «Кудрино» расположен в Сергиево-Посадском районе Московской области на расстоянии 54 километров от МКАД, неподалеку от городов Хотьково и Сергиев-Посад. Добраться до него можно по Ярославскому шоссе.
Участки «Кудринские узоры»
Общая площадь поселка равна 52,9 гектарам, он включает в себя 319 земельных участков. Предлагаются они будущим владельцам без обязательного подряда на строительство.
Площадь самого скромного участка составляет 8 соток. При желании можно приобрести несколько смежных участков, чтобы превратить свое землевладение в просторную усадьбу.
Участки «Кудрино» предназначены для дачного строительства. Построив здесь жилой дом, вы получите право на регистрацию в нем.
На каждый участок приходится по 11 кВт электричества. Все землевладения подключены к основным коммуникациям, включая автономную канализацию, автономное водоснабжение из индивидуальных скважин и газ.
Коттеджи «Кудринские узоры» можно использовать для сезонного или круглогодичного проживания. В любое время года здесь можно наслаждаться спокойным отдыхом.
Инфраструктура коттеджного поселка «Кудрино»
Территория коттеджного поселка огорожена и находится под круглосуточной охраной. В нем обустроены внутрипоселковые дороги с большими тротуарами. Также здесь предусмотрены площадки для отдыха и занятий спортом. В поселке имеются два торговых комплекса, где местные жители могут приобретать продукты и вещи первой необходимости. Другие крупные магазины расположены в нескольких километрах от в Сергиевом Посаде и Хотьково.
Рядом с коттеджным поселком «Кудрино» расположен густой лес, где местные жители могут совершать пешие, велосипедные, конные прогулки и устраивать пикники. Неподалеку находится чистый пруд, на берегу которого можно отдыхать всей семьей.
- Инфраструктура: гостевая парковка, детская игровая площадка, зона отдыха, магазин, спортивная площадка
- Охрана: КПП, ЧОП
- Коммуникации: Интернет, Спутниковое ТВ
- Канализация: Септик
- Водоснабжение: Скважина
- Газ: Магистральный
- Электричество: Центральное











