коттеджный поселок Истранавтика
Коммунальные платежи: до 10000 р/мес
Дома от 149 до 286 м2. Участки от 20 до 75 соток.
Лес: Лес по границе участка
Водоём: река Истра, Первая линия у воды
Шоссе: Пятницкое, Солнечногорский район, 44 км
Домов/участков: 19
Назначение земли: ИЖС
В одном из красивейших мест запада Подмосковья, в излучине реки Истры, строится коттеджный поселок «Истранавтика». До МКАД всего 44 километра, дорога удобнее всего по Пятницкому шоссе — оно проходит неподалеку, асфальтированный выезд обеспечивает круглогодичную доступность, но от шума магистрали надежно закрывает зеленый массив.
Поселок камерный — всего 19 землевладений, которые можно приобрести со строительным подрядом. Участки просторные, максимальный размер их доходит до 75 соток, что обеспечивает дополнительную приватность проживания.
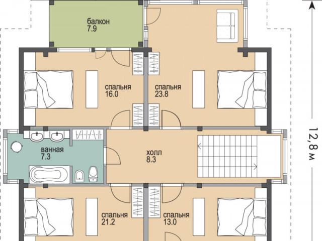
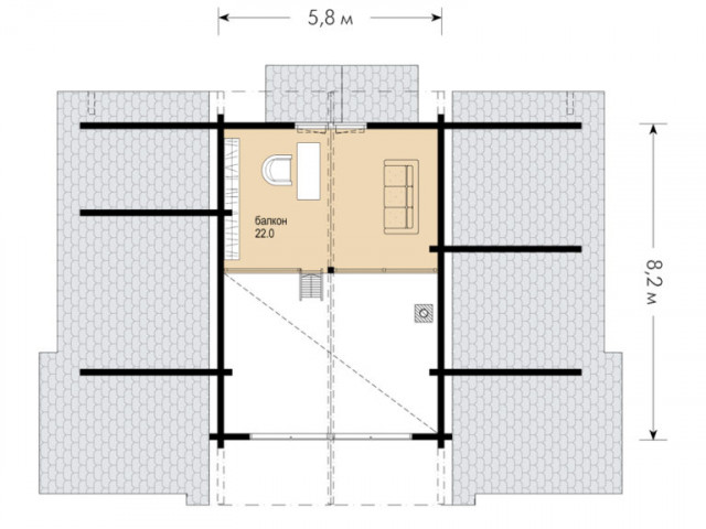
Специально для поселка застройщиком выбрано несколько проектов деревянных домов, идеально вписывающихся в окружающие пейзажи. Выдержаны они в одном стиле — здесь строго соблюдается единая архитектурная концепция. К коттеджам «Истранавтика» подводятся все необходимые для комфортного проживания коммуникации.
Поселок закрыт от посторонних, на въезде оборудован КПП. Благоустройство включает пляжную зону, спортивную площадку и игровой городок для детей.
Что касается внешней инфраструктуры, то в ней недостатка не будет — район обжитой и популярный для загородного строительства. Ближайшие города — Истра и Солнечногорск расположены в 10-15 минутах езды на автомобиле.
- Инфраструктура: гостевая парковка, детская игровая площадка, зона отдыха, пляж, спортивная площадка
- Тип дома: Бревно
- Охрана: КПП
- Коммуникации: Интернет
- Канализация: Центральная
- Водоснабжение: Центральное
- Газ: Магистральный
- Электричество: Центральное























