оставить отзыв
коттеджный поселок Графские пруды
Готовность: Построен. Продажи на вторичном рынке.
Коммунальные платежи: от 18000
Дома от 520 до 624 м2. Участки от 21 до 300 соток.
Лес: Лес по границе участка
Водоём: Водоем рядом с участком
Населённые пункты: Каменка — 2.93 км, Кукшево — 2.85 км, Елизарово — 4.33 км
Шоссе: Киевское, Наро-Фоминский район, 22 км
Домов/участков: 130
Назначение земли: ИЖС
Коммунальные платежи: от 18000
Дома от 520 до 624 м2. Участки от 21 до 300 соток.
Лес: Лес по границе участка
Водоём: Водоем рядом с участком
Населённые пункты: Каменка — 2.93 км, Кукшево — 2.85 км, Елизарово — 4.33 км
Шоссе: Киевское, Наро-Фоминский район, 22 км
Домов/участков: 130
Назначение земли: ИЖС
Объявления в посёлке Графские пруды
53.00млн. руб.
Киевское шоссе
423 м2, 36 соток
423 м2, 36 соток
Описание
Коттеджный поселок "Графские пруды" общей площадью 62 Га разбит на 130 участков.
Инновационные технологии строительства, ссовременные материалы, совершенные инженерные коммуникации -
"Графские пруды" - поселок, в котором все продумано до мелочей:
- Электричество - магистральное, 20 кВт на дом
- Газ - магистральный
- Водоснабжение- магистральное, 2 артезианские скважины
- Канализация - ливневая канализация, очистные сооружения
- Коммуникации- интернет, кабельное телевидение, спутниковое ТВ, телефон
Охрана:
- профессиональная охрана,
- видеонаблюдение периметра,
- охранная сигнализация,
- КПП, шлагбаум.
Коммуникации
- Инфраструктура: аптека, гостевая парковка, детская игровая площадка, зона отдыха, магазин, спортивная площадка, теннисный корт, химчистка
- Охрана: Видеонаблюдение, КПП, ЧОП
- Коммуникации: Интернет, Спутниковое ТВ
- Канализация: Центральная
- Водоснабжение: Центральное
- Газ: Магистральный
- Электричество: Центральное
Схема проезда в Графские пруды
Генплан поселка Графские пруды

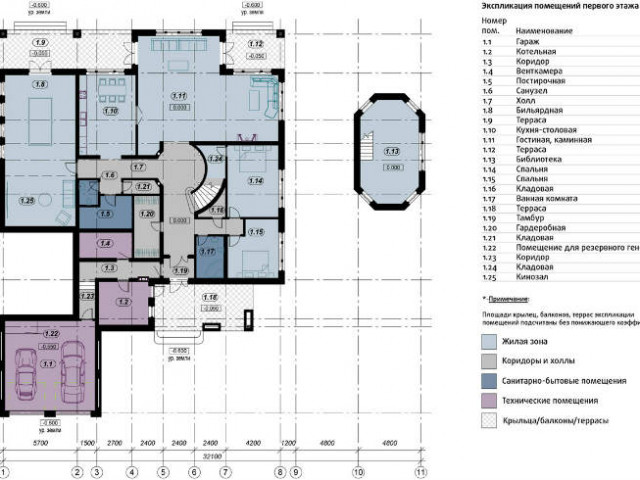
Проекты и планировки домов
Коттедж-1
Планировки
1 этаж

2 этаж

Новости посёлка
Отзывы о поселке Графские пруды
Поселки рядом





















