коттеджный поселок Гаврилково
Участки от 8 до 20 соток.
Лес: Лес по границе участка
Водоём: Водоем рядом с участком
Населённые пункты: Гаврилково — 0.66 км, Золотилово — 2.41 км, Митино — 2.26 км
Ближайшая ж/д станция: Хотьково, 2.74 км
Шоссе: Ярославское, Сергиево-Посадский район, 54 км
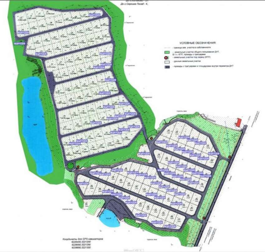
Домов/участков: 163
Назначение земли: Дачное строительство
Коттеджный поселок «Гаврилково» расположен в Сергиево-Посадском районе на расстоянии 54 километров от МКАД, 3,4 километра от городка Хотьково и 4,2 километра от города Сергиев-Посад. Добираться до него можно по Ярославскому шоссе, ближайшим населенным пунктом является деревня Гаврилково.
Участки «Гаврилково»
Поселок состоит из участков без обязательного подряда. На любом из них можно построить дом и оформить регистрацию по новому месту жительства.
Общая площадь поселка составляет 14,12 гектара, земля разделена на 163 участка, площадь самого маленького равна 8 соткам. При желании покупатель сможет приобрести несколько смежных участков.
Ко всем участкам «Гаврилково» подведены основные коммуникации, без которых уютная и комфортная загородная жизнь была бы невозможной. На каждый участок приходится по 11 кВт электричества, также здесь есть газ, автономное водоснабжение из скважин и автономная канализация.
Инфраструктура коттеджного поселка «Гаврилково»
Территория коттеджного поселка огорожена по периметру и находится под круглосуточной охраной. Профессиональная охранная служба способна обеспечить не только безопасность местных жителей, но и сохранность их имущества.
Поселок оснащен асфальтированными подъездными путями, а также в нем предусмотрены пешеходные дорожки для прогулок на свежем воздухе.
В поселке построено административно-торговое здание, в котором можно не только приобрести необходимые продукты, но и решить проблемы, связанные с обслуживанием дома.
Рядом с коттеджным поселком «Гаврилково» находится большой пруд с обустроенным пляжем, на берегу которого местные жители могут проводить свободное время.
- Инфраструктура: гостевая парковка, детская игровая площадка, зона отдыха, магазин
- Охрана: КПП, ЧОП
- Коммуникации: Интернет, Спутниковое ТВ
- Канализация: Очистные сооружения
- Водоснабжение: Скважина
- Газ: Магистральный
- Электричество: Центральное











