коттеджный поселок Финский пригород
Дома от 207 до 467 м2. Участки от 14 соток.
Лес: Лес по границе участка
Водоём: Водоем рядом с участком
Шоссе: Киевское, 25 км
Домов/участков: 26
Назначение земли: ИЖС
В удивительно красивом месте, на территории природного парка «Каменка» расположился коттеджный поселок «Финский пригород»: красивейшая нетронутая природа, обилие воды, живописные ландшафты — парк занимает порядка 1000 гектар.
До МКАД 25 километров по Киевскому шоссе — не более получаса в дороге. Кроме того, эти территории вошли в состав Новой Москвы, так что предполагается достаточно быстрое развитие инфраструктуры, в том числе, транспортной.
Коттеджи и благоустройство поселка
Сам поселок небольшой — территория в 6,6 гектара разделена на 26 участков, размер которых начинается от 14 соток — при их планировании удачно использованы особенности природного рельефа.
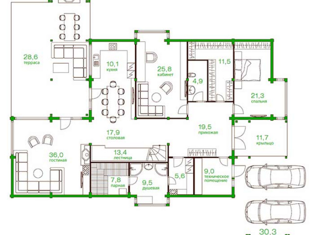
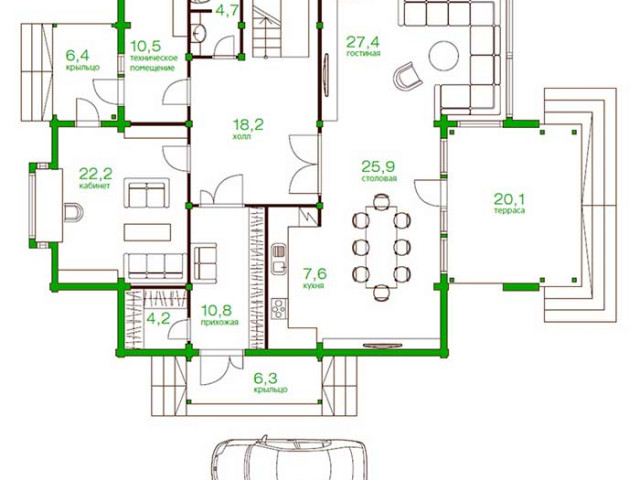
Землевладения реализованы с обязательным подрядом — специально для нового поселка разработано семь вариантов добротных деревянных домов площадью от 207 до 467 кв. метров. К коттеджам «Финский пригород» подводятся все центральные коммуникации.
Благоустройство поселка включает мини-маркет, детскую площадку и наземный гостевой паркинг. В большем нет необходимости — в ближайшей доступности располагается несколько крупных населенных пунктов и города Апрелевка и Троицк, инфраструктура которых мало уступает столичной.
- Инфраструктура: гостевая парковка, детская игровая площадка, зона отдыха, минимаркет
- Охрана: Видеонаблюдение, КПП
- Коммуникации: Интернет, Спутниковое ТВ
- Канализация: Центральная
- Водоснабжение: Центральное
- Газ: Магистральный
- Электричество: Центральное







































