коттеджный поселок Давыдово
Дома от 137 до 300 м2. Участки от 8 соток.
Лес: Лес по границе участка
Водоём: Водоем рядом с участком
Шоссе: Новорижское, Истринский район, 38 км
Домов/участков: 80
Назначение земли: ИЖС
На западе Подмосковья, в окружении роскошного леса, строится коттеджный поселок «Давыдово». До Москвы 38 километров, менее получаса пути по проходящему неподалеку Новорижскому шоссе. Вполне удобно добираться и на общественном транспорте.
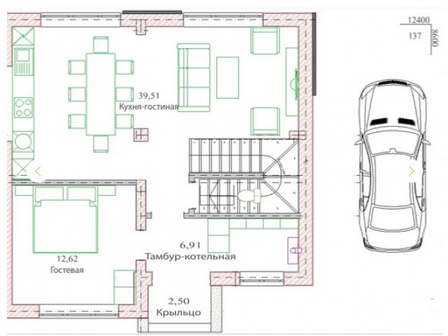
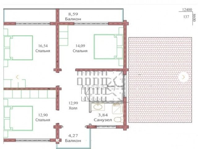
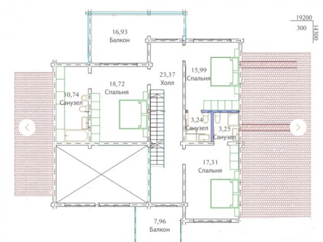
Поселок небольшой, всего 80 участков, предлагаемых со строительным подрядом. Дома возводятся по нескольким специально разработанным проектам, выдержанным в едином архитектурном стиле. Все они комбинированные — первый этаж из качественного керамического блока, второй — из клееного бруса.
Сдаются коттеджи «Давыдово» без отделки, подготовленными к ремонту или же полностью готовыми к проживанию — это зависит от пожеланий владельцев. Все коммуникации — центральные.
Поселок огорожен, работает охрана, предусмотрено благоустройство общественных зон. Инфраструктурой он перегружен не будет — в нескольких минутах езды расположен город Истра, еще ближе — несколько крупных населенных пунктов.
- Инфраструктура: гостевая парковка, детская игровая площадка, зона отдыха, спортивная площадка
- Охрана: Видеонаблюдение, КПП
- Коммуникации: Интернет, Спутниковое ТВ
- Канализация: Центральная
- Водоснабжение: Центральное
- Газ: Магистральный
- Электричество: Центральное
















