коттеджный поселок Бригантина
Коммунальные платежи: от 7000 р/мес
Дома от 190 до 240 м2. Участки от 10 до 11 соток.
Лес: Лес по границе участка
Водоём: Водоем рядом с участком
Населённые пункты: Еремино — 1.46 км, Птицефабрики — 2.25 км
Шоссе: Дмитровское, Мытищинский район, 12 км
Домов/участков: 34
Назначение земли: ИЖС
В 12 километрах к северу от Москвы и менее, чем в километре от Клязьминского водохранилища строится коттеджный поселок «Бригантина».
Он небольшой, клубный — на 4 гектарах территории разместятся всего 34 коттеджа. Каждый - на участке размером 10-11 соток.
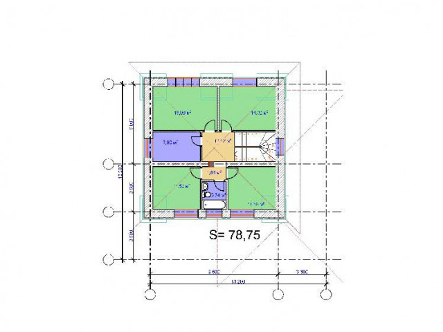
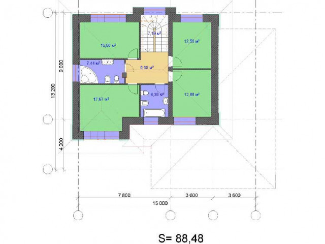
Возводятся двухуровневые дома по трем специально разработанным для поселка проектам — 190, 200 и 240 кв. метров площади. Стильный внешний вид сочетается с продуманными удобными планировками и современными экологичными технологиями строительства.
Будущим владельцам они предлагаются без внутренней отделки. Конечно же, к коттеджам «Бригантина» подведены необходимые центральные коммуникации.
На закрытой охраняемой территории поселка планируется построить гостевые парковки, установить детские и спортивные площадки, обустроить зоны отдыха.
Близость «большой воды» наверняка оценят любители активного отдыха, рыбалки, да и просто чистого пляжного песка. За работу инженерных систем и порядок на общественных территориях отвечает своя служба эксплуатации.
- Инфраструктура: гостевая парковка, детская игровая площадка, зона отдыха, спортивная площадка
- Охрана: Видеонаблюдение, КПП, Сигнализация, ЧОП
- Коммуникации: Интернет, Спутниковое ТВ
- Канализация: Центральная
- Водоснабжение: Центральное
- Газ: Магистральный
- Электричество: Центральное
Дата съемки: 24.06.2014



Место, конечно, хорошее и цены приемлемые, учитывая близость к Москве. И с дорогой особых проблем не возникает.
Продажи идут не слишком активно, так что обжитым поселок станет еще нескоро.



















