коттеджный поселок Bosco Villaggio (Лесная деревня)
Коммунальные платежи: от 50 р/кв.м/мес
Дома от 153 до 200 м2. Участки от 2 до 5 соток.
Лес: Лес по границе участка
Водоём: Водоем рядом с участком
Населённые пункты: Шевелкино — 1.13 км, Новая Купавна — 1.21 км, Соколово — 4.72 км
Шоссе: Горьковское, Щелковское, Ногинский район, 15 км
Домов/участков: 59
Назначение земли: ИЖС
Коттеджный поселок «Bosco Villaggio» (Лесная деревня) расположился в пятнадцати километрах от границы мегаполиса. Для того, чтобы посмотреть на него, достаточно выехать на Горьковское шоссе. Через несколько минут вы будете в самой настоящей лесной деревне, где строятся комфортабельные дома по нескольким оригинальным проектам, с обязательным подключением ко всем необходимым коммуникациям.
Дома в коттеджном поселке «Bosco Villaggio»
Каждый дом в новом коттеджном поселке подключается к газовой, отопительной и канализационной системе. Планируется также подключение центрального водоснабжения. Мощность подведенного электричества составляет по десять кВт на каждое домовладение.
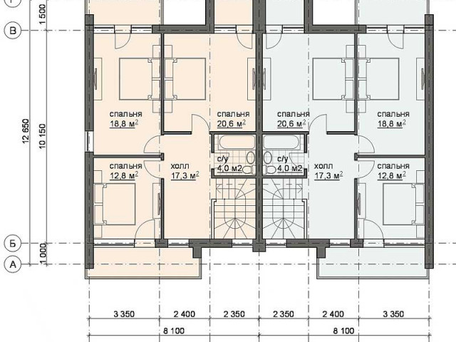
Общая площадь просторных коттеджей составляет до 169 кв.м. Дома выстроены в строгом европейском стиле и каждый имеет приусадебный участок. Коттеджи «Bosco Villaggio» отличаются продуманной планировкой. На первом этаже здания расположен тамбур, из которого можно выйти в гараж или пройти в холл. Также здесь есть гостиная комната, кухня, санузел и котельная. Поднявшись по винтовой лестнице на второй этаж, можно оказаться в холле, в котором располагаются входы в одну из трех изолированных спален и санузел.
Площадь самой маленькой спальни составляет 12,8 квадратных метров, поэтому ее можно использовать в качестве детской комнаты. Средняя спальня занимает 18,8 квадратных метра, а самая крупная – 20,6 квадратных метров. В домах предусмотрены просторные гостиные комнаты, их площадь составляет 24,5 квадратных метра.
Инфраструктура коттеджного поселка «Лесная деревня»
Отличительной особенностью коттеджного поселка «Боско Вилладжио» является развитая инфраструктура. В нем есть все для комфортной и безопасной загородной жизни. Здесь нет глухих заборов, поскольку поселок обеспечен собственной службой безопасности с круглосуточным наблюдением. Для того, чтобы пройти на территорию, необходимо предъявить электронную клубную карту.
Общественные зоны благоустроены, проведено их озеленение. Кроме того, в поселке имеется отлаженная спортивная и социальная инфраструктура. При мониторинге экологической безопасности специалистами отмечается крайне благоприятная обстановка в данном районе.
- Инфраструктура: гостевая парковка, детская игровая площадка, зона отдыха, кафе, минимаркет, спортивная площадка
- Охрана: Видеонаблюдение, КПП, Сигнализация
- Коммуникации: Интернет, Спутниковое ТВ
- Канализация: Центральная
- Водоснабжение: Центральное
- Газ: Магистральный
- Электричество: Центральное



В целом нормальный поселок, как и другие подобные, вообщем средний уровень пригодный для жилья без особых требований к комфорту, соседям и др.
Давайте смотреть правдиво, про экологию места где расположен поселок Bosco Villaggio.. рядом в 12 км. свалка Тимохово, и еще чуть дальше свалка Кучино (полигоны захоронений отходов). Ч то это за свалки в поиске найдите - почитайте.. Дальше уже ваш выбор, где жить, чем дышать и какую воду пить..
Целенаправленно искал участок на Горьковском, т.к. здесь у меня проживает куча друзей и родственники. Подвернулся выгодный вариант в Bosco Villaggo. Коттеджи все стилистически похожи. Планировки удобные, особенно понравился встроенный гараж с выходом в жилую часть. Гостиная просторная – можно навести гостей. На территории безопасно находится в любое время, охрана хорошая. Дорожки асфальтированные, но местами есть сужения, поэтому если у вас длинный пикап, то разворачиваться не всегда комфортно. С экологий все гуд, думаю многие со мной согласятся в этом.
Поселок рядом с Москвой. Строящиеся таунхаусы, большие, в едином стиле. Очень удобная планировка. Дома подключены к коммуникациям, решается вопрос с водоснабжением. Поселок охраняется, для прохода на территорию предъявляется электронная клубная карта. Мне поселок, несмотря на вроде бы привлекательность, не понравился. Очень тесный, дома друг на друге, нет никакой изолированности, словно коммунальная квартира.
См. выше.

















