коттеджный поселок Бельведер
Дома от 80 до 120 м2. Участки от 15 до 20 соток.
Лес: Лес по границе участка
Водоём: Водоем рядом с участком
Населённые пункты: Семеновское — 0.29 км, Раково — 1.18 км, Кстинино — 2.18 км
Шоссе: Ярославское, Пушкинский район, 37 км
Домов/участков: 28
Назначение земли: ИЖС
Коттеджный поселок «Бельведер» расположен всего в 37 км от МКАД по Ярославскому шоссе. Общая площадь его составляет 2,5 гектара, он разделен всего на 14 участков, площадь каждого из них равна 15 соткам.
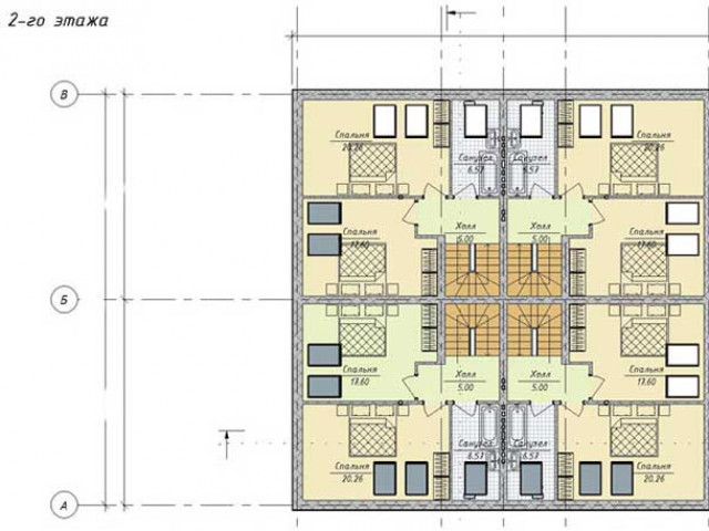
Сблокированные коттеджи площадью от 80 до 120 кв. метров характеризуются свободной планировкой. Поэтому каждый владелец сможет разграничить пространство по своему усмотрению.
Стены зданий возведены из газосиликатных блоков, кровля изготовлена из металлочерепицы. Во всех домах установлены металлические входные двери и металлопластиковые окна. Коттеджи «Бельведер» подключены к центральным коммуникациям.
Преимущества жизни в коттеджном поселке «Бельведер»
Новый поселок расположен на территории населенного пункта с развитой инфраструктурой. Поэтому в шаговой доступности для местных жителей будут продуктовые, хозяйственные магазины, аптека и др.
Сам поселок вполне можно отнести к комплексам клубного типа. Благодаря совместному владению коттеджами, новые жильцы смогут значительно снизить расходы на ежемесячные коммунальные платежи и сократить стоимость обслуживания жилых зданий.
В нескольких минутах езды от поселка расположены Пестовское и Учинское водохранилища. Здесь можно купаться, совершать прогулки на катерах и яхтах или же просто отдыхать на берегах живописных водоемов.
Строительство коттеджного поселка «Бельведер»
В переводе с итальянского языка «Бельведер», значит «прекрасный вид». Раньше так называли красивые дома и дворцовые сооружения, дополненные завораживающим природным пейзажем.
Новый поселок не случайно получил такое название, ведь именно здесь можно почувствовать уникальное сочетание городского престижа и комфорта с размеренной загородной жизнью на лоне удивительной природы.
- Инфраструктура: гостевая парковка, детская игровая площадка, зона отдыха, спортивная площадка
- Охрана: Видеонаблюдение, КПП
- Коммуникации: Интернет, Кабельное ТВ, Спутниковое ТВ
- Канализация: Центральная
- Водоснабжение: Центральное
- Газ: Магистральный
- Электричество: Центральное



Предлагаются таунхаусы, это сравнительно недорогое, комфортное и безопасное жилье. И обслуживание дешевле отдельных коттеджей. Удобна свободная планировка таунхаусов, покупатель может устроиться, как он считает удобным. Поселок клубного типа, предполагает дружелюбную соседскую атмосферу проживания.
Продажи пока приостановлены по неизвестным причинам.















