коттеджный поселок Бавария-Club (Бавария Клаб)
Дома от 318 до 405 м2. Участки от 14 до 25 соток.
Лес: Лес по границе участка
Водоём: Водоем рядом с участком
Населённые пункты: Романцево — 0.27 км, Юрово (Кленовский с/о) — 2.07 км, Колотилово — 2.37 км
Шоссе: Калужское, Подольский район, 25 км
Домов/участков: 25
Назначение земли: ИЖС
В районе 25 км от Москвы появляется все больше коттеджных поселков, похожих друг на друга. Но «Бавария Club» - это коттеджный поселок, дома в котором будут выполнены по индивидуальным проектам, подготовленным специально для него. Они получили название от старинных немецких земель и городов Баден, Бремен, Мюнхен, Гамбург и Бавария.
Коттеджный поселок «Бавария Club» расположен в 27 км от Москвы по Калужскому шоссе. Всего за полчаса езды можно оказаться в своем загородном доме. Рядом с поселком расположены конноспортивный комплекс «ИППО» и рыболовный клуб «Золотой Сазан», где можно хорошо отдохнуть.
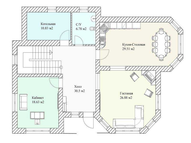
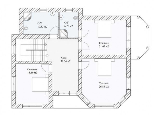
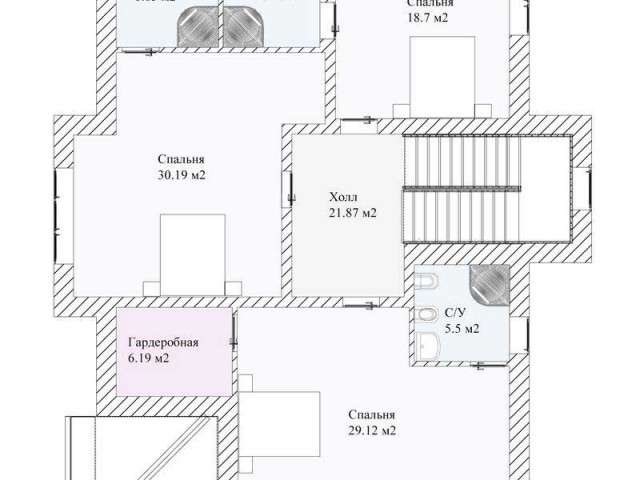
Дома в коттеджном поселке «Бавария Club» имеют площадь от 316 до 405 кв. м. и располагаются на прилесных участках от 15 до 25 соток. Покупатель может выбрать оптимальный вариант с точки зрения размера. Но со стороны дизайна, все строения в поселке будут согласованы и выполнены либо в классическом стиле архитектуры, либо в стиле фахверк.
Дома в коттеджном поселке «Бавария Club» поставлены на фундамент из ленточного монолитного железобетона, кирпичные стены, фасад из штукатурки и облицовочного кирпича, кровля из гибкой черепицы Tegola и двухкамерные стеклопакеты. На каждый дом 15 кВт, водоснабжение – центральное, газоснабжение – магистральное. Канализация – ливневая и локальная система глубокой биологической очистки. Есть возможность подключения прямого городского московского номера, высокоскоростного интернета и телевидения.
Специально созданное некоммерческое объединение обеспечивает коттеджный поселок «Бавария Club», занимаясь уборкой территории, уходом за насаждениями, организацией пропускного режима и поддержанием общественного порядка на территории, техническим обслуживанием и капитальным ремонтом инженерных сетей и коммуникаций, обеспечением бесперебойного электроснабжения, водоснабжения и водоотведения, работы телевидения, интернета и телефонной линии, вывозом мусора.
Кроме того, вблизи поселка можно найти всю необходимую инфраструктуру. Для детей есть дворец спорта «Квант» и 5 различных садиков. Для мам – фитнесс-центр «Mr&Mrs Fitness», для первой необходимости – супермаркеты, аптеки, банки и больница. Для того чтобы расслабиться, неподалеку расположена Зона отдыха «Заречье», куда входит прекрасный ресторан, шашлычная поляна, рыбалка и многое другое. Итак, дом в поселке «Бавария Club» в первую очередь дает возможность отдыхать от шума столицы не только в отпуск, а каждый день.
- Инфраструктура: гостевая парковка, детская игровая площадка, зона отдыха, спортивная площадка
- Тип дома: Кирпич
- Охрана: Видеонаблюдение, КПП, Сигнализация, ЧОП
- Облицовка наружных стен: Кирпич, Комбинированная, Штукатурка/покраска
- Коммуникации: Интернет, Спутниковое ТВ
- Канализация: Ливневая канализация, Очистные сооружения
- Водоснабжение: Центральное
- Газ: Магистральный
- Электричество: Центральное
Дата съемки: 28.08.2014

Коттедж "Бавария" сделан в фирменном германском стиле "фахверк". На третьем этаже располагается просторная мансарда.



Красивый ухоженный поселок, зеленый, весь в цветах, красивые дома, около каждого дома парковка. Все коммуникации центральные, можно подключить московский телефон, интернет. Поселок охраняется.
Мне кажется цены завышены даже для такого поселка.
Есть охрана, патрулирование, пожарная безопасность, дома выдержаны в одном стиле. Одним словом маленькая Бавария, находиться недалеко от МКАДа. Тут тишина, есть все системы коммуникаций. На сайте смотрели виртуальную экскурсию, нам понравилось.
Поселок Бавария – место не из дешевых.
Этот поселок очень дорогой. Но он того стоит. Все виды развлечений тут. Есть и система безопасности с КПП. Недалеко от МКАДа. В каждом доме есть: газоснабжение, водоснабжение, канализация, автономное отопление. Это маленькая частичка Германии.
Мы просто не потянем этот дом по деньгам
































