коттеджный поселок Барвиха
Коммунальные платежи: от 4000 р/мес
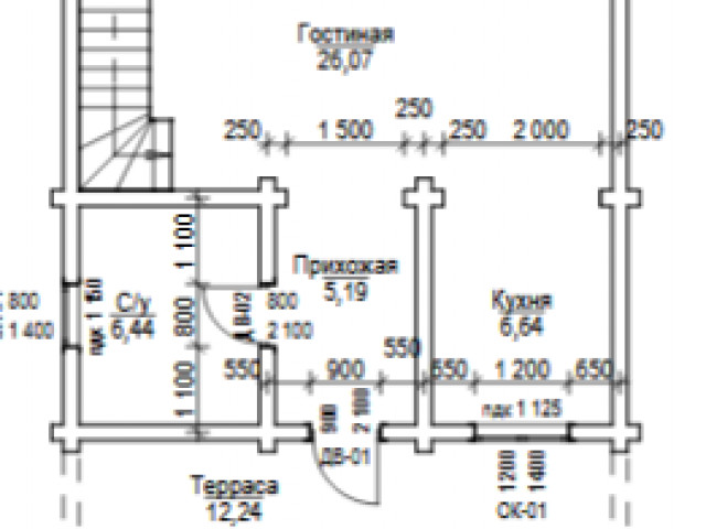
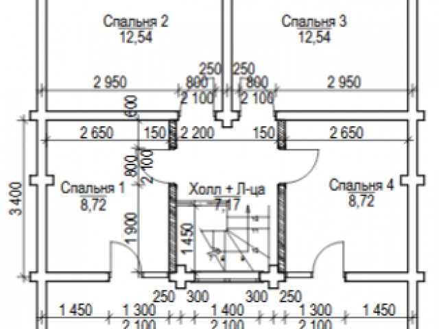
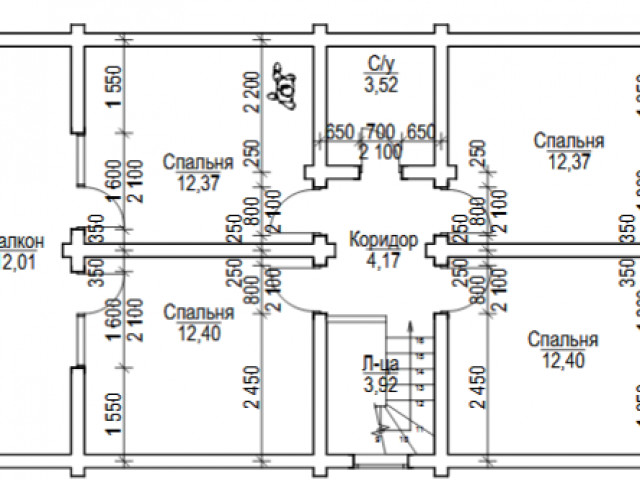
Дома от 126 до 280 м2. Участки от 15 до 30 соток.
Лес: Лес по границе участка
Водоём: Водоем рядом с участком
Населённые пункты: Бобурино — 0.98 км, Жердево — 6.40 км, Киржач — 11.26 км
Шоссе: Щелковское, 100 км
Домов/участков: 400
Назначение земли: Дачное строительство
Удивительно, как за какие-то двадцать лет изменилось представление современного человека об идеальном месте отдыха. Если раньше уставшему от ежедневной суматохи горожанину достаточно было убежать от суеты в деревню, чтобы только ступить на зеленую травку, вдохнуть свежий воздух и раствориться в томном деревенском ритме жизни, то сегодня, вырвавшись из города и попав в объятия чистой природной среды, человек категорически не желает, тем не менее, совсем расставаться с комфортом городского стиля жизни.
Чтобы воплотить в жизнь новую идеальную мечту современного горожанина, строители спроектировали коттеджный комплекс клубного типа «Барвиха» на Щелковском шоссе. Центральной идеей проекта является гармоничное соединение наиболее привлекательных ценностей городского и дачного образа жизни.
Поселок и инфраструктура
К удивительному по своей философии коттеджному комплексу «Барвиха» Щелковское шоссе приведет очень быстро, ведь это всего лишь 100 км от МКАДа. Клубный комплекс раскинулся на территории более 100 га в окружении хвойного леса и березовой рощи и удален от трассы на 500 м.
Не многие обладатели загородной недвижимости могут похвастаться наличием в непосредственной близости от своего дачного дома развитой инфраструктуры. Но коттеджный комплекс «Барвиха» на Щелковском шоссе, несмотря на свой статус экономкласса, готов предложить всем желающим комфорт уровня элит.
Владельцы домов и гости клубного комплекса могут в двух шагах от своего домика воспользоваться услугами:
- магазинов
- ресторанов
- салонов красоты;
- стоянки;
- медицинского центра;
- вертолетной площадки;
- тренажерного зала;
- а также волейбольной площадки, футбольного поля, теннисного корта;
- поиграть с малышами на оборудованной соответствующим образом детской площадке.
Владельцам коттеджей не придется беспокоиться о своей безопасности: комплекс окружен забором, по периметру которого несется охрана и осуществляется круглосуточный контроль въезда и выезда.
Благодаря единству в стиле деревянных коттеджей поселок «Барвиха» на Щелковском шоссе напоминает уютную старинную деревеньку. Тем не менее каждый дом будет иметь свое индивидуальное лицо, поскольку разработчики предлагают более 15 вариантов проектов коттеджей. Единственное, что их объединяет, – основной материал строительства (бревенчатая древесина) и этажность (2 этажа). В остальном же проекты практически уникальны, площади различных модификаций находятся в диапазоне от 100 до 280 кв. м и способны удовлетворить запросам даже самого требовательного заказчика.
Коттеджный комплекс клубного типа «Барвиха» − достойный выбор для тех, кто ценит идеальное соотношение экономии и комфорта, природы и городского стиля жизни.
- Инфраструктура: spa, баня, волейбольная площадка, гостевая парковка, детская игровая площадка, детский сад, магазин, медицинский центр, ресторан, сауна, спортивная площадка, теннисный корт, фитнес-клуб, футбольное поле, храм
- Охрана: КПП
- Коммуникации: Интернет
- Канализация: Септик
- Водоснабжение: Скважина
- Газ: Магистральный
- Электричество: Центральное



Добрый день. Всех с Днём Победы! Вопросы по строительству дома в посёлке, ответьте, пожалуйста. 1. Стоимость подключения к электричеству и соответственно газу. 2. Какие требования к строительству, материалы стен, цвет дома и придомовых строений (т.к. очевидно в поселке все в одном стиле).
Надеюсь, их нет)
Отличный поселок. Приятная атмосфера. красиво. воздух чистый
Нет
Люблю свой поселок. Расположение, соседи - все просто замечательно. Люкс
Нет тут никаких недостатков
Место хорошее, рядом лес. Все дома только деревянные.
Из Москвы в среднем времени на дорогу уходить 3 часа. Воруют с участка. Охраны нет. Управляющая компания-жулики. Электричество перепродают. Дома построены алкоголиками. В каждый дом нужно ещё минимум 50 процентов от стоимости вложить что бы не умереть в нем от холода. Если хотите что бы вас обманули покупайте дом. Да и оплата в 4600 р в месяц.
рядом лес
оплата в месяц 4000р !!! Без электричества! В год 50000р.!!! И сколько нагорит за комуналку.
Местоположение, природа.
1) Недобросовестные менеджеры! Обманывают на каждом шагу. 2) дома все построены на тяп ляп, щели такие что ладонь пролазит, крыша вообще не утеплена, забыли заземление. 3) оплата ежемесячная не чем не обоснованна, просрочили сдачу дома на 3 месяца и требуют оплату за их просрочку, кинули трубу газовую и подняли оплату. 4) за свет у нас уплаченно они нам его отключили.
Удобное месторасположение. Единый архитектурный стиль поселка.
Очень жалею, что перед тем как покупать дом в этом поселке, не ознакомилась с комментариями на форумах. Цена абонентской платы поднимается не по дням, а по часам. Сейчас уже 4700 руб. в месяц. Жадность собственников УК переходит все границы. Дом выставлен на продажу уже 3 с половиной года. Желающих поселиться в этом чудо поселке нет. В построенном доме действительно щели толщиной с палец. Без конопатки, стоимость которой еще около 500000 руб., не обойтись.
Отличное место, хорошая природа, свежий воздух.
И так начнём: 1) дома построены все тяп ляп, щели с ладонь. 2)дату сдачи дома просрочили на 4 месяца и требуют оплату за дом за эти месяцы. 3)когда провели газовую трубу на участок сразу подняли оплату за её пользование. 4)Артем и Татьяна конкретные мошенники не верьте не одному их слову. 5)Вся компания построена на лжи и обмане.
все достоинства этого поселка расписаны менеджерами, их просто нет. дойка населения и издевательство в виде охраны которая не охрана а дубаки с зоны за наши же деньги чинят нам проблемы по указанию администрации
Достоинство посёлка одно, это первое впечатление, которое моментально портит ,,менеджер,, по продажам Татьяна, своей не профессиональностью и хамским отношением к потенциальным покупателям. В дальнейшем заключив договор и оплатив оговоренную сумму, я получил в придачу к дому низкого качества (хотя назвать это домом врятли можно), кучу проблем. Начиная от нарушения сроков сдачи, отказом устранить или компенсировать недостатки, закрытой двери в офисе и не желание сотрудников офиса брать трубки. Стоимость услуг взяты просто из головы и предоставить расчеты по ним нам просто отказали. Работников нанятых мной за мои средства для устранения недостатков строителей которые строили дом, попросту не пускают на посёлок, навязывая каких то своих ,,рабочих,, по завыщенным тарифам. Детский клуб, фитнес зал и прочее, на посёлке просто отсутствуют, хотя нам так усердно рекламировала ,,менеджер,, Татьяна. Охраны как таковой на посёлке нет. Зато есть огромная куча навоза ))) на самом въезде в посёлок. Дороги ужасного качества, пройти по ним пешком сплошная мука. Детская площадка в стиле аля колхозный дворик, осталось выдать детям для игры два кирпича и пару досок.
Все в достоинствах!!! Отзывы написанные ниже, отзывы работников офиса для завлечения клиентов. Очень сожалею о том, что приобрел дом в этом посёлке, теперь никак не могу продать.
Современная "не деревенская" загородная жизнь как она есть.
К недостаткам относим ненадежность руководства. Подробнее в нашем обращении: Уважаемые потенциальные и нынешние жители коттеджного посёлка Барвиха (он же ДНТ «Барвиха» (Кольчугино), Щелковское шоссе, Ярославское шоссе, 95-100 км от МКАД). Позвольте обратиться к вам от лица ГК "Бревенбург" - производителя оцилиндрованного бревна и домокомплектов. До недавнего времени все дома в поселке были построены именно из нашего бревна. К многочисленным отзывам и обсуждениям на этом и других сайтах относительно репутации и надежности вашего застройщика и администрации поселка мы вынуждены добавить следующую не голословную информацию. У руководства застройщика имеется перед нами непогашенная задолженность за поставленные материалы для построенных в поселке домов. Речь о внушительной семизначной сумме и длительной просрочке. Руководство как прежней компании (о банкротстве которой было объявлено в 2014-15 годах), так и нынешней, равно как и всех дополнительных юридических лиц, не намерено расплачиваться с нами и, собственно, в переговорах и переписке этого не скрывает. В связи с этим гарантированные поставки нашей продукции были прекращены. Возможно, эта информация будет полезна всем тем, кто еще сомневается. Вы свободны обратиться к нам за комментариями по этой неприятной ситуации. Сожалеем, что пришлось выносить такую информацию на общий суд. Остается надеяться, что никто более не пострадает от подобной недобросовестности. Руководство ГК "Бревенбург".
Мой любимый мужчина решил сделать мне подарок на День рождения в качестве дома на Барвихе. Я была в восторге! Вы представляете, что это за место? Спасибо строителям, которые продумали каждую мелочь. Я совсем забыла о столице. Здесь кипит своя жизнь. Дома красивые, уютные, теплые, комфортные. В строительстве использовались натуральные материалы и высокотехнологичные инструменты. До Москвы 100 км не близко, как для ежедневного проезда, но я и не езжу туда каждый день. Меня вполне устраивают залы, салоны, рестораны и магазины в этом районе. Да и атмосфера здесь очень крутая.
не нашла и быть их не может
Жить в Барвихе - это чудо. Что коттеджи, что инфраструктура на высшем уровне. Все строения здесь в два этажа, использовалась только натуральная древесина. Каждый дом красив по своему и не похож на соседский. Мы всей семьей сюда переехали, потому, что в этом месте есть все. Не нужна столица. В одном месте сконцентрировано самое необходимое: теннисные корты и спортплощадки, магазины, рестораны, вертолетные площадки, паркинг, салоны и прочее. За безопасность свою и жилья мы не переживаем, усиленная охрана ведет не только видеонаблюдение, но и высокий забор защищает от посторонних глаз.
нет
Мы - молодая пара, которая любит, чтобы все было под рукой. В Барвихе есть то, что нам нужно: магазины, медицинский центр, рестораны, тренажерный зал (для нас это очень важно!), а также разные площадки для активного времяпрепровождения. Уютная и приятная местность, где можно спокойно жить, наслаждаясь красотой вокруг. Нам нравится, что везде чувствуется натуральность, природность.
Минусов не обнаружили. Для нас это идеальное поселение! И это, кстати, еще только начало. Комплекс будет разрастаться, и я уверена, станет еще лучше и уютней для жизни.
Мне в Барвихе нравится абсолютно всё. Тут я действительно отдыхаю от городской суеты. Очень удобное место расположение, всё в шаговой доступности
Нету!
Всех приветствую дорогие форумчане. Для желающих приобрести домик в нашем поселке могу сказать одно, не слушайте вообще никого, а приезжайте и смотрите сами. Я живу давно на поселке, на постоянке. И каких то глобальных проблем с домом или еще с чем либо у меня не было. Все что пишут "страшное" тут это пыль какая то. Все тут гуд.
Имею здесь дом практически с момента основания поселка. Можно сказать старожилы. Считаю достойным место для тех кто думает/выбирает. Дома в едином стиле, инфраструктура хорошая, поселок перспективный, строящийся, видно что о поселке заботятся. Мой дом теплый сам по себе, наличие газа в доме делает все еще лучше. Летом приезжает очень много детей, дочке есть компания по возрасту. Жители доброжелательные, мне и с соседями повезло тоже.
нет
У нас хороший и чистый поселок, Дети самостоятельно гуляют на площадках, и я 100 % уверен что они в порядке. Свалок и мусора никакого нет.
Претензии есть только к погоде.
У нас действительно красивый поселок и чудесная природа. Люди, нет у нас никакой пьяни. Вы о чем??? Охрана хорошо справляется со своими обязанностями! Живу в центре поселка и ничего такого о чем Вы пишите не видела.
Я как раз тоже занимаюсь тем, что, оформляю все документы на газ. Единственное что немного "подбешивает" горгаз долго делал проект. Ну а в основном, все отлично. Так что в ближайшее время и наша семья ощутит тепло от синего огонька. Видимо и правда "мечты сбываются"!!!
горгаз
Скажу честно, что радуюсь тому, что в этом месяце коммуналка вышла дешевле, чем за все 1,5 года что имею дом здесь. Случилось это в связи с тем, что отапливается мой дом теперь газом. Управляю газовым котлом с телефона, то есть, перед тем как выехать из Электростали, захожу в программу (замечу на обычном смартфоне), и устанавливаю температуру, которая нужна. И по приезду дом уже нагрет.
Было бы круто, если бы расчищали подъезд и стоянку непосредственно на участке, ну допустим по звонку.
у меня газ!! Да я побегал за документами, но это ж не к барвихе претензия, а к правилам газпрома. Просто думаю надо было заплатить 10000 рублей за пакет документов, акты вентиляций, пожарки, и прочей ерунды, чем мотаться с москвы. А администрации за проведенную работу по газификации - огромная благодарность, я наслышан...
недостатки- пьянь разъезжающая в выходные по поселку
Уважаемые собственники участков с домами в коттеджном поселке Барвиха! Приобретая участок или участок с домиком Вы становитесь участником сообщества собственников, которые объединены единой целью: созданием и поддержанием грамотной и действующей инфраструктуры коттежного поселка. Для реализации этой цели создана УК Барвиха. Собственник подписывает договор на обслуживание и уплачивает абоненсткую плату, которая расходуется на интересы инфраструктуры: свет в поселке, охрана поселка и патрулирование улиц, содержание дорог, электрических сетей и т.д. Размер тарифа имеет расчетный характер и определяется установленным перечнем услуг в договоре. Квитанции на услуги формируются ежемесячно и собственники получают их разнообразными способами: самостоятельно забирают в офисе, на КПП, получают на электронную почту, забирают соседи и т.д. Собственнику необходимо интересоваться данным вопросом и не пускать на русский: "авось пронесет". Администрация делает все возможное, чтобы не допустить вопросов недопонимания всей важности этого процесса, но со своей стороны очень надеется на взаимное уважение, адекватное восприятие и по-возможности на решение вопросов, которые только укрепят желание собственников трудиться на общее благо. Благоприятная обстановка во круг Вашего участка - это работа, которая не всегда бывает видна и понятна, но мы очень стараемся! С уважением, УК Барвиха
не знаю....
почитала отзывы и волосы дыбом, мы взяли дом в рассрочку, совсем не давно на почту поступило письмо с задолжностью в 26800, теперь мы злостные не платильщики, ни одного уведомления о том , что должны платить за что-то от когда договор заключили не было, получив такую сумму в голове не укладывается за что???? дом нам даже не сдан! Огромная просьба ,тем,кто проживает в поселке откликнуться на эл.почту masphone@mail.ru , хотим пообщаться в живую, какие еще сюрпризы администрация преподносит.
Мы приезжали на просмотр в эти выходные. Этот сайт уже видели до того как посетить Барвиху, но не испугались! И рады тому что приехали и посмотрели дома. В живую дома красивее чем на сайтах. Выбрали себе дачу. Люди перестаньте быть такими злыми! Пока не увидишь своими глазами не стоит верить слухам!
Добрый вечер! Я не понимаю почему многие так негативно относятся к поселку. Ничего плохого я не встречала. Живем на второй очереди, соседи хорошие, за коммуналку так везде платят, а по строительству вопросов не возникало...
кто то писал про аптеку, да ее не хватает
Были вчера на поселке - смотрели дом. На самом деле поселок хорошо смотрится, все дома деревянные и в одном стиле, хотя планировки разные. С менеджером Татьяной посмотрели дома. В итоге все таки выбрали проект и участок под строительство (хотим пристроить себе большую террасу). Рады, что решились на просмотр. Действительно неплохой поселок!
много машин стоит прямо на дорогах
Мы жители поселка уже много лет. Живем здесь постоянно. Прописаны, бабушка по месту жительства получает льготы от соцзащиты. Ребенка возим в школу (проехать 10 км для нас не проблема, по городу раньше больше наматывали). И знаете, даже ни разу мысли не возникло, что от сюда надо уезжать. Прекрасное место ни на что его не променяем. Здесь есть все что нам нужно и все под рукой - огород, лес, дет. площадка, магазин, интернет, телевизор, на участке баня, веранда, качели, мангал. Бабушка у нас довольная, дети ни в чем не нуждаются.
пока не нашли
Не знаю для чего и кто тут так обманывает! Половина из написанного ложь! Живем в поселке, ничего смертельного не происходит. Домов много очень продано, наша первая очередь вся если не ошибаюсь распродана. А если бы не было комментариев таких, причем не правдивых то давно бы заселился весь поселок. Нам тут нравится.
нужна бы аптека
Если отзывы не убедительны - посмотрите на то что народ начинает продавать свои участки вместе с домами, в которых вложили не только деньги но и силы, душу, и потрепали нервы.
да
Мы в поселке живем давно,все что пишут правда,продали больше 200 домов при помощи менеджеров и администрации которые за себя и для себя пишут хорошие отзывы,не верите приезжайте и поговорите с местными.
есть
Хочу выразить свое мнение по поводу поселка. Мы живем на поселке чуть больше 2-х лет. За этот период каких-то глобальных вопросов к администрации управляющей компании не возникало. Были незначительные вопросы в процессе отделки - но без них и не бывает. В итоге все сделали в лучшем виде.
нет
Живем в Барвихе и всем довольны! Здесь нас абсолютно все устраивает. То что тут пишут - неправда! Если бы все было так, то не было бы продано 200 домов!
нет
Ездил с супругой смотреть, понравилось. Не смотря на то, что мы были уже зимой и часть дачников разъехалась. Поселок выглядит очень обжитым, хорошие подъезды к участкам, все чисто. Поверхность участков ровная, все размежовано. Есть коммуникации, уже включены в стоимость. Летом, думаю, тут еще веселее. Будем рассматривать вариант рассрочки.
Видимо, конкуренты решили немного поднасолить Барвихи, да вот не получается. Мы то простые граждане, кто уже живет здесь, знает, как на самом деле обстоят дела, как развивается поселок. Строительство идет, никто даже и не думает останавливаться, да и вообще застройщик достаточно ответственный, встречал, на свою беду, намного хуже. Прежде чем бросать слова на ветер, стоило бы проверить для начала информацию. Застройщик ее никогда не скрывает, к слову. Нужны какие-то подтверждения или документы — берите, смотрите. Только действительно интересуйтесь, а не делайте вид, что все знаете. У нас когда были вопросы, мы им позвонили, а потом и лично встретились и все узнали.
берут деньги за проезд чужих авто, мне привозили плитку тратуарную-заплатил за въезд 150 рублей
Нету!
Прочитав «приятный отзыв» Елены, решил ответить по существу! Дорогая Елена, работающая в городе Барвиха и «имеющая там участок», про каких местных вы говорите-то ??? У местных уж точно не у всех есть возможность там покупать дома!!! Учитывая, что чуть подальше, скажем в ПГТ Бавлены можно купить кирпичный 3-этажный особняк за такую же цену, которую они предлагают за каркасный домик!!! Вы явно преувеличиваете возможности владимировчан. Оглянитесь вокруг!!!! Каждая третья, если не вторая машина с номерами 50, 150, 190, 750, 77, 99, 199, 777. Это означает одно, вас кормят Москвичи!!! Или областные Москвичи!!! Так что про местных приобретателях домов в городе барвиха полная чепуха!!!! Ну из проданных 200 домов может быть 10 человек максимум из разных регионов!!! Но не все из Владимира, уж в этом я уверен на 90%. Теперь о ваших плюсах про которые пишите вы!!! Близость лесной зоны, солнце, грибы, ягоды, речка, вы так пишите как будто мы живем в африке)))) Это где вы в барвихе зимой собираете эти грибы и ягоды то? Только и пишите про эти ягоды зимой!!! Хотя снег уже тает, но если учитывать нашу погоду, то холода и дождей тут больше, чем тепло. Относительно рассрочки, так у них просто другого выхода нету, как выдать эти рассрочки, чтобы хоть как-то что-то продавать. Если читать ниже отзывы, которые они пишут про себя, купили бронировали , купили довольны, у них не осталось бы свободных участков. Про ресторан. Вы хоть что-то там ели ???)))) Нету там ресторана, может в проекте. Относительно коммуналки 3800 рублей. Кто против то?? Пускай пишут за что ??? Перечень конкретных услуг, которые они оказывают за эти деньги. Вот в Москве от определенных услуг, оказываемых управляющей компанией, можно смело отказаться, если в этих услугах вы не нуждаетесь. Плюс, если вы не живете в доме в квартире, вы можете пойти в УК и написать письмо, и вам коммунальные не будут начислены. Вот если оставили включенным свет, или уехали в отопительный сезон, платить что-то надо. Про вежливых сотрудников никто ничего плохого не говорит, обманщики это продавцы и отдельные менеджеры, оказывающие какие-то услуги, например менеджер, который предлагает газ, или же менеджер, который продает дом, УК, который придумывает всякий обман, чтобы заманить клиента в ловушку. Не спорю, что клиент тоже сам виноват, что досконально не изучает все. Но их можно понять. Если человек из Москвы или из области, его очень легко обмануть, так как вряд ли он будет приезжать каждый день, чтобы что-то узнавать. Вот и эти товарищи пользуются этим. Мой совет к недовольным собственникам, немедля идите в суд. Возможно вы ничего не выиграете, но приучить уважать свои права и отчитываться перед вами скорее всего получится. Успехов всем!!!
Соседи рассказали про этот форум, почитав не смог не поучаствовать. Мы прописаны в поселке и живем тут круглый год! Поэтому пишу обо всем как явны участник событий. Управляющая компания очень не плохо справляется со своими функциями - и убирают поселок и мусор вывозят и дороги очень хорошо чистят. Охрана тоже полностью выполняет свои обязанности - чужие по поселку не шарахаются, а если ждем гостей, то просто предупреждаем, кого нужно пропустить (и это я полностью одобряю!) и никогда никаких проблем с проездом не было. Газ! Мы уже несколько лет здесь живем с электрическим котлом и прекрасно себя чувствуем и большой проблемы из этого не делаем - будет газ перейдем на газовое отопление, не будет - нам без разницы. У нас установлены очень экономичные котлы. На днях был праздник масленица, ходили всей семьей. было очень много конкурсов, призов и подарков для детей, даже телевидение было, потом с внучкой смотрели на себя в новостях. Люди, которым не нравится жить в барвихе: не нравится - продай и уезжай подальше от этого места. Но у людей, которые пишут тут гадости какая то странная логика. Пусть все плохо, душат платежи и налоги, на поселок не пускают, свет отключают, газ не дают НО!!! я все равно тут буду жить - так не бывает!!! Не знаю какая у вас цель, но не надо обманывать других!!!
для полного счастья не хватает школы и больницы на территории поселка, надеемся, что когда нибудь построят.
Уважаемые форумчане! Долго смотрела на это словесное безобразие и решила ответить. я живу и работаю во Владимирской области, а в КП Барвиха владею участком с домом. Скажу так, если бы все было так как пишут на этом форуме, то местные не стремились бы приобрести В КП Барвиха участок с домом. Мы местные, поверьте, знаем где лучше или хуже. 1. Наличие обособленной территории с домами в едином стиле.(ну гулять по поселку приятно, глаз радуется.) 1. Близость лесной зоны (иди гуляй, собирай грибы, ягоды, катайся на лыжах.) 3. В доме солнце как положено: утром - в восточных окнах, днем - в южных, вечером - в западных. Дома соседей и их постройки не загораживают солнце. А мы ведь с вами все люди, нам волю дай такого понастроим, и соседи нам не указ! 4. Проект выбирай в зависимости от кошелька и внутренние коммуникации тоже. 5.Детская площадка, ресторан, магазины, источник, купели, зона барбекю - все есть. 6. Собственник рассрочку дает с минимальным процентом!!! 7. Поселок охраняется, охранники регулярно патрулируют улицы. Ребята! Вы в лесу и в людях!!! 8. Мусор вывозят, дороги чистят от снега оперативно, улицы освещены в темное время суток. Пишут здесь про управляющую компанию. Поселок содержать надо! И причем качественно! Все мы хотим все за 1 рубль! Но не бывает так! Содержание поселка большой труд и расходы, но дело неблагодарное, каждому не угодишь. Подведу итог, а то понесло... Тем кто пишет надо купить дом в лесу и самостоятельно налаживать инфраструктуру вокруг своего участка за 1000 руб. в месяц! А кто хочет чтобы все было культурно, нужны такие коттеджные поселки как наша Барвиха!!!
Буду рад, если мой отзыв пригодится. Мы год как заселились в поселок. Раньше использовали как дачу,сейчас живем на постоянке. Правда прописан только я! Жена с сыном в Москве. Всегда мечтали иметь собственный дом и жить подальше от города. При покупке дома брали ипотеку, все одобрили. Знаете товарищи пишущие тут отзывы - злые вы какие то)) Не спорю, косяки бывали, иногда даже разногласия были с застройщиками, но все урегулировалось. Все люди, со всеми можно все обсудить и как выяснилось в итоге …Не думаю что в других поселках все ровно и гладко!
Никаких
да, смешно, детский сад то они для себя организовали,так 1 группа -кп Барвиха,2 группа УК барвиха!!!!))))))))))))))вот их дети будут там а жильцы будут все оплачивать, не удивлюсь после открытия цена вместо 3800 будет 5000рублей.
лес
Уважаемая «администрация» барвихи, может хватит людям мозги компостировать ? Во-первых, все хорошие отзывы ниже вы себе пишите сами, и это все видит администрация сайта!!!! Ведь настоящий писатель пока не заполнит поле «недостатки», отзыв никак не опубликуется!!! Во-вторых, прочитав все отзывы и так понятно что в вашем поселке не так уж много ребятишек для открытия детского сада. Вы же не собираетесь запустить программу где за каждого 2 ребенка будете давать землю или хотя бы домик, чтобы наполнить этот детсад. Да и сколько вы должны оплатить педагогам, чтобы те из кольчугино или с других ближайших городов ежедневно, пускай даже с двумя выходными днями приходили на работу. Мой вам совет, вместо того, чтобы сидеть сами себя рекламировать, делайте хоть что-то! Хватит народ обманывать и набивать себе карманы! Относительно газа! Это полная чушь! У вас он никогда наверно и не будет, сам лично звонил в горгаз города Кольчугино и как только начал говорить про Барвиху с другого конца провода слушал как меня ругает директор этого самого горгаза, упрекая не устали вы мне звонить, хватит не подпишу, не подпишу, не подпишу. Приходите я всем вам все расскажу, не удалены недочеты и всю свою рабочую неделю только и делаю, что отвечаю жителям поселка Барвиха. Я не удивлюсь, если этот человек получит инфаркт. Относительно обивания порогов, этого вы точно не делаете, единственное что вы делаете это находите в викидепии сложные слова и пишите в договоре, пытаясь дурачить директора горгаза или же читателей форума! Относительно пробок из балашихи, без слез читать эту информацию не возможно))) А куда вы дели щелковское шоссе то? Или чкаловский железнодорожный путь, горьковское шоссе, может у вас там вертолет?))) Вроде в описании написано имеется вертолетная площадка ))) площадка такая же как и сам вертолет )
лес
Кругом одни недостатки, ниже отзывы продавцы пишут, все нахваливают днт и дома с большими недоделками на которые они закрывают глаза, охраны нет, есть непонятные люди которых взяли с улицы шлагбаум поднимать,охраняют они свое имущество(щебень на дорогах чтобы не украли, столбы, самое главное детскую площадку и все,если у жителей что нибудь с участка украдут или из дома они за это не отвечают, газа нет, есть только маркетинговый ход, бутка под газ и желтые трубы и на этом все,газом и не пахнет. Очередное шарашкино днтешное развадилово.Прежде чем покупать сходите к жильцам и спросите есть ли газ? чтобы вам продавцы при показе не врали и не разводили что подводка к дому есть и газом там все пользуются.
Поселок приятно удивил, место действительно красивое. Купили дом без отделки, вернулись и с нетерпением ждем окончания стройки. Зелени, правда, пока скудновато, хочется, чтобы территория скорее стала обжитой. Но ведь и Москва не сразу строилась, все впереди. Озеро не совсем на границе с поселком, но даже в удовольствие будет прогуляться к нему вдоль березовой рощи минут десять. Тем более, уже протоптана удобная тропинка.
Мы выбрали поселок «Барвиха», изучив на сайте его подробное описание. Вся информация доступна, нет подводных камней, все честно и открыто. А самое главное это доступные цены за большие, ровные участки, плюс радуют скидки. Вся запланированная инфраструктура реализуется в запланированные сроки. Сотрудники участливые, доброжелательные. На данном этапе все нас устраивает. Будем надеяться на дальнейшее сотрудничество. Большое спасибо сотрудникам поселка. Собственники участка №83, Селезнева Н.С
А мы купили себе дом в Барвихе. Очень довольны. Считаем, что в том направлении - это лучший поселок. А насчет дорогивизны. Насколько знаем, сейчас есть новые проекты от 1,5 млн. руб. Достаточно интересная цена за дом и участок со всеми коммуникациями. А чего только стоит готовая инфраструктура! Не каждый поселок эконом-класса может похвалиться подобным!!! В общем мы о-очень рады!!!!
Принимая решение о выборе поселка для постройки коттеджа, я руководствовалась несколькими важнейшими факторами жизни. Самый главный из них тот, что если я планирую жить загородом – то экология должна быть без промышленных предприятий поблизости, без выбросов ими в атмосферу различных токсинов. Мне понравилось, что в поселке чистый воздух, да и как может быть иначе, поскольку он окружен лесами, лугами, а находится между двух больших озер. Экологичность окружающей природы наглядно подтверждается невероятным изобилием ягод и грибов, стайками рыбы в водоемах и бобровыми семействами по их берегам. Порадовало, что для жителей поселка построены спортивные площадки, детские площадки Неподалеку находится классическая русская деревня, а прямая, иногда конченно же с пробками...а где без них? ухабов и «заплаток» дорога занимает всего лишь полтора –два от Москвы. Поселок охраняется, проложены все коммуникации «Барвиха» - это поселок для умиротворения души, для спокойного и тихого отдыха. Радуют глаз красивые, деревенские, русские пейзажи: поля, леса и озера. Радуют слух пение птиц и журчание воды. Все это благоприятно отражается на здоровье –особенно после купания в купели!!!- А это основа долголетия и духовного спокойствия. Кстати про чистейшую воду из Святого источника-сдавал на анализ! Все здорово.
Купили дом недавно. При покупке и оформлении документов все сотрудники были достаточно компетентны. Подробно объяснили важные моменты по уходу за домом, порекомендовали сотрудников для дополнительных работ. Учли все наши пожелания по внутренней отделке и дополнительным работам в доме. Нареканий по качеству у нас нет - все понравилось. Летом будем еще строить гараж и беседку на участке.
Пока не нашли
Лес
В Балашихе нет пробок. Тут форум , хватит рекламировать свои дома, не ведитесь у этих мошенников!!!!
надежда на будущее
Товарищи, вам не стыдно писать о себе и для себя (я про администрацию).
В марте 2016 г. по совету друзей-жителей поселка"Барвиха", приехали на просмотр . Есть охраняемая стоянка для автомобилей гостей. Нам понравилась спокойная обстановка в поселке. Уютно и спокойно. Вежливые охранники. Нам показали очень красивый VIP-дом-Бриллиант со вторым светом с эркером, дом у леса, в лесу лавочки, беседочки. Прокатились обзорную по поселку-вдохновило! Природа! Все не успели посмотреть Посещением мы остались довольны! Забронировали домик
В пробке простояли в Балашихе минут 30
Озвучил в прошлых отзывах
Прежде всего, тоже хочу поприветствовать всех форумчан и читателей данного форума! Начну с ответа Наталье. Данный дом нами был куплен с иными целями, чем у вас. Мы его брали не для поездок по выходным, а для того, чтобы там проживала семья круглый год. И нам вовсе никто не говорил, что газопровод только в проекте. Нам говорили газ в поселке есть и показывали желтые трубы возле домов, в которых газ уже есть. А бучу стоит разводить, чтобы люди знали и многодетные семьи, как мы, не попались на их удочку. Мы Татьяне не один раз говорили, что у нас многодетная семья, что мы живем в однокомнатной квартире, и мы хотим срочно переехать, так как дома уже очень тесно. Более того, Татьяной было сказано, что у меня идет судебный процесс и что должны прийти органы опеки в дом, где планируется проживание еще одного ребенка. И в общей сложности в этом доме должны были проживать 5 несовершеннолетних детей. На что нам ответили, что для экономии лучше провести газ, тем более что у некоторых уже есть в домах газ. Учитывая это обстоятельство, в дом было куплено определенное оборудование, распланирована обстановка таким образом, что сейчас просто нет места для установки электрического оборудования для отопления и подогрева горячей воды. Опять-таки плита для приготовления пищи куплена и установлена уже газовая. А там где осталось место, установка оборудования в силу погодных условий невозможна, по словам специалиста. Сейчас подумываю о том, чтобы установить на участке газгольдер. И мы не пишем о том, что написано в интернете, мы пишем то, что есть и с чем мы столкнулись. Относительно цен. Да, мы купили дом дешевле, нам дали хорошую рассрочку, мы смогли прописаться, но если все плюсы и минусы сложить вместе, то для постоянного места жительства можно купить в другом поселке, даже пусть и дороже. Ведь минимальные затраты на бензин обходятся конкретно на моей машине примерно в 800-900 рублей в один конец. Поэтому в принципе экономия тут ложная. Что касается коммунальных платежей. 3800 в месяц и если все вместе коммунальные сложить получится порядка 7000 рублей или даже больше. Хотя точно не могу сказать, но когда делали ремонтные работы и мы там не проживали, выходило примерно 6000 рублей. И по поводу этих 3800. Я никак не могу понять, за что именно берут деньги. Нет никакой сметы расходов, описания услуг, предоставляемых за эти деньги, никакой квитанции, где все было бы расписано и понятно. И почему именно 3800, а не 3829, 3940 и т.п. Далее, общественный транспорт. Да, это понятно, что по определенному расписанию можно добраться до Москвы и Кольчугино. Ну а как быть родителям с маленькими детьми, которым ежедневно нужно ходить в школу или детский сад. Нам было предоставлена информация, что доехать до школы можно на общественном транспорте бесплатно, имея удостоверение многодетной семьи. На факте это оказалось не так. Также было сказано, что как только на поселке будет проживать больше детей, то их будет возить бесплатный автобус от ДНТ Барвиха. Это обстоятельство пока проверить не можем. Подведем итоги. Для постоянного места жительства этот поселок никак не годится. В каникулы, в выходные, а тем более летом – да. Гулять, купаться, собирать грибы-ягоды. Относительно удивления администрации от того, что собственники пишут такие сообщения. Так надо было заранее озвучить все плюсы и минусы поселка, а не набивать себе карманы и пить чай. Возможно вы что-то и делаете, но толка от этого пока никакого. А что касается того, что собственнику 27 дома предложили оказать содействие в продаже дома и земли, может и нам поможете в этом. Мне, если честно, все это хронически надоело. Готов все в доме оставить, кроме личных вещей. Относительно газа. Сначала «директор» СМУ-33, или как его там, Светлана, говорила, что ждут какой-то одной подписи некого Полякова. На той неделе подписал. Ура!!! Начали радоваться. Ан нет!!! Рано!!! Оказывается, теперь нужно подписать договор на пуско-наладочные работы и врезку газа. Договора готовятся. И как долго они будут готовиться, опять никто не знает. Недели, месяцы, годы… Вопрос… С их слов они всех торопят, просят, обивают пороги горгаза. Но тем не менее, газа так и нет((((( И от этого страдает моя многодетная семья. Я сам постоянно мотаюсь по командировкам и, приходя домой, негде даже отдохнуть. На данный момент я тоже в командировке, в другой стране. Вернувшись домой, скорее всего, мне опять скажут, что какой-то провод отсутствует, какой-то акт не подписан и ждет подписания. Думаю дело кончится установкой газгольдера. Так как если не удастся с помощью УК «реализовать» мой дом, то придется это делать, чтобы завершить то, что я начал. Потому что тоже, как Наталья, хочу на выходных и в каникулы собирать ягоды, купаться, дышать свежим воздухом. И вообще всячески наслаждаться «плодами» своего труда. Деньги, вложенные в этот объект, были заработаны потом и кровью и, несмотря на то, что мой дом не такой крутой, как Топаз, но для меня он намного лучше, удобнее и уютней всех других домов вместе взятых. Ведь я его создавал сам!!! Для себя и своей семьи!!! И то, что я сейчас не могу пользоваться результатом всего этого, виноваты, в первую очередь, ДНТ Барвиха (или Финская деревня). Ведь само ДНТ Барвиха вроде банкрот. Об этом можно даже почитать в картотеке дел арбитражного суда. Во вторую очередь, Светлана и Татьяна.
Лес
Здравствуйте форумчане меня зовут Дмитрий участок 27 я не лже Дмитрий я действительно там живу и пишу все как есть на самом деле,а вот лже кп барвиха действительно все фантазирует и пишет про мифический газ, про обслугу поселков во Владимирской области 7000-12000 р в настоящей барвихе на Рублевке дешевле!!! Вы лгуны.!! И знайте у нас не поселок, а ДНТ и по документам тоже. И самое главное что поддверждает мои слова, как пишет кп барвиха купи дом топаз из бревна и ты зимой не замерзнешь он очень теплый, хватит людей разводить, начните работать а не вымогать??????
У нас дом в этом поселке, и нас там все устраивает. Прочитав отзывы ниже - сразу видно что эти люди там не живут, и даже не бывают. Потому что пишут не о том что там есть а о том что видно только с дороги или о том что прочитали в интернете. Ну, видимо, работа у них такая))))). На самом деле тут все просто. Покупая дом, мы хотели предусмотреть следующее: 1. соотношение цена-качество - точно такие же дома в других поселках стоят намного дороже. 2. дом в охраняемом поселке (мы не можем каждый день там находится и проверять дом) 3. удобный подъезд круглый год 4. природа, лес, экология, грибочки, ягоды и пр. 5. участок земли, возможность забора (иногда дома понатыканы друг к дружке, сидишь и смотришь в окна соседу, здесь дома далеко друг от друга) 6. не высокая плата за обслуживание (в других поселках где мы смотрели 7000-12000 рублей) 7. ну и конечно чтобы легко можно было добраться общественным транспортом, в случае если машина сломается. В общем здесь нас все устроило! Все наши задачи были решены. Дом купили из бревна, проект называется Топаз - очень красивый, теплый и удобной планировки. О приобретении не жалеем и всем своим друзьям советуем.
Добрый день, уважаемые форумчане! Администрация поселка была очень удивлена увидев подобные сообщения от "собственников домов", но прочитав нижесказанные замечания жителей поселка, администрация не могла не оставить их без внимания. Собственнику дома №27 было предложено оказать содействие в продаже дома и участка, дабы избавить его от "кабальных" условий содержания и обслуживания. Однако, собственник дома №27 на самом деле его имя Андрей оказался даже не в курсе событий, происходящих на форуме, а именно комментариев., написанных от его имени. Основываясь на этом, убедительная просьба пользователю, оставляющему комментарии от имени собственников дома №27, Лжедмитрию - не распространяйте, пожалуйста, заведомо ложную информацию.
нет и похоже не будет.
В описании поселка меня поражает враньё! Как Вам это! "Владельцы домов и гости клубного комплекса могут в двух шагах от своего домика воспользоваться услугами: ресторанов, салонов красоты, медицинского центра, вертолетной площадки, тренажерного зала, а также волейбольной площадки, футбольного поля (это под вопросом, кроме ворот и травы по пояс-ничего да еще около дороги) теннисного корта, spa. КАНАЛИЗАЦИЯ-Центральная "(это вы о чем? О выгребной яме?) Да и кстати об оплате в месяц 3000р. Может я ослеп и не вижу цифр? А место расположения не у деревни Старая а у деревни Ефремово! За чем вводить в заблуждение людей?Водоем рядом с участком-ГДЕ?Самый кратчайший путь до лесного прудика (при чем дойти ой как не просто,примерно 600метров через бурелом!) Бардак!
Достоинства наступят тогда когда прекратятся необоснованные поборы, см.выше.
Ездили зимой и отценили дороги,чуть не свернул шею! Песок в 3800р.не входит?! Остальное см. выше! Про газ даже писать не хочу! Бесполезно! Сначала отключат свет,потом газ - а что потом?
Лес
Не устраиваете балаган. я дом за наличные купил. К моему дому никаких коммуникаций не подключено , за что я должен , я так и не пойму.коммунальные платежи как вы пишите это услуги , которыми я должен воспользовался,если детская площадка это услуга то с вами все понятно, я ничем не пользоваля у меня все свое, вашу шарашкину УК барвиха я не выбирал и не надо мне ее навязывать.
Соглашусь с предыдущими высказываниями - лес и свежий воздух. Хотя не живя там, насладиться этим не было возможности. Достойный рабочий персонал - Игорь Владимирович, Андрей Валентинович, Василий. Воплотят в реальность любую вашу "дизайнерскую" фантазию.
Добрый день! Прочитав ответ на свой отзыв, я не мог остаться равнодушным и решил ответить по существу. Во-первых, насчет льгот. Начнем с того, что я сам тоже многодетный отец и дети, прописанные там, мои биологические дети, которых я просто не успел признать, кроме самого младшего. И я об этом говорил не раз менеджеру. И каждый раз на свой вопрос, я слышал, что да, действительно будет 50% скидка. А теперь оказывается, что я должен выписаться из московской квартиры, прописаться в Барвихе, чтобы что-то получить. И это еще не факт, что я получу эту скидку. И в принципе, можно сказать, эта скидка меня уже не очень-то волнует. Во-вторых, относительно электричества. Вопрос по электричеству мы даже не задавали, так как нас это даже не волновало. Информацию по 100 КВт на каждого прописанного нам озвучила менеджер Татьяна, причем не раз. А когда пришла пора оформлять эти киловатты, то цифры «вышли» уже совсем другие. В-третьих, про развитие поселка. Магазин, футбольная и волейбольная площадка, центр досуга, спортзал и прочие объекты, о которых пишется в отзыве, на данном этапе только в проекте. Все эти объекты только строятся или будут строиться в будущем. Но если и дальше продолжать собирать деньги с собственников, но ничего не делать, то все это и останется в «мечтах». Относительно того, что на площадках играет много детей. Я не видел там вообще ни одного ребенка, ни то чтобы играющего, вообще никаких детей в Барвихе не видел. Мы приезжаем в месяц 2-4 раза и ни за один приезд не встречали детей. Вот щенков – детей собак – видел))))) К тому же, по словам Татьяны, в поселке на данный момент проживает только один ребенок школьного возраста, про детей дошкольного возраста не могу сказать. То, что в поселке есть газопровод низкого, высокого, среднего или еще каких давлений, меня если честно это особо не интересует, так как от этого газ в моем доме не появился. Жить возле кремля, не означает работать в кремле, а уж тем более быть депутатом или президентом, или хотя бы работником ФСО. Относительно документации, которую можно прийти и посмотреть в офисе. Как я писал в прошлом отзыве, я все равно ничего не пойму. Так зачем мне читать то, что я не понимаю и не хочу понимать, это не мое дело и не моя специальность. А теперь самый больной вопрос, касающийся газа. В письме, направленном нам на электронную почту, указывалась фамилия директора Горгаза Полякова, с просьбой уточнять все сроки и вопросы лично у него. Позвонив по указанному телефону, нам четко разъяснили, что и почему не так с газом в Барвихе. По словам Полякова, который проработал в данной сфере 24 года, не в порядке документация, не устранены его замечания, есть ряд моментов, ответственность за которые хотят «взвалить» на него. В частности, контроль над постройками в местах проведения газопровода предлагается нести ему, с чем он очень не согласен. Это газ, а не минеральная вода, и в случае чего, последствия могут быть катастрофическими. К тому же речь идет о запуске линии газа, которая будет обслуживать не только поселок Барвиха, а еще и близлежащие населенные пункты Кольчугинского района. И до тех пор, пока все замечания, недочеты, не будут устранены и улажены, газа не будет. Случится это через месяц, 5 месяцев, год, 2 года, это неизвестно. Сегодня нам прислали письмо о том, что Поляковым был подписан документ о соответствии построенного газопровода техническим условиям и заключены договора на обслуживание. Но насколько все это правда и сколько осталось до конечного результата, покажет время!
Мы каждые выходные ездим в Барвиху семьей. Дом купили 3 года назад, и за это время ни разу не пожалели! Природа шикарная, воздух свежий, огород, шашлыки, летом ходили за грибами, а сейчас катаемся на лыжах. Муж каждый выходной ныряет в купели даже в мороз. Удовольствие получаем незабываемое! Люди, жизнь прекрасна! Что касается газа, мы тоже его оплатили, только не понимаю почему вдруг столько претензий - все прекрасно понимали, что газопровод только строится и газа сразу никто нам не обещал. Именно поэтому, когда мы делали отопление в своем доме предусмотрели возможность переключения с электрического котла на газовый, как собственно сделали и наши соседи и стоило это совсем не дорого, чтобы раздувать такую бучу.
Дмитрию - а когда Вы бываете на поселке? Просто мы часто проезжаем мимо дома №27, но Вас НИКОГДА не видели, зато слышали от соседей, что жители дома №27 являются должниками и злостными неплательщиками - это тоже обман?
ЛЕС
Так зачем тогда в объявлениях писать что газ в поселке есть?????? ВЫ сами обещали,что газ будет, а теперь все скидываете на должностное лицо,которое вам чего то, не подписывает. Естественно, зачем вам подписывать,если домов в поселке, которые хотят пользоваться газом,всего ничего и какой смысл и выгода, пускать газ для 20 домов. И письмо с подписями, вы наверное за всех жильцов расписались и отправили!!!!!!!! И еще деньги за подключение к дому берите тогда, когда действительно газ будет, по договору если газа не будет вы обязаны вернуть деньги, чего вы не делаете.
Уважаемый Дмитрий! На Ваш комментарий отвечаем следующее: Текущая ситуация в отношении обслуживания - на поселке дороги всегда расчищены, поселок охраняется, мусор вывозится, фонари уличного освещения горят, перебоев с электричеством нет, в домах воровства нет, дети играют на игровых площадках, семьи отдыхают на зоне барбекю, все жители поселка и соседних деревень пользуются расчищенным и облагороженным источником-родником. Очевидно если бы Вы бывали на поселке чаще чем 1 раз в год в летний период, то замечали бы работы проводимые регулярно на протяжении всего года. Текущая ситуация по вопросу пуска газа - Подрядная организация СМУ-33 на сегодняшний день выполнила все работы, связанные со строительством газопровода высокого и низкого давления для газификации КП Барвиха, а также газификации еще 15 населенных пунктов. В настоящее время ведутся пуско-наладочные работы и ввод в эксплуатацию объекта - это процессы обязательны при строительстве газопровода и их нельзя избежать. Газопровод уже построен! И, поверьте, построен он для того, чтобы у жителей поселка был газ - а не ради самого процесса строительства. Более того, поселок постоянно развивается. по мимо того, что на поселке уже есть детские площадки, спортивные площадки (футбольное поле, волебольная площадка) горка, место для отдыха в лесу (барбекю), лесное озеро, речка, купель, в Православные праздники проводятся службы, построен центр детского досуга и спорт зал, на территории поселка работают магазины, есть парковая зона с фонтаном и лавочками, ведется активное строительство храма Николая Чудотворца, ресторанного комплекса, собственного озера, мини-зоопарка, эко-фермы и т.д. На поселке уже построено более 200 домов (в общей сложности по проекту будет около 480 домовладений). 12 марта на поселке состоится праздничное мероприятие, посвященное широкой масленице. Как и всегда будет много конкурсов, подарков и угощений. Приезжайте и сами все увидите!
Уважаемый Левон Ашотович! Во-первых, спасибо за развернутое мнение. Любой отзыв «по существу» с понятной мотивацией полезен, так как позволяет нам работать над ошибками. Теперь по порядку. Насчет льгот по абонентской плате. Для многодетных семей такие льготы существуют и достигают 30% (для зарегистрированных). Сожалеем, что при заключении договора эта информация видимо была донесена не совсем корректно. Набор документов – минимальный. Кроме того, надо помнить, что в общем понимании льготы – это уменьшение платежа, которое в конечном счете компенсируется, как правило, соответствующим бюджетом. В нашем случае все, что «недоплачено» в результате предоставления льгот одним собственником вынужденно компенсируется за счет Управляющей компании. Поэтому в предоставлении льгот, их размере и основаниях предоставления, компания ограничена необходимостью учета интересов других собственников. Что касается льгот на электричество, то мы их самостоятельно не устанавливаем, это вопрос к энергоснабжающей организации. Относительно газа. Газопровод высокого давления – а это более 14 километров, и газопровод низкого давления (разводка по поселку) выполнены на 100%. К сожалению, процесс пуска газа и документального оформления затянулся. Чтобы не быть голословным Вы можете в любое удобное для Вас время ознакомиться с соответствующей документацией в офисе компании. Единственное – просьба заблаговременно сообщить о прибытии, чтобы в офисе к этому времени находился менеджер. По поводу недоразумений со сбором документов для газоснабжения дома – лица, в чьи обязанности входит разъяснять клиентам порядок сбора и объем необходимой для этого документации, привлечены к дисциплинарной ответственности. Относительно потраченных 600 000 рублей все же следует отметить, что из этой суммы в сам газопровод инвестировано 231 354 рубля и 13 250 за оформление соответствующих документов. Остальная сумма потрачена на оборудование, хотя и необходимое для газоснабжения, но являющееся Вашей собственностью, приобретаемой исходя из Ваших пожеланий и возможностей. По вопросу предложения приобрести дополнительно электрический котел (потратив дополнительные средства) менеджеру указано на недопустимость подобных заявлений клиентам. Мы ни в коем случае не считаем возможным обсуждать, является ли какая-то сумма денег для клиента значительной либо незначительной. Однако рекомендация приобретать электрический котел была вызвана исключительно ответом на поставленную Вами конкретную проблему: необходимостью въехать «завтра».
Чистый воздух (не мудрено-это не город)
Если хотите попасть в кабалу и быть должны всем и не понято за какие услуги-добро пожаловать,не верьте обещаниям администрации,вы для них мешок с деньгами ,просто холопы!
нет
Не покупайте в поселке ничего, сразу езжайте в офис и просто отдайте им деньги. Вам они все равно не пригодятся, Вас разведут и обуют!!!
лес.
Прочитал отзыв ниже,все так просто и легко. Я владелец участка 27,рядом с лесом-разводку под газ они сделали по поселку ,но газа нет и не будет, За ничего не делая хотят 3800р в месяц, Очень большие цены на дома, они только и могут предложить рассрочку,а так дома у них просто не покупают,вот они и не знают что еще придумать. С жильцов собрали деньги за газ, так они его уже 3 года ждут, вот и подумайте какой тут обман происходит.
Добрый день! Я собственник участка 136 в коттеджном поселке «Барвиха». Буквально в августе месяце 2015 года решил увеличить свою жилплощадь, так как семья большая и места стало не хватать. Обратились к риэлтору Наталье. Долгое время искали подходящий вариант в Московской области. Искали недорогой дом с небольшим участком земли. Столкнувшись с «большими ценами» по Московской области, было принято решение купить домик в соседней области. Наталья нам предложила именно этот поселок – «Барвиху». Сам по себе поселок нас заинтересовал в связи с тем, что со слов менеджера по продажам Татьяны, очень похожей на Гайку из мультика про Чипа и Дейла, у некоторых участков был газ и даже показывала желтые трубы, которые якобы означают, что в данном доме есть газ. Также очень заинтересовал их предложение по рассрочке платежа и возможности использования материнского капитала. Когда же дело дошло до оплаты, оказалось, для того, чтобы купить с помощью материнского капитала дом, надо дождаться, когда ребенку исполнится 3 года. Очень порадовала информация о предоставляемых многодетным семьям скидке 50% за плату коммунальных услуг и определенный льготный тариф на оплату электричества, а именно за каждого прописанного в доме 100 КВатт шли по льготной цене, а расход свыше этих киловаттов, уже по другой цене. И для всего этого даже справок не нужно, достаточно только свидетельств о рождении детей. Заплатив 1 млн. рублей, я стал собственником земли в 16 соток и дома в 128 кв. м. Остальная сумма была оформлена под рассрочку с очень низкой процентной ставкой. 22 сентября на моем участке начали строить дом. Несмотря на то, что дом еще не был построен, мы получили свидетельство на землю, свидетельство на сам дом и даже смогли прописаться семьей. Когда мы прописались, то опять подняли вопрос о 50% скидки на оплату и другая Татьяна (которая там сейчас уже не работает) нам сказала, напишите заявление, пока оформляете все документы и у вас будет считаться эта скидка. Когда же дошло дело до оплаты коммунальных услуг, оказалось, чтобы получить скидку 50% на них, надо получить справку о многодетстве. Получив документы о многодетстве, оказалось, этой 50% скидки вовсе нет и она только обсуждается. Есть определенные скидки, но не более 20%, для ветеранов ВОВ, при этом собственник должен быть сам прописан в доме и вообще весь этот перечень льготников еще будет утверждаться правлением. А электричество по льготной цене только в размере 100 киловатт на первого прописанного, 60 – на второго, и по 40 – на всех остальных. Потом в процессе строительства встал вопрос газа. Со слов Татьяны необходимо было оплатить 231 тысячу 354 рубля за газ и 13250 рублей за оформление документов и как только дом будет готов, у вас будет газ. Или же можно было оформить в рассрочку, но сумма составит более 270 тысяч рублей. Это якобы тарифы горгаза. Нам эта информация была преподнесена таким образом, что в конце строительства в доме 100% будет газ. Мы оплатили необходимую сумму в 2 этапа и стали ждать газа, который должен быть «пущен» в дом в конце 4 квартала 2015 года. После 2 месяцев безделья, когда уже мои нервы не выдержали, я обратился к Татьяне, чтобы понять, что вообще происходит. Был дан ответ все под контролем, идут работы по сбору документов. Получив эту информацию, я успокоился и продолжил делать вложения в этот дом. Начал достраивать, пристраивать, делать ремонт, обставлять мебелью. В процессе данных работ стало «приятной неожиданностью», что въезд транспорта на территорию поселка стоит ни много - ни мало 250 рублей. За время строительства и обустройства дома, когда приезжали машины с техникой, мебелью и прочими материалами, я набрал «долг» порядка 5 тысяч рублей. Я, конечно же, все оплатил, так как мне вежливо объяснили, что данные средства идут на обустройство и очистку дорог, очень много по поселку должников и прочее. В процессе ремонтных работ для оформления 50% скидки за многодетство и оплаты коммунальных услуг и рассрочки, мы с женой опять поехали в Барвиху, где неожиданно узнали, что по газу никаких работ не ведется, так как отсутствует справка из БТИ и кадастровый паспорт. И на наш вопрос, почему раньше не говорили, они с удивлением спрашивали, вы разве не знали, что для проводки газа необходимы еще эти справки и стоят они еще 15200 рублей. Не хочу оказаться глупым человеком, но для меня это было новостью, так как строил дом впервые и про такие подробности не знал. Ведь, по сути, я у Татьяны спрашивал, все ли я заплатил. И я получал положительный ответ, что все оплачено, все идет хорошо. Причем после оплаты этих денег я настолько не был уверен окончательные ли это расходы, и я потребовал ксерокопию паспорта у Светланы, и предоставил им свою ксерокопию паспорта. Помимо того, что мы часто туда ездили для контроля над ремонтными работами, мы еще постоянно звонили и слышали ответ, все в порядке. Затем наступил конец декабря, когда мы с нетерпением ждали дом с газом и даже некоторых родственников пригласили на празднование Нового Года в свой «коттедж». Нашей радости не было предела, мы даже заплатили рассрочку вперед на 4 месяца, надеясь провести Новый Год с семьей в Барвихе. И тут приближается конец года, и я начинаю звонить, узнавать, как идут дела. Получаю информацию, что до конца года мы переехать не успеем и все откладывается до конца новогодних каникул. Я немножко погрустил, но не отчаялся. Новогодние праздники закончились, а газа в доме так и не было. Естественно, мои нервы опять не выдерживают, и я начинаю снова звонить. Получаю ответ, что завтра, то есть 12 января все проведут в дом. Так как я заказывал очень много техники и мебели для дома, я поехал опять в поселок и сам видел, как трактор копает землю для газопровода. Я настолько обрадовался и уже запланировал переезд на февраль месяц. Через некоторое время, а это уже 14 января, когда меня госпитализировали в больницу, мне начала писать Светлана – директор компании, которая занимается непосредственно оформлением документов и прочих работ для проведения газа и говорит, что вам необходимо в доме установить вытяжку, так как приходили пожарники и не утвердили акт, как раз-таки в связи с отсутствием вытяжки в доме. Я ответил, что не могу говорить, так как нахожусь в больнице. Попросил ее все решить и всем позвонить самой, пообещав после выписки оплатить все открывшиеся расходы. На что она отреагировала неадекватно, что она ничего не должна контролировать и не надо ей указывать что ей надо и не надо делать. И потребовала немедленно нам позвонить сантехнику для того, чтобы он нам провел в дом вытяжку. А когда речь пошла о том, почему заранее не сказали и не сделали в доме вытяжку, опять-таки были удивленные вопросы, а вы разве не знали про это. И так что у нас получается. Я оплачиваю 231 тысячу 354 рубля за газ и 13250 рублей за оформление документов и спрашиваю, все ли я оплатил. На что ответили, да – все. Деньги я отдавал Татьяне, но было сказано, что вопросом газа занимается Светлана, но ее сейчас на месте нет. В процессе оказалось, что нужна еще справка из БТИ и установка вытяжки. После долгой словесной перепалки, чтобы не злить уже данную особу, моя жена сама обзвонила всех необходимых людей, обо всем договорилась. Все было проведено, на это ушли дополнительные средства в размере приблизительно 100 тысяч рублей. На этот раз опять дополнительно спросил, все ли затраты сделали, ничего еще дополнительно «не вылезет», какой-то насос, труба или другой «подводный камень». Ответили, что все отлично, все оплачено, больше ничего не надо. Обрадовавшись, я им обещал погасить всю рассрочку и даже хотел купить еще участок. И тут наступил февраль месяц. Я начинаю опять звонить, узнавать, как все происходит. Светлана ответила, что все вопросы решают и регулируют сами. Узнав, о завершении определенных работ, мы опять направились в поселок, чтобы закрыть накопившиеся финансовые вопросы. И тут оказывается, что в поселке газ есть только в трубах, и ни в одном доме во всем поселке газа нет. Вопрос газа с сентября месяца мол решается. И опять на мои возмущения, последовал ответ этой же Светланы, мы всю работу выполнили за деньги, которые вы нам заплатили. Мало того, после этого я оказался дерзким человеком с приказными манерами. Если я хотя бы в процессе постройки дома узнал, что газа там не будет, я бы вообще отказался от данной коммуникации. Более того, ведь мы оплатили Татьяне, которая плавно потом всю ответственность перевела на Свету, мы еще примерно 300 тысяч потратили на котлы, оборудование и работы по их установке. В итоге оплатив порядка 600 тысяч, я газ так и не увидел. И теперь слушаем всякий бред от этой же Татьяны, мол вы же нашли средства 4 миллиона рублей потратить на дом, купите еще электрический котел. Потратите еще 100 тысяч, для вас эти деньги – мелочь. У меня просто нет слов. И если вы человек, который решил купить там дом и это делаете впервые, как я, категорически не советую покупать. Вас там разведут на деньги. Один за другим будут вылезать подводные камни. Следом за ними пойдет ложь, обман, преподнесение информации таким образом, чтобы вы им поверили. Если бы я знал, что с материнским капиталом такие проблемы, что скидки на коммунальные услуги ни без справки, ни со справкой мне не предоставят, и что газ там только в трубах и в домах неизвестно когда будет, я бы не стал даже рассматривать дом в данном поселке. Да и вообще он не на 100 км дальше от Москвы, а на 110 км дальше от города Щелково Московской области. От МКАДа до КПП примерно 147 км по Щелковскому шоссе, измерял сам лично. Хотелось бы положительно отметить весь рабочий персонал поселка, а именно прораба Игоря Владимировича, сантехника Андрея и электрика Василия и отдельных работников (имен не всех к сожалению помним), которые всегда готовы помочь, принести, отнести и прочее. На данный момент борьба за газ продолжается. Недавно было отправлено коллективное письмо руководству горгаза с просьбой ускорить запуск газа. Также с нашем стороны лично тоже было составлено аналогичное письмо. Ждем результата.
1.Далеко от Москвы!!!! не 100 км а почти 147 2.Газ в проекте и не известно когда будет 3.Инфраструктуры никакой, ближайший магазин 17 км дальше от города 4.Никаких льгот многодетным семьям 5.Комуналка 3800 даже если вы там не живете 6.250р за въезд Газели, даже если в Газели ГОСТИ!!! 7.Цены!!! домов дорогие, и если все сложить можно и поближе к Москве купить 8.Много обмана от Продавцов до УК И это только пока мы там не живем!!!!
Я сейчас пишу вам прямо с поселка, так сказать информация из первых уст - приехали с мужем на выходные. Солнце, лес, снег и не поверите в морозе красивенная радуга над лесом (первый раз в жизни видела радугу зимой), жаль что фото нельзя приложить. Ну ладно это лирика теперь о поселке: охрана работает - нас поприветсвовали, подняли шлагбаум, дороги расчищены, ночью весь поселок освещался фонарями, в доме все в порядке, электричество никто не отключал нам, продукты как лежали так и лежат. В общем даже уезжать назад в москву не хочется.
Дороги то расчищены, а вот у дома и на участке самим пришлось повозиться))))))) ну зато размялись))))))
Возле леса - чистый воздух.
ни водопровода, ни отопления - а берут 3800 рублей в месяц ,не за что, большое количество участков,вообще не платят, я ни знаю к чему они идут, но так руководить нельзя.
Не соглашусь с предыдущим отзывом. Могу предположить, что это сотрудник отдела продаж конкурентного поселка))). Нам на поселке очень нравится. Свежий воздух, солнце, лес, родник. И детям есть где гулять (без телефонов, телевизоров и планшетов), и взрослым в своем доме и немаленьком (15 соток) участке всегда есть чем заняться. Наша семья там точно не скучает. За услуги платим как все, и цена я вам скажу нормальная для такого поселка (перед покупкой мы очень много поселков объехали, поэтому в данном вопросе я уже профи), здесь понравилось больше всего. В зимний период конечно приезжаем реже, но не переживаем за состояние дома. Нам даже с КПП позвонили, когда калитка у забора ветром открылась - за такой сервис и платить не жалко. а уж если у вас нет возможности платить за безопасное и комфортное проживание, тогда может быть не нужно просто ехать в организованные поселки, покупайте дачи в СНТ. Правда сэкономив на ежемесячных платежах Вы потратите больше на восстановление дома весной (информация не по наслышке). На поселке всегда проводятся организованные праздники и гуляния, поэтому всей семьей уже ждем новый год, мы будем встречать его в Барвихе. Всем желаем удачи в выборе своего дома! Мы же уже нашли СВОЕ место!
Далековато от Москвы, но уже привыкли.
Чистый воздух.
Очень много недочетов по дому, грабежные цены за инфрасруктуру 3800( это за контролеров ,то что вам шлагбаум поднимают,за дорогу, то что вы по ней ездиете и за вывоз мусора) в основном весь контингент летом,а зимой домов 8 постоянных живет-потому что там делать нечего, все сидят по домам,а хорошие отзывы пишут с отдела продаж ,чтобы вас всех обмануть, не ведитесь на этот обман,приезжайте весной и пообщайтесь с жителями,а так продавцы сами называют коттеджный поселок клубного типа-а на самом деле по документам ДНТ как и везде.
Купили дом в Барвихе - очень довольны! Подкупила архитектура поселка и конечно же прироооддааа! По сравнению с Москвой, она здесь просто фантастическая. Летом птицы поют и закаты красивые, а зимой - все в снегу, а снег белый))). Все дома построены в одном стиле - хотя при рассмотрении все проекты очень разные. Улицы ровные. Сама видела, что ведется строительство каких то объектов для общего пользования (точно знаю: детский центр, ресторан, церковь - судя по фундаменту-огромная, спорт-зал) при том что уже есть: магазин, детская площадка, фонтан, в лесу площадка для отдыха с верандой и мангалом. Теперь по поводу газа: начитавшись форумов и наслушавшись - у меня тоже появились сомнения о реальности этого процесса (тем более, что подключение мы уже оплатили), но мне лично было продемонстрировано сотрудниками газовой компании, что газ уже в трубах (открывали вентель газопровода) после чего сразу слышно было шум и чувствовался явный запах газа. На этом мои сомнения были развеяны. Пока мы ни разу не пожалели о выборе места для дома.
недостатки тоже имеются хотя думаю в прочем как и везде. Проезд через кпп, и если нужно что-то провезти то надо обязательно предупреждать заранее, заявки заполнять. Если провозишь материалы и мебель не на личной машине - проезд платный. Были недочеты по строительству (вздыбилась вагонка на веранде, и окно одно плохо закрывалось), но у нас они были все исправлены работниками.
Участок №19, Живу с начала строительства поселка. Лес, родник в 30 метрах от участка, грибы собираю выйдя из калитки дома. Дети не вылезают с игровой площадки. Охрана. Купаюсь в купели
Пробки на щелчке, бывает стою 2 часа
нет
сплошные поборы!!!
Воздух от близ стоящей дороги!
Сплошные разводы на деньги! Въезд транспорта от 150 и до 500 за грузовик, оплата за (не понятно что) 4000 в месяц, не считая электричества,и это только начало! Дом не доделан-готовьте деньги на переделку, все услуги платные, септик-выгребная яма, вода из скважины сплошное железо (вонь и ржавчина) хотите хорошую воду , делайте артезианку (180 метров) плюс регистрация скважины и налог, ну и конечно цена за 180м. Короче хотите геморой, шум , нервотрепку - Вам сюда,не пожалеете! И кстати не прудов не озер нет. Удачи!
Владельцы уч. 14. данного поселка. Великолепная природа, хороший подъезд к поселку, дома сдаются с внутренней отделкой и электричеством, но без покраски (за отдельную цену), строительство газопровода завершено, скоро газ, хорошая цена, в других коттеджных поселках на подобные квадратные метры и сотки отдали бы на много больше (смотрели "Заповедный брег", "Александровские дворики", "Горки" и многие другие поселки в окрестностях г. Александров и Кольчугино (были личные причины). Но основное, что привлекло - это покупка в рассрочку по очень удобному графику без каких-либо процентов. Желания поменять место за четыре года не возникло. Поселок строился на наших глазах и на сегодня его просто не узнать: детская площадка, магазин, футбольное поле, кот. зимой - каток и др. Не верьте плохим отзывам, лучше приехать и увидеть все своими глазами, а те недостатки, про которые здесь пишут, есть в каждом поселке, так как их строительство - это всегда желание заработать быстро и много. Мы, например, не пользуемся услугами местных специалистов, ищем на стороне, находим и не жалеем (дешевле и лучше). Всегда есть выбор. Теперь про недостатки дома - их на сегодня почти нет: фундамент не осыпается, бревна не выворачивает, есть некоторые щели в углах, но мы их законопатили, крыша не течет, лестницу не переделывали. Посмотрим, что будет еще через 4 года.
Недостатки есть, конечно, это медленная застройка поселка и инфраструктуры, в домах самый неудачный и дешевый утеплитель (но можно это оговорить на стадии строительства, вопросы цены), в магазине небольшой выбор товаров и цены дороже чем в г. Кольчугино, общий забор не по всему периметру, сильно повысилась оплата за охрану и т.д., но для нас, пока, посильно.
Свежий воздух.
Полный развод на деньги. Дома сдаются с огромным количеством строительного брака. Переделывать ничего не хотят , телефоны не отвечают. Ответственного за пол года так и не нашли.
Купил дом и за свой счет все переделал.
Никакой охраны в поселке нет, стоят контролеры возле шлагбаума и собирают деньги за въезд(если к вам машина приехала с чем либо) дороги только сделали наконец то, насыпали щебня, а так последние 2 года в сапогах до дома.А так в поселке народу становится все больше крик гам никакого отдыха , стало как в Москве, я не представляю что будет когда его полностью построят...
Поселок облагораживается, дорогами занимаются, есть нюансы по качеству но они вполне решаемы, администрация доброжелательная. Владеем домом второй год все устраивает. Большой плюс в том что поселок охраняется.
Нет мусорных контейнеров
не увидел
Да в этом ДНТ кругом обман, отношение очень плохое к покупателям, обманывают и рассказывают о домах то чего нет берите в другом месте.
Как во всех днтешках один развод. Сами эти продавцы и пишут отзывы. А на деле все не так- купите и встрянете будете за этими продавцами бегать чтобы вам все доделали.
В этом поселке одни недостатки деньги берут и кидают людей.
Начну по порядку. Искали загородный дом с 2013 года. Объехали все Щелковское и Горьковское шоссе. Катались с 2 маленькими детьми, очень тщательно искали поселок. Заранее зная, что ищем во благо детей, хотели чтобы сервис был на уровне, приличный дом. Направил несколько запросов по электронке в разные риелторские компании. Самой первой и оперативной была администратор –Татьяна. Не прошло и часа после моего запроса, как она мне перезвонила и подробнейшим образом вежливо ответила на мои вопросы. А вопросов было более, чем достаточно, учитывая двух детей и дорогу на авто. Барвиха действительно понравилась, все фото на сайте соответствуют действительности, менеджеры вежливые, окружение отличное. Все гаджеты отлично ловили 3 джи, скорость, кстати вполне приличная. До леса не больше 3 минут спокойным шагом, проблем со строительством тоже не было, я каждую неделю ездил- контролировал ход строительства, Отдельное спасибо администратору Татьяне за ее искренность, отзывчивость, профессионализм и не поддельную улыбку!!! Если в Барвиху – то только 1-ая очередь у леса!!!
Артем и Юля! Спасибо за отличный коттедж! Вы - замечательные продавцы! Немного о месте: тихое, спокойное. Из развлечений на Барвихе - грибы, ягоды, рыбалка, шашлыки, волейбол. Лес чистый. Мы ездили в Кольчугино, на водохранилище- пенная вечеринка. И на джипинг успели - супер!!! Недалеко до Суздаля - очень интересно! Вообщем, всего лета было мало))) Ещё раз спасибо Юле - в доме всё чистенько, аккуратно, и Артему - внимание на высшем уровне! С такими людьми расставаться не хочется!
Единый стиль (не люблю когда кто во что горазд), цена/качество (посмотрел много домов, привозил с собой из Москвы специалиста по деревянным домам, каких то крупных недостатков в качестве древесины (вредители, грибки и плесень) и в качестве сборки не обнаружили); понравились ребята, которые собирали мой дом, видно, что профессионалы; рассрочка без % (не мало важно при нынешнем кризисе); освещение поселка (можно гулять вечером); охраняемый (не мало важно); прописка (хочу родителей переселить сюда на чистый воздух, что тоже является достоинством, в радиусе 15 км нет никакой промышленности, которая бы загрязняла воздух); пруд рядом (уже рыбачил)
Не решаемых вопросов нет, если начать придираться, можно найти, но в целом все прилично.
огормная территория, лес, природа
пробка в Киржаче
Все в одном стиле, дома на отличном расстоянии друг от друга, не то что в СНТшках-друг на друге, Еще нормальная постоянная охрана, и всегда вычищенные дороги. У меня была дача рядом, каждый год-зимой воровали все из дома, в итоге продал, купил в Барвихе, очень доволен.
пока не видел
Пока достоинств никаких нет.
живу на одной из улиц так вот проехать к дому невозможно до сих пор щебень на дорогу не высыпали езжу по глине и всем все равно магазин открылся тока летом цены большие и выбора никакого,работает только в летний период,никаких ресторанов и футбольных площадок нет,площадок для тбо тоже нет вывозят отходы летом 1 раз в неделю иногда 1раз в 2 недели приходиться вывозить самому.вымогают деньги за все как у меня проблемы или вопросы по дому так трубку не берут а как оплата за какие либо услуги будут названивать 8 раз в день и вот оно и отношение к людам. Прежде чем здесь покупать подумайте.
нет никаких
дома с очень серьезными недоделками приходиться вкладываться за свои деньги, все дома текут, хамское отношение, только на деньги разводят а сами не умеют и не хотят делать .прежде чем купить там дом пообщайтесь с жильцами ,дома не стоят таких денег,
Огромная территория, небольшой город со всеми вытекающими
Жесткий пропускной режим, можно и попроще быть
Широкие дороги, детские игровые площадки, магазины, застройщик ведет строительство в одном стиле, наконец то нашел то что искал в нормальном бюджете
в дороге на чкаловском простоял 1,5 часа
Увидели поселок на каком то сайте с объявлениями, очень удивились цене, и поехали посмотреть проекты которые имеются. Менеджер все нам показала, в итоге мы купили домик. Нас все устраивает. Есть конечно небольшие минусы, ну а куда без них!!!
Особых недостатков нет





































