коттеджный поселок Атеевка-Парк
Коммунальные платежи: от 3000 р/мес
Дома от 84 до 132 м2. Участки от 6 соток.
Лес: Лес по границе участка
Водоём: Водоем рядом с участком
Населённые пункты: Борки — 1.57 км, Непейцино — 4.21 км
Шоссе: Ленинградское, Клинский район, 75 км
Домов/участков: 136
Коттеджный поселок «Атеевка-Парк» строится на севере Подмосковья, в Клинском районе, в 75 километрах от МКАД. Имеются удобные выезды на Ленинградское и Рогачевское шоссе, кроме того проектируемая скоростная магистраль «Москва-Санкт-Петербург» также пройдет неподалеку.
Строительство ведется в окружении роскошного лесного массива рядом с берегом реки Сундыш. Территория разделена на участки в шесть соток — при желании их можно объединить для получения землевладения нужного размера.
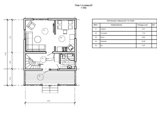
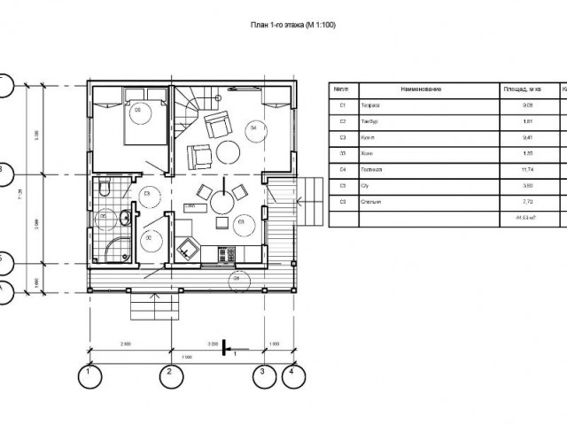
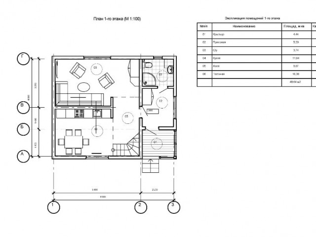
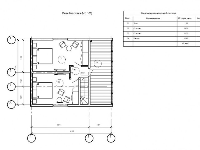
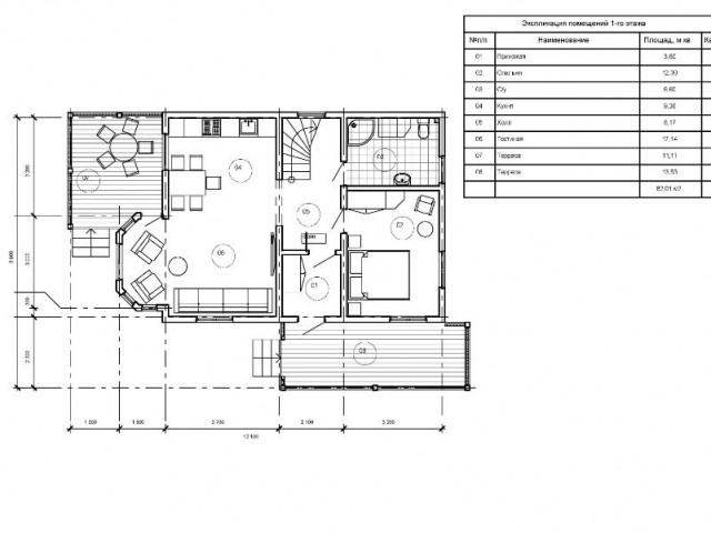
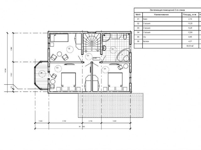
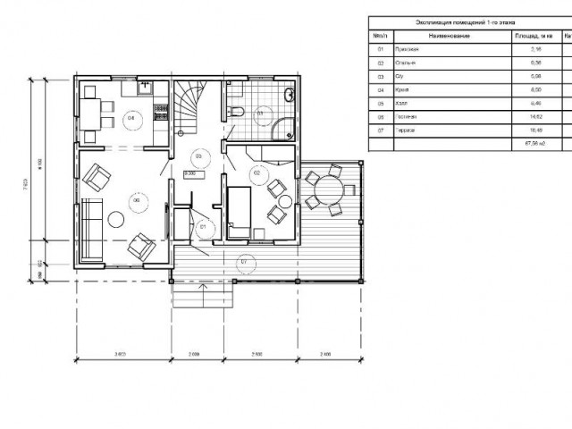
Поселок застраивается двухэтажными деревянными домами по пяти базовым проектам. Площади составляют от 84 до 132 кв. метров. Продаются коттеджи «Атеевка-Парк» полностью готовыми, «под ключ», подводятся все необходимые коммуникации.
Поселок огорожен, работает охрана, въезд осуществляется только через КПП. Благоустройство включает внутренние дороги, уличное освещение и развитие собственной инфраструктуры, в которую войдут:
- Магазин товаров повседневного спроса
- Зеленые зоны отдыха с беседками и скамьями
- Спортивные и детские площадки
- Обустроенный пляж на берегу расположенного на границе поселка пруда
- Гостевые парковки
Кроме того, жителям доступна инфраструктура соседних населенных пунктов. Ближайший город, Клин, расположен в 22 километрах.
- Инфраструктура: детская игровая площадка, зона отдыха, магазин, пляж, спортивная площадка
- Охрана: КПП, ЧОП
- Коммуникации: Интернет, Спутниковое ТВ
- Канализация: Центральная
- Водоснабжение: Центральное
- Газ: Магистральный
- Электричество: Центральное



Недорого, и в хорошем месте, но продаж почти нет, две трети поселка пустуют. Плюс не очень хорошая репутация у застройщика. Пока ничего не решили, хотя цены привлекательные, да и дома неплохо выглядят.
См. выше
Все, кроме ареста в кадастре на землю
Всем добрый день! А вот у нас плохая история с этим посёлком. 29 августа заключили договор аванса с указанием, что не позднее 2 ноября обязаны заключить договор купли-продажи. Внесли 50000 р. Далее они начали оформлять документы на дом. Земля была оформлена. Прошёл месяц, документ не готовы, прошёл второй и вышли сроки аванса!.... И тут нам Павел сообщил, что с оформлением проблемы в кадастре, наложен арест. Появились другие данные в кадастре о земле. И сейчас идёт разбирательство на уровне заявлений, разговоров и т. д. Но Павел убеждал, что все решат. Прошло ещё три недели. Проблемы с кадастром и сейчас не решены! Мы начали искать и нашли другой вариант для покупки. Это сейчас не проблема-предложений на рынке очень много. Попросили вернуть аванс, т. к. Договор купли-продажи не можем заключить по вине продавца. Но не тут-то было! Только 25000 вместо 50000! Берегитесь данного посёлка!
Красивые дома , чистая природа
далековато для нас от мкад
Тихое загородное место, есть инфраструктура . в домах коммуникации
пока малозаселен































