коттеджный поселок Андрейково
Коммунальные платежи: от 7000 р/мес
Дома от 133 до 197 м2. Участки от 8 до 20 соток.
Лес: Лес по границе участка
Водоём: Водоем рядом с участком
Населённые пункты: Пуриха — 3.18 км, Гришино — 3.51 км, Ассаурово — 3.69 км
Шоссе: Дмитровское, Дмитровский район, 43 км
Домов/участков: 50
Назначение земли: ИЖС
Это современный охраняемый поселок, выполненный в едином архитектурном стиле и отвечающий всем требованиям безопасной и комфортной жизни, с уникальными возможностями для отдыха.
Поселок, общей площадью 7,5 Га окружен лесом, состоит из 50 участков по 8, 9, 16 и 20 соток. Есть участки с лесными деревьями и примыкающие к лесу. Территория поселка огорожена забором с видеонаблюдением по периметру, на въезде - контрольно-пропускной пункт с круглосуточной охраной. К поселку ведет асфальтированная дорога. До поселка курсирует собственная маршрутка.
Дома в поселке обеспечиваются всеми видами коммуникаций и соответствуют современным требованиям: магистральный газ, центральное водоснабжение, центральная канализация, электричество, телефон, интернет.
- Инфраструктура: гостевая парковка, детская игровая площадка, зона отдыха, спортивная площадка
- Охрана: Видеонаблюдение, КПП, Сигнализация, ЧОП
- Коммуникации: Интернет, Кабельное ТВ, Спутниковое ТВ
- Канализация: Центральная
- Водоснабжение: Центральное
- Газ: Магистральный
- Электричество: Центральное
Дата съемки: 03.07.2014

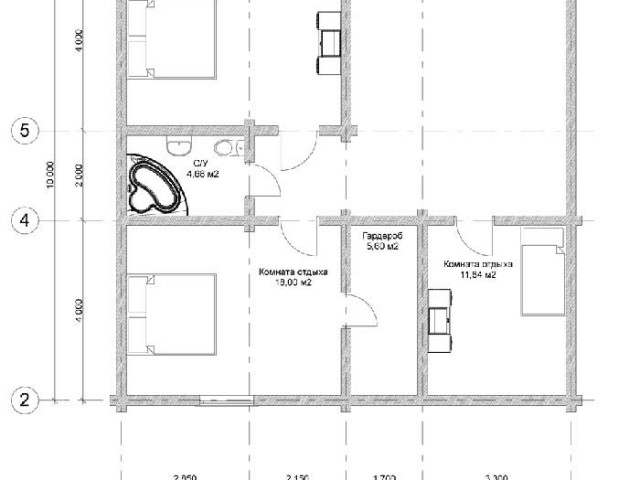
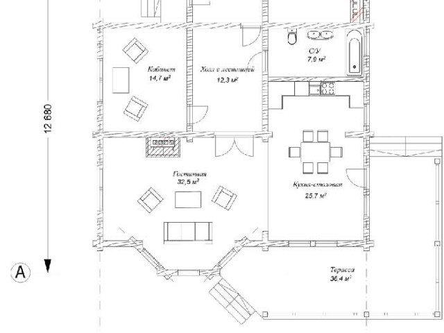
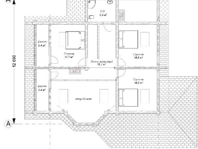
Как вариант планировки можно предложить — на первом этаже этого дома расположить: тамбур, патио, санузел с котельной, кухню, холл, гостиную, кабинет. На втором этаже деревянного дома расположить: три большие спальни и холл.


Поселок строится, все коммуникации подведены. Непроданных участков много. Но.... в поселке ничего не планируется строить: ближайший магазин за 4 км, все развлекательные комплексы вне поселка и не близко, предлагается воспользоваться инфраструктурой Димитрова, а до него 20 км.
См. выше.




























